Vuokrataan toimistotilat - Helsinki
Pasilan asema-aukio 1, Pasila, 00520 Helsinki #10859239
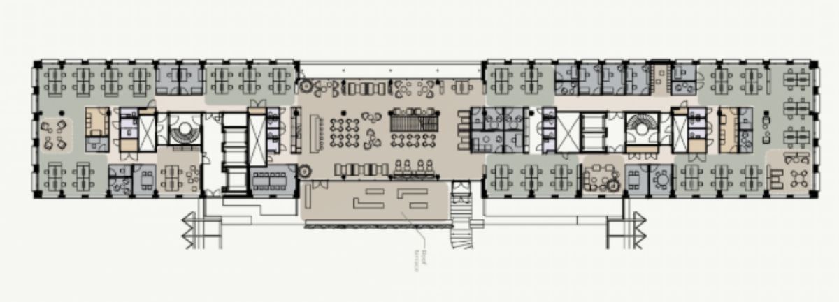
Vuokrattavana koko kerroksen korkealaatuista, valoisaa, modernia toimistotilaa, joka sijaitsee Triplan kauppakeskuksen ylläpuolella.
-Raitiovaunu
-Bussi
-Oma auto
Näkyvällä paikalla
Jaettavissa
Hissi
REALIUM OY LKV
Tammasaarenkatu 1, 00180 Helsinki
Vaihde:
Näytä puhelinnumero
+358 (0) 10 3263 466
p.
Näytä puhelinnumero
044 050 1158
joel.keto@realium.fi
p.
Näytä puhelinnumero
045 317 0330
KAIKKI TILAVAIHTOEHDOT REALIUMILTA!
Yksi välittäjä riittää! Soita tai lähetä sähköposti!
Ilmainen palvelu tilanhakijoille.
Kartoitamme ja tarjoamme parhaat tilavaihtoehdot.
Realium toimitilat on pääkaupunkiseudulla toimiva toimitilojen asiantuntijayritys. Tavoitteenamme on löytää yrityksellesi uudet toimitilat, jotka soveltuvat teidän tarpeisiin parhaiten. Autamme yrityksiä löytämään parhaat toimisto-, liike-, tuotanto-, varasto- ja logistiikkatilat nopeasti, tehokkaasti ja helposti. Realium tuntee pääkaupunkiseudun vapaiden toimitilojen tarjonnan kattavasti.
http://www.realium.fi