Vuokrataan toimistotilat, tuotantotilat, varastotilat - Helsinki
Ruosilantie 14, Konala, 00390 Helsinki #10859108
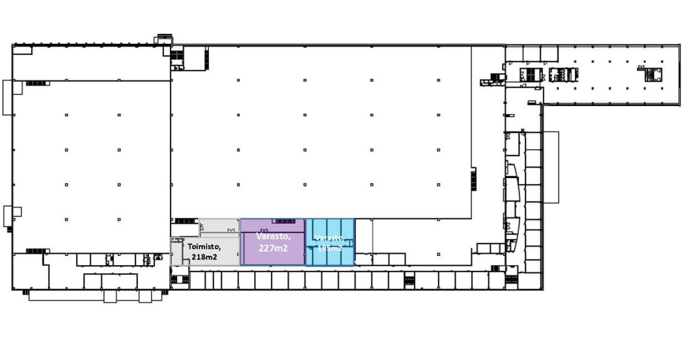
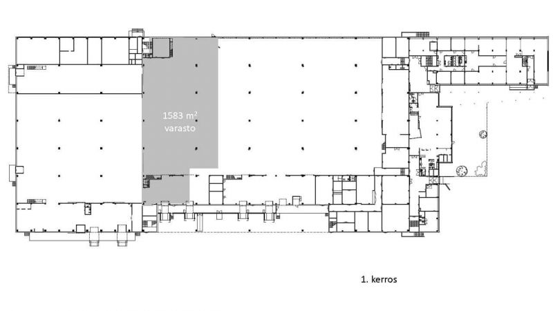
Ruosilantie 14 kiinteistö sijaitsee Konalassa aivan Vihdintien vieressä heti Kehä I:n pohjoispuolella liikenteellisesti loistavalla paikalla. Vuokrattavana heti vapaa kokonaisuus sisältäen korkeaa varastoa 1583m2, toimisto 218m2 sekä siistiä parvivarastoa 422m2. Varaston lastaulaituri nosto-ovella. Ollut ennen tapahtuma-alan toimijan varastona. Pihalla hyvin parkkitilaa. SOITA ja SOVI ESITTELY: 09 77 45 100.
Osoite
Ruosilantie 14, 00390 Helsinki
Tilatyyppi
Toimistotilaa
2223 m2
Tuotantotilaa
2223 m2
Varastotilaa
2223 m2
Yhteensä
2223 m2
Pohjapiirros
Kiinteistö
Ruosilantie 14 on vuonna 1971 rakennettu ja v.2000-2001 peruskorjattu varasto- ja toimistokiinteistö. Se sijaitsee loistavalla paikalla Konalan ytimessä. Tilat ovat muunneltavissa moneen käyttötarkoitukseen. Kiinteistön aidatulla pihalla runsaasti parkkitilaa. Päästöttömällä kiinteistöllä on maalämpö sekä aurinkovoimala, ympäristösertifikaatti on BREEAM - Very Good.
Kiinteistössä on lounasravintola, saunaosasto ja sosiaalitilat. Mahdollisuus vuokrata varastotilaa pohjakerroksen lastauslaiturin läheisyydestä.
Kiinteistössä on lounasravintola, saunaosasto ja sosiaalitilat. Mahdollisuus vuokrata varastotilaa pohjakerroksen lastauslaiturin läheisyydestä.
Sijainti
Kiinteistö sijaitsee Vihdintien välittömässä läheisyydessä ja kehä I:n helposti saavutettavissa. Konalaan hyvät bussiyhteydet ja Malminkartanon juna-asema sijaitsee 1,3 km päässä.
Ympäristö
Logistiikka - teollisuus
Pysäköinti
Pihalla.
Palvelut
Talossa lounasravintola
Kulkuyhteydet
Vihdintie, Kehä ykkönen
Lisätietoa saneerauksista
Täydellisesti peruskorjattu v. 2001
Vapautuu
Heti
Rakennusvuosi
1971
Saneerausvuosi
2001
Kerros
1 / 3
Energiatehokkuusluokka
Ei lain edellyttämää energiatodistusta
Näkyvällä paikalla
Lastauslaituri
Ota yhteyttä
Senaatin Notariaatti Oy LKV
Lämmittäjänkatu 4 A
FIN-00880 Helsinki
Tel:
Näytä puhelinnumero
+358 9 7745 100
Pyydä lisätietoa
