Vuokrataan toimistotilat - Helsinki
Elimäenkatu 30, Vallila, 00520 Helsinki #10858934
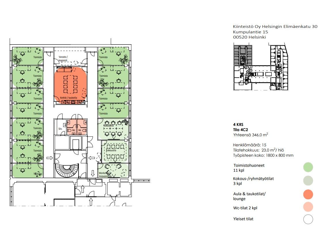
Elimäenkatu 30 toimitilat ovat viihtyisiä, teollisuushenkisiä ja hiljattain uudistettuja. Toimistot ovat muokattavissa tarpeiden mukaan. Lähistöllä on useita lounasravintoloita.
Kiinteistö sijaitsee kehittyvällä alueella, johon Helsinki panostaa lähitulevaisuudessa paljon. Jo nyt alue muodostaa merkittävän liiketoiminnan keskittymän. Kiinteistöstä on loistavat kulkuyhteydet keskustaan ja Pasilan juna-asemalle.Talotekniikka on modernia ja ajanmukaista tässä vuonna 1999 valmistuneesta kiinteistössä; mm. huoneistokohtainen jäähdytys, CAT 6-kaapelointi, kulunvalvonta ym. Tilaan on myös tavarahissiyhteys. Huom! Kuvat ovat esimerkkikuvia kiinteistön tiloista. Ota yhteyttä ja sovi esittely, vuokrauspalvelumme on tilanhakijoille maksuton.
Hissi
Senaatin Notariaatti Oy LKV
Lämmittäjänkatu 4 A
FIN-00880 Helsinki
Tel:
Näytä puhelinnumero
+358 9 7745 100
