Vuokrataan toimistotilat - Helsinki
Porkkalankatu 20, Ruoholahti, 00180 Helsinki #10858738
Porkkalankatu 20 - Toimisto 277,5 m²
Osoite
Porkkalankatu 20, 00180 Helsinki
Tilatyyppi
Toimistotilaa
278 m2
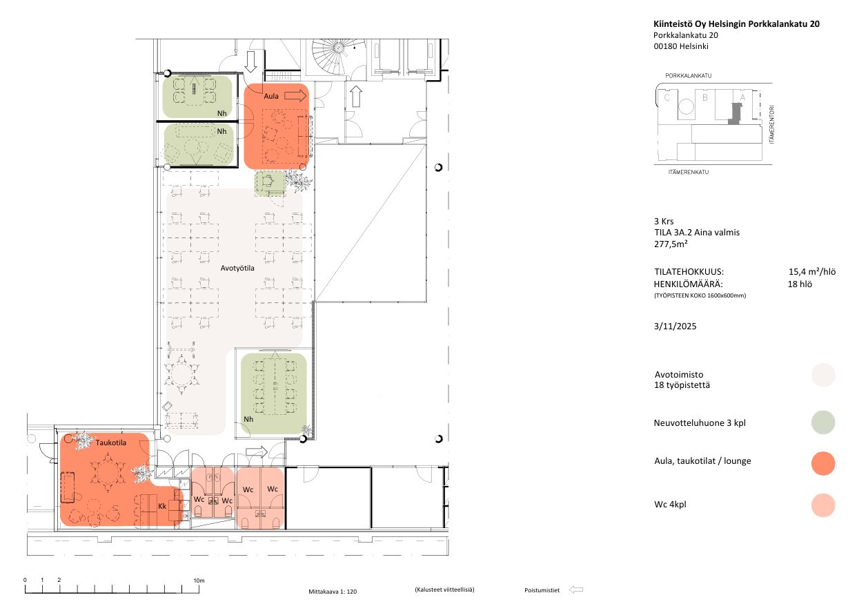
Pohjapiirros
Kiinteistö
Kokonaan uudistettu, laadukkailla ja vastuullisilla materiaaleilla remontoitu toimistotila A‑talon kolmannessa kerroksessa. Huolellisesti suunniteltu tilaratkaisu palvelee erinomaisesti nykytyöelämän tarpeita ja tukee joustavia työskentelytapoja.
Kuvista poiketen tilassa on näyttävä punertava keittiökokonaisuus, joka tuo tilaan särmää ja lämminhenkistä tunnelmaa. Pohjaratkaisuun kuuluu viihtyisä aula, kolme erikokoista työhuonetta tai neuvottelutilaa, keittiö/taukotila sekä neljä WC:tä. Kokonaispinta-ala on 277,5 m², ja tila soveltuu noin 20–50 hengen tiimille.
Porkkalankatu 20
Ruohiksen Korttelikeskus muodostaa Ruoholahden sydämeen urbaanin ja modernin kokonaisuuden, jossa työpäivä sujuu helposti ja palvelut ovat lähellä. Korttelin keskeinen rakennus, Porkkalankatu 20, tarjoaa laadukkaita ja muuntojoustavia tiloja yrityksille, jotka arvostavat näkyvyyttä, saavutettavuutta ja tehokasta arkea.
Sijainti – Ruoholahden parhaalla paikalla
Porkkalankatu 20 sijaitsee Ruoholahden paraatipaikalla, aivan Länsiväylän päässä ja erinomaisesti saavutettavissa kaikilla kulkumuodoilla. Metro-, bussi- ja raitiovaunuyhteydet ovat vain noin 200 metrin päässä, ja juna-asemalle on matkaa 1,6 kilometriä. Lentokentälle suuntaava työmatka onnistuu vaivattomasti 20 kilometrin etäisyydeltä.
Keskeinen sijainti Ruohiksen korttelikeskuksessa tuo arjen palvelut suoraan työpäivän yhteyteen: Citymarket, apteekki, Alko, Postin palvelut sekä Elixian kuntokeskus ovat muutaman askeleen päässä, samoin parkkihallin autopesula. Naapurikiinteistössä toimivan Terveystalon ja Ruoholahden terveysaseman ansiosta myös työterveyspalvelut löytyvät sujuvasti läheltä. Pyöräparkki, laaja pysäköintihalli sekä sähköautojen latausmahdollisuudet viimeistelevät arjen helppouden.
Palvelut – sujuvaa arkea ja työhyvinvointia tukevat ratkaisut
Ruoholahden alue tarjoaa runsaasti lounasravintoloita, kahviloita sekä kulttuuri- ja liikuntapalveluja, joita täydentävät Kaapelitehdas, Tanssin Talo ja Salmisaaren monipuolinen liikuntakeskus. Kiinteistö itsessään tarjoaa käyttäjilleen laajan palvelukokonaisuuden: aulapalvelut, kuntoilumahdollisuudet, neuvottelutilat, saunatilat, sosiaalitilat suihkuineen sekä wellness-palveluita, jotka lisäävät työpäivän hyvinvointia ja arjen laatua.
Päivittäinen työnteko helpottuu, kun rakennuksessa on myös päivittäistavarakauppa, ja pysäköinti hoituu kätevästi Ruoholahden parkkihallissa.
Vastuullisuus – sertifioitua laatua ja hiilineutraaleja ratkaisuja
Korttelikeskuksen kiinteistöillä on BREEAM In-Use Excellent ‑ympäristösertifiointi, joka todentaa kiinteistön korkeatasoisen vastuullisuuden ja energiatehokkuuden. Käytössä on kotimaisella tuulivoimalla tuotettua hiilineutraalia sähköä, mikä tukee yritysten omia vastuullisuustavoitteita ja pienentää hiilijalanjälkeä.
Ota yhteyttä
Kiinnostuitko? Ota yhteyttä ja tule tutustumaan!
Toimitilavälityspalvelumme on tilanhakijalle maksuton.
Kuvista poiketen tilassa on näyttävä punertava keittiökokonaisuus, joka tuo tilaan särmää ja lämminhenkistä tunnelmaa. Pohjaratkaisuun kuuluu viihtyisä aula, kolme erikokoista työhuonetta tai neuvottelutilaa, keittiö/taukotila sekä neljä WC:tä. Kokonaispinta-ala on 277,5 m², ja tila soveltuu noin 20–50 hengen tiimille.
Porkkalankatu 20
Ruohiksen Korttelikeskus muodostaa Ruoholahden sydämeen urbaanin ja modernin kokonaisuuden, jossa työpäivä sujuu helposti ja palvelut ovat lähellä. Korttelin keskeinen rakennus, Porkkalankatu 20, tarjoaa laadukkaita ja muuntojoustavia tiloja yrityksille, jotka arvostavat näkyvyyttä, saavutettavuutta ja tehokasta arkea.
Sijainti – Ruoholahden parhaalla paikalla
Porkkalankatu 20 sijaitsee Ruoholahden paraatipaikalla, aivan Länsiväylän päässä ja erinomaisesti saavutettavissa kaikilla kulkumuodoilla. Metro-, bussi- ja raitiovaunuyhteydet ovat vain noin 200 metrin päässä, ja juna-asemalle on matkaa 1,6 kilometriä. Lentokentälle suuntaava työmatka onnistuu vaivattomasti 20 kilometrin etäisyydeltä.
Keskeinen sijainti Ruohiksen korttelikeskuksessa tuo arjen palvelut suoraan työpäivän yhteyteen: Citymarket, apteekki, Alko, Postin palvelut sekä Elixian kuntokeskus ovat muutaman askeleen päässä, samoin parkkihallin autopesula. Naapurikiinteistössä toimivan Terveystalon ja Ruoholahden terveysaseman ansiosta myös työterveyspalvelut löytyvät sujuvasti läheltä. Pyöräparkki, laaja pysäköintihalli sekä sähköautojen latausmahdollisuudet viimeistelevät arjen helppouden.
Palvelut – sujuvaa arkea ja työhyvinvointia tukevat ratkaisut
Ruoholahden alue tarjoaa runsaasti lounasravintoloita, kahviloita sekä kulttuuri- ja liikuntapalveluja, joita täydentävät Kaapelitehdas, Tanssin Talo ja Salmisaaren monipuolinen liikuntakeskus. Kiinteistö itsessään tarjoaa käyttäjilleen laajan palvelukokonaisuuden: aulapalvelut, kuntoilumahdollisuudet, neuvottelutilat, saunatilat, sosiaalitilat suihkuineen sekä wellness-palveluita, jotka lisäävät työpäivän hyvinvointia ja arjen laatua.
Päivittäinen työnteko helpottuu, kun rakennuksessa on myös päivittäistavarakauppa, ja pysäköinti hoituu kätevästi Ruoholahden parkkihallissa.
Vastuullisuus – sertifioitua laatua ja hiilineutraaleja ratkaisuja
Korttelikeskuksen kiinteistöillä on BREEAM In-Use Excellent ‑ympäristösertifiointi, joka todentaa kiinteistön korkeatasoisen vastuullisuuden ja energiatehokkuuden. Käytössä on kotimaisella tuulivoimalla tuotettua hiilineutraalia sähköä, mikä tukee yritysten omia vastuullisuustavoitteita ja pienentää hiilijalanjälkeä.
Ota yhteyttä
Kiinnostuitko? Ota yhteyttä ja tule tutustumaan!
Toimitilavälityspalvelumme on tilanhakijalle maksuton.
Vapautuu
Kysy
Kerros
3
Ota yhteyttä
Logistila Oy
Kylätie 11-13, 00320 HELSINKI
Karoliina Turppo
Näytä puhelinnumero
050 345 3258
Pyydä lisätietoa
