Vuokrataan tuotantotilat - Nurmijärvi
Lahnuksentie 215, Klaukkala, 01840 Nurmijärvi #10858171
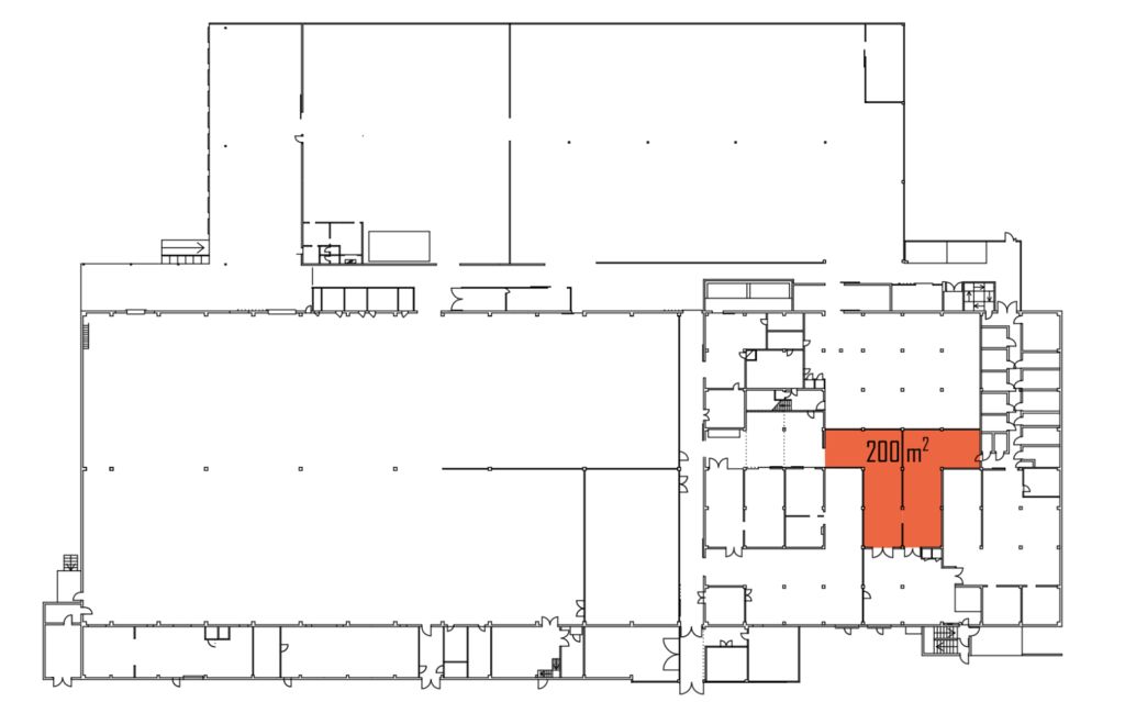
Lämmintä varasto-/tuotantotilaa Klaukkalassa.
Kyseinen toimitila on kooltaan 200 m², ja se sijaitsee kiinteistön katutasossa. Tilassa on väliseinä, jossa aukko kulkemista varten. Oviaukko tilaan on 2,20 m leveä. Tila on sisäänajettava, nosto-oven koko on 3x3 m. Tilassa ei ole lattiakaivoa, ei sovi autopesula- tai korjaamotoimintaan. Kiinteistössä on lastauslaituri ja kerroksiin on tavarahissiyhteys.
Lahnuksetie 215 on monipuolinen kiinteistö, josta löytyy varasto- ja tuotantotilaa sekä toimistotiloja. Kiinteistön tilat on mahdollista jakaa erilaisiin kokonaisuuksiin yrityksen tarpeiden mukaisesti. Vuokralaisten käytössä on myös lastauslaituri. Kiinteistö sijaitsee hyvien kulkuyhteyksien varrella, lähellä 3-tietä.
Kysy lisää numerosta 044 723 4700 tai info@bref.fi. Palvelumme on tilanhakijoille ilmainen.
Hissi
Bureau Real Estate Finland Oy
Lars Sonckin kaari 16, 02600 Espoo
Näytä puhelinnumero
0447234700
Bureau Real Estate Finland Oy
https://www.bref.fi