Vuokrataan liiketilat - Joensuu
Torikatu 33, 80100 Joensuu #10858155
Katutason liiketila Joensuun keskustassa.
Osoite
Torikatu 33, 80100 Joensuu
Tilatyyppi
Liiketilaa
200 m2
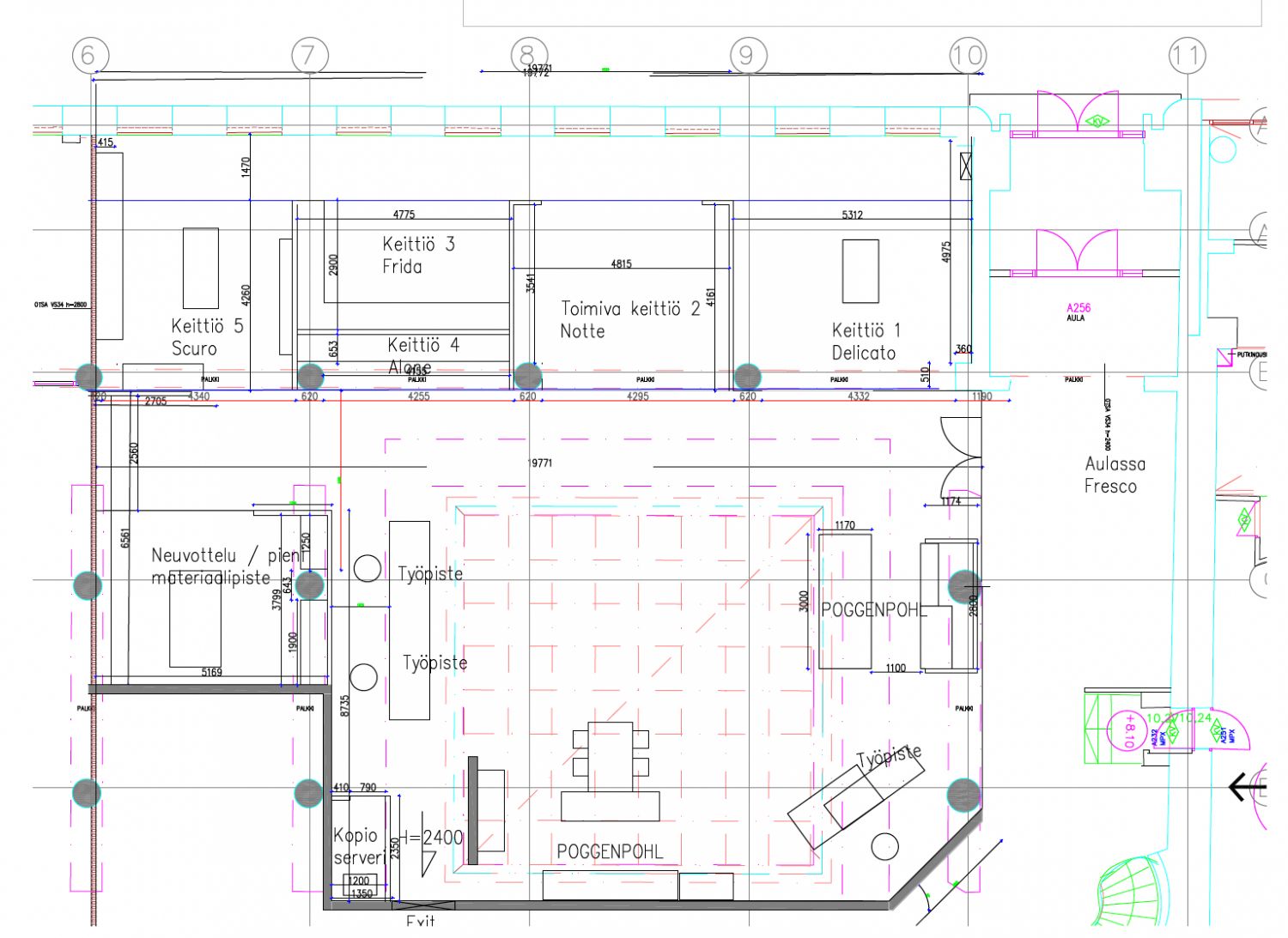
Pohjapiirros
Kiinteistö
Monipuolinen ja toimivapohjainen katutason liiketila keskeisellä sijainnilla Joensuun keskustassa. Tila sijaitsee asuinkerrostalossa ja on toiminut lääkäriklinikan fysioterapia- ja vastaanottotilana.
Soveltuu erinomaisesti esimerkiksi terveys- ja hyvinvointialan toimijoille, terapiapalveluihin, vastaanottotoimintaan tai muuhun asiakaspalveluliiketoimintaan.
Tilajako
• Vastaanottotila ja odotushuone
• 5 hoitohuonetta, kaikissa oma vesipiste
• Erillinen kuntosalitila / harjoitustila
• Henkilökunnan sosiaalitilat
• Varastotila
• Autohallipaikka
Tilaratkaisu on valmiiksi suunniteltu terveydenhuollon käyttöön, mikä mahdollistaa nopean käyttöönoton vastaavaan toimintaan. Liiketilaa on mahdollista myös muoktata vuokralaisen tarpeita vastaaviksi.
Liiketila vapautuu toukokuussa 2026.
Soveltuu erinomaisesti esimerkiksi terveys- ja hyvinvointialan toimijoille, terapiapalveluihin, vastaanottotoimintaan tai muuhun asiakaspalveluliiketoimintaan.
Tilajako
• Vastaanottotila ja odotushuone
• 5 hoitohuonetta, kaikissa oma vesipiste
• Erillinen kuntosalitila / harjoitustila
• Henkilökunnan sosiaalitilat
• Varastotila
• Autohallipaikka
Tilaratkaisu on valmiiksi suunniteltu terveydenhuollon käyttöön, mikä mahdollistaa nopean käyttöönoton vastaavaan toimintaan. Liiketilaa on mahdollista myös muoktata vuokralaisen tarpeita vastaaviksi.
Liiketila vapautuu toukokuussa 2026.
Sijainti
Torikatu 33 sijaitsee Joensuun ydinkeskustassa, kävelyetäisyydellä torista ja palveluista. Erinomainen saavutettavuus sekä julkisilla että omalla autolla.
Pysäköinti
Torikadun varrella on kadunvarsipysäköintiä, josta löytyy ilmaisia paikkoja lyhytaikaiseen pysäköintiin suoraan rakennuksen edestä. Parkkihalleja lähietäisyydellä.
Palvelut
Torikatu 33 sijaitsee Joensuun ydinkeskustassa, aivan keskeisten palveluiden ytimessä. Kaikki päivittäispalvelut, ravintolat, kahvilat, erikoisliikkeet sekä Iso Myy -kauppakeskus ja Sokos ovat kävelyetäisyydellä. Lähialueella toimii myös useita terveysalan toimijoita, apteekkeja sekä pankki- ja postipalveluita. Sijainti on helposti saavutettavissa niin jalkaisin, julkisilla kuin omalla autolla.
Kulkuyhteydet
Sijainti ydinkeskustassa mahdollistaa helpon saapumisen myös jalan tai pyörällä. Bussipysäkit sijaitsevat Torikadun varrella ja aivan lähikortteleissa, ja keskustan bussilinjat tarjoavat sujuvat yhteydet eri kaupunginosiin sekä lähialueille. Joensuun rautatieasema on lyhyen kävelymatkan päässä.
Muuta
Liiketila vapautuu toukokuussa 2026.
Vapautuu
01.05.2026
Energiatehokkuusluokka
Ei lain edellyttämää energiatodistusta
Katutasossa
Näkyvällä paikalla
Ota yhteyttä
Comreal Oy LKV
Joonas Nilsson
Näytä puhelinnumero
044 328 3425
Ota yhteyttä, niin kerron lisää kohteesta. Huomasithan, että kaikki kohteemme ei ole esillä internetissä. Kerro meille tilatarpeesi, niin autamme sinua etsimään yrityksellesi oikean tilan.
Tilahakumme on maksuton.
Pyydä lisätietoa
