Vuokrataan toimistotilat, varastotilat - Raisio
Vuorelankatu 3, Leilikallio, 21280 Raisio #10858151
Terminaalitilaa
Osoite
Vuorelankatu 3, 21280 Raisio
Tilatyyppi
Toimistotilaa
725 m2
Varastotilaa
2000 m2
Yhteensä
2725 m2
Kiinteistö
Terminaalitilaa kehätien varrella
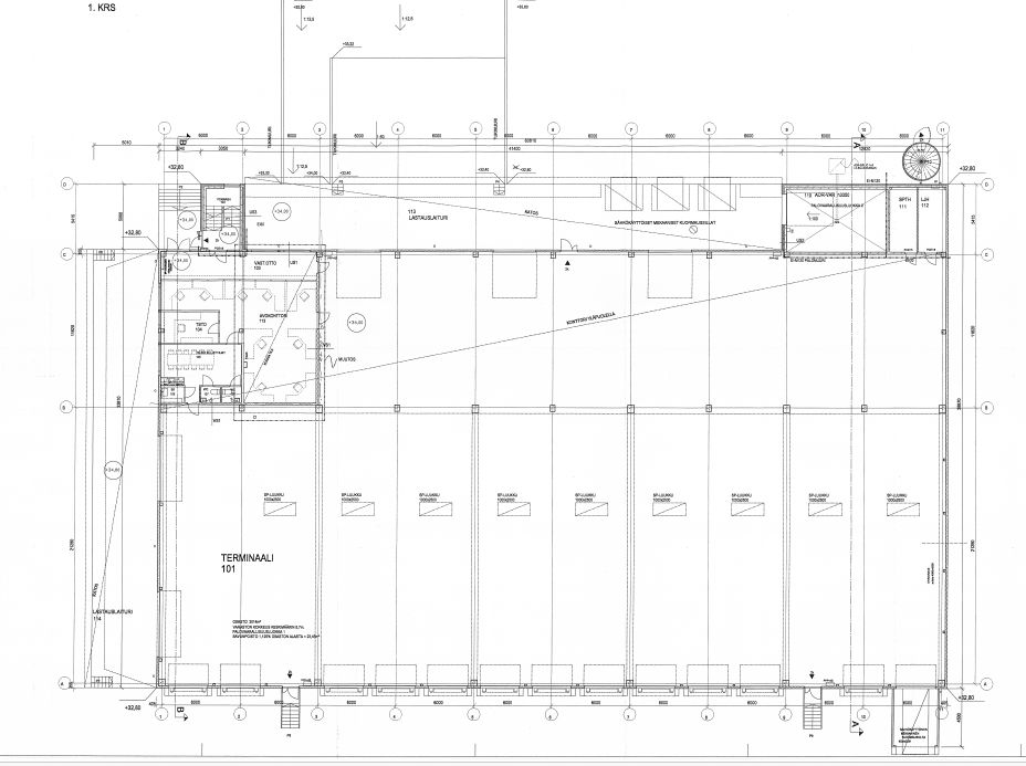
Vuokrataan läpiajettavaa terminaalitilaa Turun seudun ykköspaikalta Kehätien varresta. Kiinteistö koostuu isosta 18 000 m2 tontista, 2000 m2 terminaalitilasta lähettämöineen ja sosiaalitiloineen sekä yläkerran 725 m2 kokoisista toimistotiloista. Toisen kerroksen toimistotilat voidaan vuokrata erikseen ja ne voidaan jakaa kahdelle vuokralaiselle. Terminaalitilat voidaan vuokrata myös ilman toisen kerroksen toimistoiloja.
Kerrosten välistä löytyy tilavat pukuhuonetilat suihkuilla.
Terminaalitilojen vapaa korkeus on 6,60 m ja 4 m (osa tilasta sijaitsee toimistokerroksen alapuolella ja siitä johtuen matalampaa). Tavaralogistiikka hoituu lastauslaitureiden 5 kpl nosto-ovien ja 13 kpl lastaustaskujen kautta. Ajoneuvot voivat lastata ja purkaa kummallakin puolella rakennusta, jota isot piha-alueet ja rakennuksen ympäriajettavuus helpottavat.
Lattian kantavuus: 2500 kg/m2
Pihatilaa on mahdollista vuokrata myös erikseen esim. raskaan kaluston pysäköintiin. Piha-alue on asvaltoitu ja aidattu sähköportein.
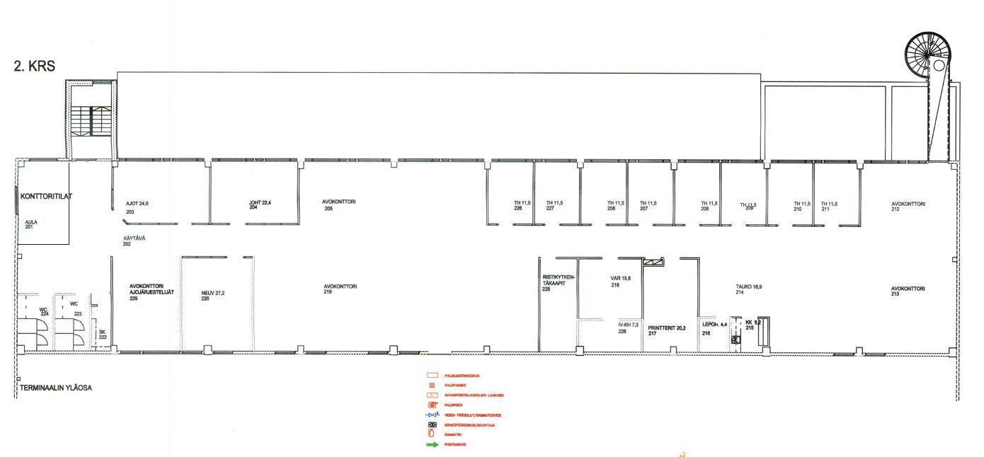
Toisen kerroksen toimistotiloista löytyy:
aulatilat
2 kpl isompia työhuoneita
8 kpl pienempiä työhuoneita
3 kpl avotoimistoaluetta
iso neuvotteluhuone
2 kpl keittiö / taukokahvio
arkistohuone, tulostinhuone ja ristikytkentätila
2 kpl tupla-wc-tiloja
Toimistotilat ovat valoisat ja siistissä kunnossa. Pohjasovitusta voidaan muuttaa ja remonttia tehdä. Toimistotilat voidaan myös jakaa kahdelle toimijalle.
Olisiko tässä yrityksenne uusi tukikohta? Ota yhteyttä ja sovitaan tutustumisaika näihin tiloihin.
Palvelumme on maksutonta tilanhakijoille.
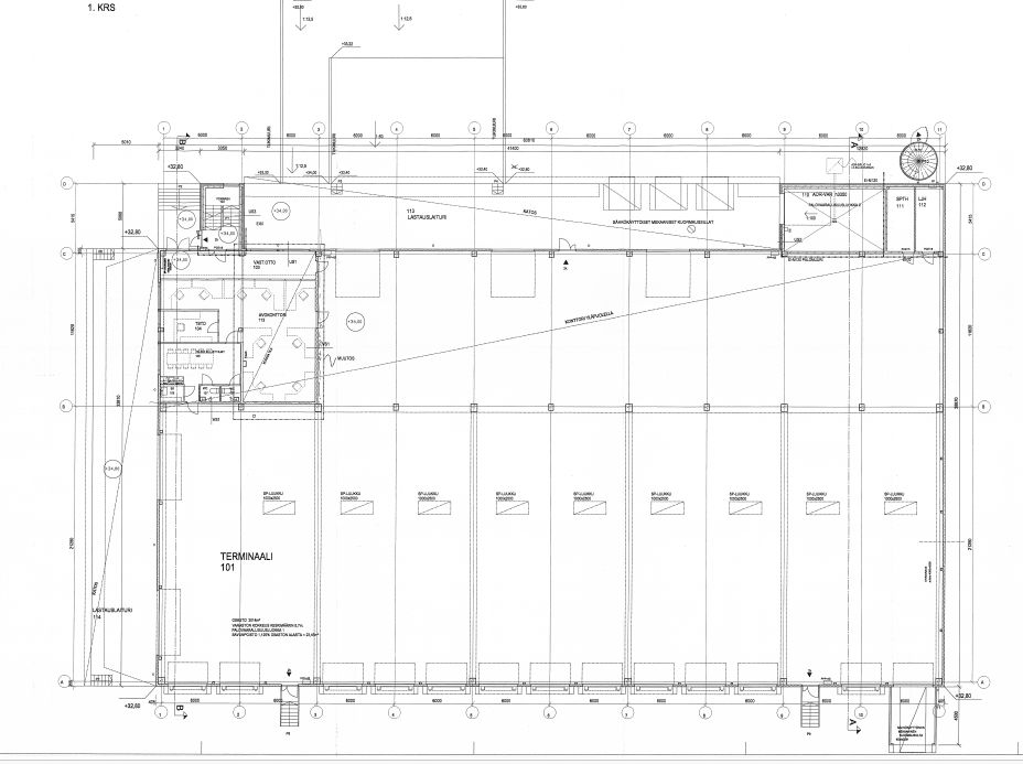
Vuokrataan läpiajettavaa terminaalitilaa Turun seudun ykköspaikalta Kehätien varresta. Kiinteistö koostuu isosta 18 000 m2 tontista, 2000 m2 terminaalitilasta lähettämöineen ja sosiaalitiloineen sekä yläkerran 725 m2 kokoisista toimistotiloista. Toisen kerroksen toimistotilat voidaan vuokrata erikseen ja ne voidaan jakaa kahdelle vuokralaiselle. Terminaalitilat voidaan vuokrata myös ilman toisen kerroksen toimistoiloja.
Kerrosten välistä löytyy tilavat pukuhuonetilat suihkuilla.
Terminaalitilojen vapaa korkeus on 6,60 m ja 4 m (osa tilasta sijaitsee toimistokerroksen alapuolella ja siitä johtuen matalampaa). Tavaralogistiikka hoituu lastauslaitureiden 5 kpl nosto-ovien ja 13 kpl lastaustaskujen kautta. Ajoneuvot voivat lastata ja purkaa kummallakin puolella rakennusta, jota isot piha-alueet ja rakennuksen ympäriajettavuus helpottavat.
Lattian kantavuus: 2500 kg/m2
Pihatilaa on mahdollista vuokrata myös erikseen esim. raskaan kaluston pysäköintiin. Piha-alue on asvaltoitu ja aidattu sähköportein.
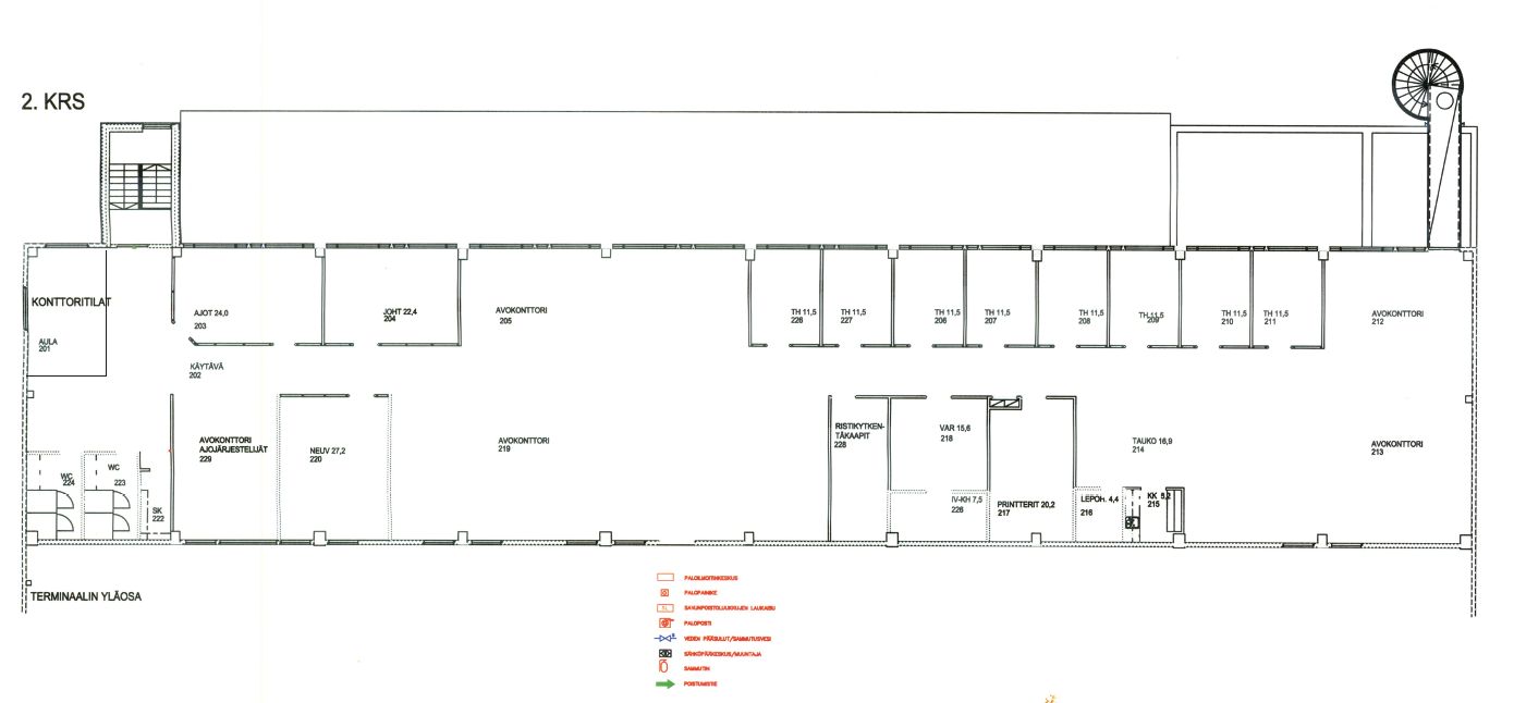
Toisen kerroksen toimistotiloista löytyy:
aulatilat
2 kpl isompia työhuoneita
8 kpl pienempiä työhuoneita
3 kpl avotoimistoaluetta
iso neuvotteluhuone
2 kpl keittiö / taukokahvio
arkistohuone, tulostinhuone ja ristikytkentätila
2 kpl tupla-wc-tiloja
Toimistotilat ovat valoisat ja siistissä kunnossa. Pohjasovitusta voidaan muuttaa ja remonttia tehdä. Toimistotilat voidaan myös jakaa kahdelle toimijalle.
Olisiko tässä yrityksenne uusi tukikohta? Ota yhteyttä ja sovitaan tutustumisaika näihin tiloihin.
Palvelumme on maksutonta tilanhakijoille.
Vapautuu
Kysy
Kerros
1. ja 2.
Lastauslaituri
Ota yhteyttä
Logistila Oy
Tuureporinkatu 6, 20100 TURKU
Stina Lindroos
Näytä puhelinnumero
044 972 9468
Pyydä lisätietoa
