Vuokrataan liiketilat - Helsinki
Ruoholahdenkatu 14, Kamppi, 00180 Helsinki #10857920
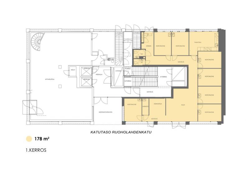
Ensimmäisen kerroksen valoista 178 m² liiketila hyvällä sijainnilla Kampissa
Osoite
Ruoholahdenkatu 14, 00180 Helsinki
Tilatyyppi
Liiketilaa
178 m2
Pohjapiirros
Kiinteistö
Ensimmäisen kerroksen 178 m² valoisa liiketila erinomaisella sijainnilla Kampissa, aivan Lastenlehdon puiston tuntumassa. Tila koostuu vastaanottoaulasta, taukotilasta sekä seitsemästä vesipisteellisestä hoito- tai vastaanottohuoneesta, minkä ansiosta se soveltuu erityisen hyvin kauneudenhoito-, terveys- ja hyvinvointialan toimintaan.
Perinteikkääseen 60-luvun kiinteistöön on toteutettu kattava modernisointi, ja tilat ovat muuntojoustavia sekä viimeisteltävissä yrityksesi ilmeen mukaisiksi. Edustavat aulatilat, vastuulliset materiaalivalinnat ja vuonna 2020 uusittu talotekniikka tukevat viihtyisää ja energiatehokasta työympäristöä. Rakennuksella on Very Good -tason BREEAM-sertifiointi sekä hiilidioksidivapaa sähkösopimus.
Sijainti Kampin keskustorin läheisyydessä takaa erinomaiset julkiset yhteydet ja sujuvan saavutettavuuden niin asiakkaille kuin henkilöstölle. Kiinteistössä on oma autohalli ja sisäpihan pysäköintipaikkoja, ja pyöräilijöitä palvelevat lukittu pyöräparkki sekä uusitut suihku- ja pukutilat. Tässä liiketilassa yhdistyvät keskeinen sijainti, toimiva pohjaratkaisu ja vastuullinen kiinteistö modernin liiketoiminnan tarpeisiin.
Perinteikkääseen 60-luvun kiinteistöön on toteutettu kattava modernisointi, ja tilat ovat muuntojoustavia sekä viimeisteltävissä yrityksesi ilmeen mukaisiksi. Edustavat aulatilat, vastuulliset materiaalivalinnat ja vuonna 2020 uusittu talotekniikka tukevat viihtyisää ja energiatehokasta työympäristöä. Rakennuksella on Very Good -tason BREEAM-sertifiointi sekä hiilidioksidivapaa sähkösopimus.
Sijainti Kampin keskustorin läheisyydessä takaa erinomaiset julkiset yhteydet ja sujuvan saavutettavuuden niin asiakkaille kuin henkilöstölle. Kiinteistössä on oma autohalli ja sisäpihan pysäköintipaikkoja, ja pyöräilijöitä palvelevat lukittu pyöräparkki sekä uusitut suihku- ja pukutilat. Tässä liiketilassa yhdistyvät keskeinen sijainti, toimiva pohjaratkaisu ja vastuullinen kiinteistö modernin liiketoiminnan tarpeisiin.
Vapautuu
Heti
Rakennusvuosi
1966
Saneerausvuosi
2020
Kerros
1 / 7
Energiatehokkuusluokka
Ei lain edellyttämää energiatodistusta
Ympäristöluokitus
BREAM Very Good
Katutasossa
Näkyvällä paikalla
Hissi
Ota yhteyttä
ScanReal Oy LKV
Opus Business Park
Hitsaajankatu 24
00810 Helsinki
info@scanreal.fi
Puh:
Näytä puhelinnumero
020 730 8830
Sopivat toimitilat yhdellä otolla!
Kartoitamme toimitilatarpeesi ja etsimme yrityksellesi parhaiten sopivat vapaat toimitilat. Koska vuokranantajat maksavat palvelumme, on tämä yrityksellesi veloituksetonta.
OTA YHTEYTTÄ - SOVI NÄYTTÖ!
Kaikki kohteemme eivät ole netissä, kerro tilatarpeesi niin kartoitamme vaihtoehdot.
Palvelumme on tilanhakijalle ilmainen
Pyydä lisätietoa
