Vuokrataan toimistotilat - Tampere
Hatanpään Valtatie 34, Hatanpää, 33100 Tampere #10857818
Osoite
Hatanpään Valtatie 34, 33100 Tampere
Tilatyyppi
Toimistotilaa
150 m2
Muuta
Hatanpään valtatie 34 rakennus on valmistunut v. 1917 alunperin kenkätehtaaksi. Vuosikymmenten varrella siellä on ollut monenlaista teollista toimintaa ja nykyään se on monipuolinen pienteollisuus- ja toimistokäytössä oleva kiinteistö.
Sijainti aivan keskustan kupeessa luo hyvät puitteet liiketoiminnalle. Bussipysäkki on vieressä ja rakenteilla olevan ratikkalinja pysäkki tulee lähelle.
Ratinan kauppakeskuskseen on matkaa n. 800 m ja rautatieasemalle n. 1,5 km.
Pihassa on pysäköintialue ja muutama vieraspaikka.
Kävelymatkan päässä on useita lounaspaikkoja.
Rakennuksessa on vapaana valoisaa ja kohtuuhintaista toimistotilaa.
Koneellinen ilmanvaihto,jäähdytys ja valokuituliittymä.
Tila:
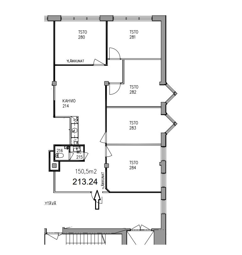
G-rapun 2. kerroksessa rakennuksen kulmatila,josta ikkunat kahteen suuntaan. Tila on kooltaan 150,5 m2 ja se on korkeaa ja valoisaa tilaa. Hienot ruutuikkunat.
Tilassa on viisi erillistä hyvänkokoista huonetta, keittiö-/taukotilaa, eteinen ja wc.
Tilat ovat muunneltavissa käyttäjän tarpeiden mukaan.
Ole yhteydessä, sovitaan käyntiaika paikan päälle:
Annina Niemi
Myyntipäällikkö, LKV
annina.niemi@catella.com
040 4812 220
Tilanhakijalle palvelumme ovat maksuttomia.
Catella Property Oy on valtakunnallinen toimitilojen vuokraukseen ja myyntiin keskittynyt kiinteistönvälitysyritys.
Kysy paikallisilta ammattitaitoisilta välittäjiltämme myös muita välityksessämme olevia toimitilakohteita.
Välittäjiemme yhteystiedot ja lisää välitettäviä tilakohteita verkkosivuillamme: www.toimitilat.catella.fi.
Ota yhteyttä!
Sijainti aivan keskustan kupeessa luo hyvät puitteet liiketoiminnalle. Bussipysäkki on vieressä ja rakenteilla olevan ratikkalinja pysäkki tulee lähelle.
Ratinan kauppakeskuskseen on matkaa n. 800 m ja rautatieasemalle n. 1,5 km.
Pihassa on pysäköintialue ja muutama vieraspaikka.
Kävelymatkan päässä on useita lounaspaikkoja.
Rakennuksessa on vapaana valoisaa ja kohtuuhintaista toimistotilaa.
Koneellinen ilmanvaihto,jäähdytys ja valokuituliittymä.
Tila:
G-rapun 2. kerroksessa rakennuksen kulmatila,josta ikkunat kahteen suuntaan. Tila on kooltaan 150,5 m2 ja se on korkeaa ja valoisaa tilaa. Hienot ruutuikkunat.
Tilassa on viisi erillistä hyvänkokoista huonetta, keittiö-/taukotilaa, eteinen ja wc.
Tilat ovat muunneltavissa käyttäjän tarpeiden mukaan.
Ole yhteydessä, sovitaan käyntiaika paikan päälle:
Annina Niemi
Myyntipäällikkö, LKV
annina.niemi@catella.com
040 4812 220
Tilanhakijalle palvelumme ovat maksuttomia.
Catella Property Oy on valtakunnallinen toimitilojen vuokraukseen ja myyntiin keskittynyt kiinteistönvälitysyritys.
Kysy paikallisilta ammattitaitoisilta välittäjiltämme myös muita välityksessämme olevia toimitilakohteita.
Välittäjiemme yhteystiedot ja lisää välitettäviä tilakohteita verkkosivuillamme: www.toimitilat.catella.fi.
Ota yhteyttä!
Vapautuu
Kysy
Kerros
2
Ota yhteyttä
Catella Property Oy
Hämeenkatu 13b A, 33100 Tampere
Näytä puhelinnumero
010 5220 100
Annina Niemi
Näytä puhelinnumero
040 4812 220
Pyydä lisätietoa
