Vuokrataan toimistotilat, tuotantotilat, varastotilat, työtilat, autotalli/-hallitilat - Helsinki
Yrityspiha 1, Konala, 00390 Helsinki #10857807
Iso parvellinen hallitila vuokrattavana Konalassa!
Osoite
Yrityspiha 1, 00390 Helsinki
Tilatyyppi
Toimistotilaa
73,2 m2
Tuotantotilaa
242,8 m2
Varastotilaa
242,8 m2
Työtilaa
242,8 m2
Autotalli/-hallitilaa
169,6 m2
Yhteensä
242,8 m2
Virtuaaliesittely
Vuokra
2’790 €/kk, alv-vapaa
Muuta
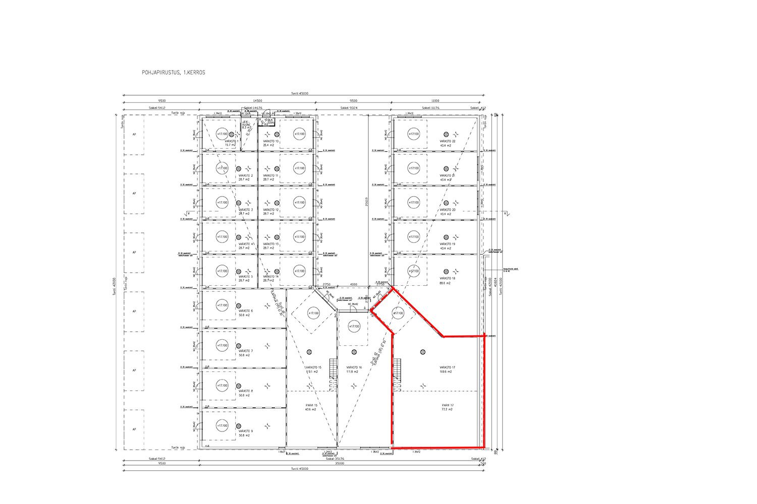
Keskeisellä sijainnilla Helsingin Konalassa on 169,6 m² hyvin varusteltu parvellinen hallitila vuokrattavana. Pohjakuvaan vuokrattava tila merkittynä (tila numero 17).
Tila Ei sovellu autopesulaksi tai autokorjaamoksi.
Iso suorakaiteen mallinen hallitila 169,6 m², jonka sisäkorkeus on noin 5,5 metriä. Tilassa on lisäksi iso parvi (73,2 m²). Parven päällä korkeus noin 2,5 metriä ja parven alla korkeus 2,8 metriä. Parven kaiteesta nosto-oveen on noin 5,7 metriä. Huomioithan pohjakuvassa nosto-oven viisto kulma tilaan nähden.
Parvi soveltuu lisäsäilytykseen, toimistoksi tai taukotilaksi. Parvella on minikeittiö ja vesipiste. Parven lisäksi hallitilan varusteluun kuuluu korkea käyntiovellinen nosto-ovi (L 3,5 m x K 4,0 m), voimavirta, ilmalämpöpumppu, lattiakaivo ja vesipiste ja wc.
Tiloissa on sähkölämmitys, jonka vuokralainen maksaa (oma sähkösopimus). Vesi veloitetaan mittauksen mukaan. Hallitilan käyttäjä vastaa omasta jätehuollosta.
Pieni asfaltoitu piha-alue, tilan edessä ei mahdu pysäköimään, mutta lähellä on maksullinen paikoitusalue. Hallin omalla paikoitusalueella muutama maksuton autopaikka vuokralaisten yhteiskäytössä.
Tila sijaitsee Konalassa ja sieltä nopea yhteys Kehä I:lle ja Vihdintielle.
Monipuolinen tila erinomaisella sijainnilla!
Kohdetiedot
Sijainti
Osoite: Yrityspiha 1, 00390 Helsinki
Kaupunginosa: Konala
Ympäristö: Teollisuutta, Motonet, Ristikko, Varusteleka…
Rakennus/huoneisto
Pinta-alat: Noin 169,6 m² + 73,2 m²
Kiinteistötyyppi: Varastohallirakennus
Rakennusvuosi: 2018
Energiatodistus: D2018
Huoneistotyyppi/Käyttötarkoitus: Varastotila + parvi
Kunto, varusteet ja palvelut: Hyväkuntoinen tila. Käyntiovellinen nosto-ovi, lattiakaivo, ilmalämpöpumppu, vesipiste, wc, minikeittiö, parvi
Lämmitys: Suora sähkölämmitys ja ilmalämpöpumppu
Pysäköinti: Pihassa
Vapautuu: 1.7.2026
Vuokrahinta ja kulut
Kuukausivuokra: 2’790 €/kk, alv-vapaa
Sähkö: Mittauksen mukaan
Vesimaksu: Mittauksen mukaan
Lämmitys: Sähköllä vuokralaisen lukuun
Jätehuolto: Vuokralainen vastaa omasta jätehuollostaan
Auraus: Sisältyy vuokraan (koneellinen)
Jätehuolto: Vuokralainen vastaa itse omasta jätehuollosta
Muuta: Minimisopimuskausi 12 kk, vakuus 3 kk:n vuokraa vastaava summa, luottotietojen oltava kunnossa
Tila Ei sovellu autopesulaksi tai autokorjaamoksi.
Iso suorakaiteen mallinen hallitila 169,6 m², jonka sisäkorkeus on noin 5,5 metriä. Tilassa on lisäksi iso parvi (73,2 m²). Parven päällä korkeus noin 2,5 metriä ja parven alla korkeus 2,8 metriä. Parven kaiteesta nosto-oveen on noin 5,7 metriä. Huomioithan pohjakuvassa nosto-oven viisto kulma tilaan nähden.
Parvi soveltuu lisäsäilytykseen, toimistoksi tai taukotilaksi. Parvella on minikeittiö ja vesipiste. Parven lisäksi hallitilan varusteluun kuuluu korkea käyntiovellinen nosto-ovi (L 3,5 m x K 4,0 m), voimavirta, ilmalämpöpumppu, lattiakaivo ja vesipiste ja wc.
Tiloissa on sähkölämmitys, jonka vuokralainen maksaa (oma sähkösopimus). Vesi veloitetaan mittauksen mukaan. Hallitilan käyttäjä vastaa omasta jätehuollosta.
Pieni asfaltoitu piha-alue, tilan edessä ei mahdu pysäköimään, mutta lähellä on maksullinen paikoitusalue. Hallin omalla paikoitusalueella muutama maksuton autopaikka vuokralaisten yhteiskäytössä.
Tila sijaitsee Konalassa ja sieltä nopea yhteys Kehä I:lle ja Vihdintielle.
Monipuolinen tila erinomaisella sijainnilla!
Kohdetiedot
Sijainti
Osoite: Yrityspiha 1, 00390 Helsinki
Kaupunginosa: Konala
Ympäristö: Teollisuutta, Motonet, Ristikko, Varusteleka…
Rakennus/huoneisto
Pinta-alat: Noin 169,6 m² + 73,2 m²
Kiinteistötyyppi: Varastohallirakennus
Rakennusvuosi: 2018
Energiatodistus: D2018
Huoneistotyyppi/Käyttötarkoitus: Varastotila + parvi
Kunto, varusteet ja palvelut: Hyväkuntoinen tila. Käyntiovellinen nosto-ovi, lattiakaivo, ilmalämpöpumppu, vesipiste, wc, minikeittiö, parvi
Lämmitys: Suora sähkölämmitys ja ilmalämpöpumppu
Pysäköinti: Pihassa
Vapautuu: 1.7.2026
Vuokrahinta ja kulut
Kuukausivuokra: 2’790 €/kk, alv-vapaa
Sähkö: Mittauksen mukaan
Vesimaksu: Mittauksen mukaan
Lämmitys: Sähköllä vuokralaisen lukuun
Jätehuolto: Vuokralainen vastaa omasta jätehuollostaan
Auraus: Sisältyy vuokraan (koneellinen)
Jätehuolto: Vuokralainen vastaa itse omasta jätehuollosta
Muuta: Minimisopimuskausi 12 kk, vakuus 3 kk:n vuokraa vastaava summa, luottotietojen oltava kunnossa
Vapautuu
Heti
Rakennusvuosi
2018
Kerros
1 / 2
Energiatehokkuusluokka
D2018
Ota yhteyttä
Tilat.fi
KTM, LKV Antti Soivio
Näytä puhelinnumero
0400 446 553
OTM, LKV Riikka Tuominen
Näytä puhelinnumero
0400 551 790
KTM, LKV Maria-Sofia Puhakka
Näytä puhelinnumero
0400-150330
MBA,LKV Susanne Wallenius
Näytä puhelinnumero
0400-128877
Yrityksen virallinen nimi: LKV Tilat.fi Oy.
Toimitilojen välitykseen erikoistunut yritys.
Pyydä lisätietoa
