Vuokrataan toimistotilat, liiketilat, tuotantotilat, varastotilat, työtilat - Porvoo
Asentajantie 8, 06150 Porvoo #10857523
Iso liiketila erinomaisella sijainnilla Porvoon Tarmolassa!
Osoite
Asentajantie 8, 06150 Porvoo
Tilatyyppi
Toimistotilaa
120 - 290 m2
Liiketilaa
120 - 290 m2
Tuotantotilaa
170 m2
Varastotilaa
170 m2
Työtilaa
120 - 290 m2
Yhteensä
120 - 290 m2
Tilajako
Jaettavissa
Soveltuu liike- tai toimistotilaksi
Pohjapiirros
Virtuaaliesittely
Vuokra
2'999 €/kk +alv
Vuokraan sisältyy sähkö, vesi, lämpö
Muuta
Hyvällä sijainnilla Tarmolan kauppakeskittymässä vuokrattavana liike-/myymälätila. Tila soveltuu monenlaiseen käyttöön esim. varastomyymäläksi, toimistoksi tai yrittäjän työtilaksi.
Liiketalossa on useita yrityksiä ja sisätilat erittäin edustavat ja hyväkuntoiset.
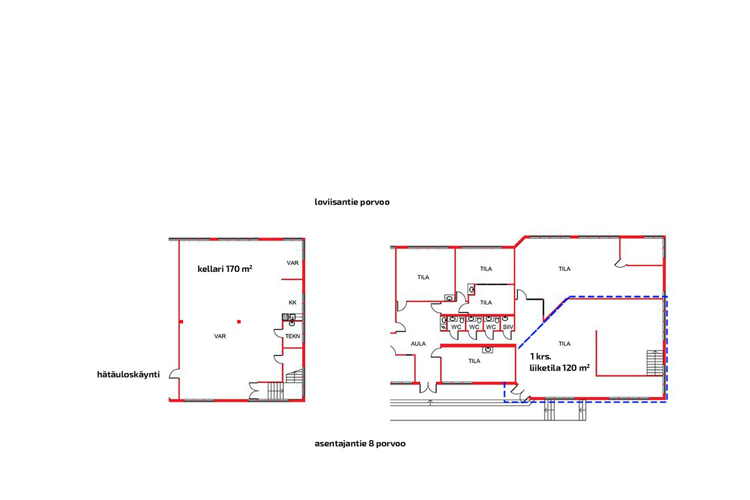
Liiketila on katutasosta puolikkaan kerroksen ylöspäin ja pinta-alaltaan noin 120 m². Tila on erittäin valoisa ja ikkunanäkymää on kahteen suuntaa. Oma sisäänkäynti (iso pariovi) Asentajantien puolelta. Liiketilan sisäkorkeus on 2,7 metriä.
Liiketilan alapuolella on lisäksi tarjolla kellarista varastotilaa 170 m². Kellarin sisäkorkeus on 3,1 metriä ja siellä on pieni keittiötila ja kaksi vesipistettä. Kellariin kulku liiketilan kautta (isot pariovet) rappusia pitkin, mutta kellariin mahdollista järjestää erillinen sisään kulku rakennuksen itäpuolelta. Tilaan ei ole hissiä.
Liiketilan yhteyteen mahdollista saada 50 m² lisätilaa – kysy tästä lisää.
Kellarissa oleva varasto on myös vuokrattavissa erikseen ja kellarista mahdollista vuokrata myös lisätilaa erikseen sovitusti.
Tilassa on oma sisäänkäynti. Kiinteistöllä on oma, maksuton parkkialue.
Vuokralaisen yhteiskäytössä WC-tilat. Kellarissa pieni keittiö-/taukotila. Vuokralainen vastaa omasta jätehuollostaan, se kuluista ja järjestelyistä.
Erinomainen kaupallinen sijainti ja moneen soveltuvat tilat!
Kohdetiedot
Sijainti
Katuosoite: Asentajantie 8, 06150 Porvoo
Kaupunginosa: Tarmola
Ympäristö: Kauppoja ja teollisuusaluetta
Rakennus ja huoneisto
Pinta-alat: noin 120 m² + 170 m²
Kiinteistötyyppi: Liikerakennus
Huoneistoselitelmä: Liiketila ja kellarivarasto
Rakennusvuosi: 1987
Energiatodistus: Ei lain vaatimaa todistusta
Kerros: 1+ kellari
Kunto, varusteet ja palvelut: Siisti kunto / Pintaremontoitu. Yhteiskäytössä wc. Kellarissa keittiö/taukotila
Lämmitys: Kaukolämpö
Vapautuu: 1.4.2026
Pysäköinti: Pihalla paikoitusalueella
Vuokrahinta ja kulut
Kuukausivuokra: 2’999 €/kk + alv
Vesimaksu: Sisältyy vuokraan
Sähkö: Sisältyy vuokraan
Lämmitys: Sisältyy vuokraan
Muuta: Minimisopimuskausi 12 kk, vakuus 3 kk:n vuokraa vastaava summa ja luottotietojen oltava kunnossa
Liiketalossa on useita yrityksiä ja sisätilat erittäin edustavat ja hyväkuntoiset.
Liiketila on katutasosta puolikkaan kerroksen ylöspäin ja pinta-alaltaan noin 120 m². Tila on erittäin valoisa ja ikkunanäkymää on kahteen suuntaa. Oma sisäänkäynti (iso pariovi) Asentajantien puolelta. Liiketilan sisäkorkeus on 2,7 metriä.
Liiketilan alapuolella on lisäksi tarjolla kellarista varastotilaa 170 m². Kellarin sisäkorkeus on 3,1 metriä ja siellä on pieni keittiötila ja kaksi vesipistettä. Kellariin kulku liiketilan kautta (isot pariovet) rappusia pitkin, mutta kellariin mahdollista järjestää erillinen sisään kulku rakennuksen itäpuolelta. Tilaan ei ole hissiä.
Liiketilan yhteyteen mahdollista saada 50 m² lisätilaa – kysy tästä lisää.
Kellarissa oleva varasto on myös vuokrattavissa erikseen ja kellarista mahdollista vuokrata myös lisätilaa erikseen sovitusti.
Tilassa on oma sisäänkäynti. Kiinteistöllä on oma, maksuton parkkialue.
Vuokralaisen yhteiskäytössä WC-tilat. Kellarissa pieni keittiö-/taukotila. Vuokralainen vastaa omasta jätehuollostaan, se kuluista ja järjestelyistä.
Erinomainen kaupallinen sijainti ja moneen soveltuvat tilat!
Kohdetiedot
Sijainti
Katuosoite: Asentajantie 8, 06150 Porvoo
Kaupunginosa: Tarmola
Ympäristö: Kauppoja ja teollisuusaluetta
Rakennus ja huoneisto
Pinta-alat: noin 120 m² + 170 m²
Kiinteistötyyppi: Liikerakennus
Huoneistoselitelmä: Liiketila ja kellarivarasto
Rakennusvuosi: 1987
Energiatodistus: Ei lain vaatimaa todistusta
Kerros: 1+ kellari
Kunto, varusteet ja palvelut: Siisti kunto / Pintaremontoitu. Yhteiskäytössä wc. Kellarissa keittiö/taukotila
Lämmitys: Kaukolämpö
Vapautuu: 1.4.2026
Pysäköinti: Pihalla paikoitusalueella
Vuokrahinta ja kulut
Kuukausivuokra: 2’999 €/kk + alv
Vesimaksu: Sisältyy vuokraan
Sähkö: Sisältyy vuokraan
Lämmitys: Sisältyy vuokraan
Muuta: Minimisopimuskausi 12 kk, vakuus 3 kk:n vuokraa vastaava summa ja luottotietojen oltava kunnossa
Vapautuu
01.04.2026
Rakennusvuosi
1987
Katutasossa
Näkyvällä paikalla
Jaettavissa
Ota yhteyttä
Tilat.fi
KTM, LKV Antti Soivio
Näytä puhelinnumero
0400 446 553
OTM, LKV Riikka Tuominen
Näytä puhelinnumero
0400 551 790
KTM, LKV Maria-Sofia Puhakka
Näytä puhelinnumero
0400-150330
MBA, LKV Susanne Wallenius
Näytä puhelinnumero
0400-128877
LKV Tilat.fi Oy on toimitilojen välitykseen erikoistunut yritys.
http://www.tilat.fiPyydä lisätietoa
