Videoesittely
Vuokrataan toimistotilat - Helsinki
Yliopistonkatu 5, Kluuvi, 00100 Helsinki #10857225
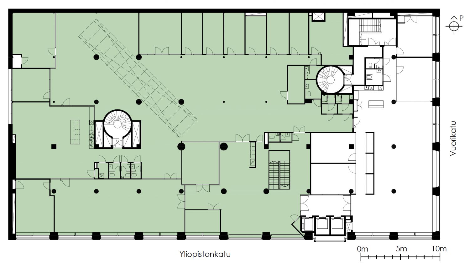
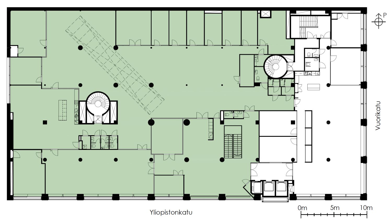
Upea 1504,5m² tilakokonaisuus, jossa 3. kerroksessa 1077m² valoisaa, avaraa ja uniikkia toimistotilaa kattoikkunoilla ja 4. kerroksessa 427,5m² täysin pintaremontoitua tilaa, johon pääsee vielä valitsemaan keittiö- ja lattiamateriaalit, sekä huonejaon tilaratkaisut. 4. kerroksen tilaan on mahdollista rakentaa myös oma 120m² terassi. Kerrokset on yhdistettävissä toisiinsa sisäportaalla.
Osoite
Yliopistonkatu 5, 00100 Helsinki
Tilatyyppi
Toimistotilaa
1504 m2
Pohjapiirros
Kiinteistö
Heimolan kiinteistö on näyttävällä paikalla aivan ydinkeskustassa vilkkaan kävelykadun päässä.
Tähän kiinteistöön pääsee kuivin jaloin Kaisaniemessä sijaitsevalta Helsingin yliopiston metroasemalta. Rautatieasemallekin on vain minuutin kävelymatka. Paikalle pääsee helposti julkisilla liikennevälineillä joka puolelta pääkaupunkiseutua. Kiinteistön välittömässä läheisyydessä ovat Kluuvin ravintolat, kahvilat ja myymälät sekä tasokkaat hotellit ja muut keskustan palvelut.
1970-luvulla valmistuneen talon tilat ovat modernit ja hyvin muokattavissa joko avokonttoriksi tai työntekijöille rauhallisiksi, omiksi huoneiksi. Nykyisiä vuokralaisia talossa viehättävät sijainnin lisäksi erityisesti isot ikkunat ja avarat tilat.
Kiinteistölle on myönnetty BREEAM In-Use Very Good -tason ympäristösertifikaatti. BREEAM (Building Research Establishment Environmental Assessment Method) on kansainvälinen rakennusten ympäristöluokitusjärjestelmä, joka tähtää rakennuksen käytön ympäristövaikutusten vähentämiseen sekä terveellisempien työympäristöjen kehittämiseen.
Tähän kiinteistöön pääsee kuivin jaloin Kaisaniemessä sijaitsevalta Helsingin yliopiston metroasemalta. Rautatieasemallekin on vain minuutin kävelymatka. Paikalle pääsee helposti julkisilla liikennevälineillä joka puolelta pääkaupunkiseutua. Kiinteistön välittömässä läheisyydessä ovat Kluuvin ravintolat, kahvilat ja myymälät sekä tasokkaat hotellit ja muut keskustan palvelut.
1970-luvulla valmistuneen talon tilat ovat modernit ja hyvin muokattavissa joko avokonttoriksi tai työntekijöille rauhallisiksi, omiksi huoneiksi. Nykyisiä vuokralaisia talossa viehättävät sijainnin lisäksi erityisesti isot ikkunat ja avarat tilat.
Kiinteistölle on myönnetty BREEAM In-Use Very Good -tason ympäristösertifikaatti. BREEAM (Building Research Establishment Environmental Assessment Method) on kansainvälinen rakennusten ympäristöluokitusjärjestelmä, joka tähtää rakennuksen käytön ympäristövaikutusten vähentämiseen sekä terveellisempien työympäristöjen kehittämiseen.
Sijainti
Bussit, raitiovaunut, junat ja metro ovat pienen kävelymatkan päässä.
Pysäköinti
Aimo Park Kluuvi, P-Eliel ja Autoparkki WTC
Palvelut
Korttelista löytyy kattava valikoima kaupanalan toimijoita sekä palveluita terveydenhuollosta pankkeihin sekä kahviloita ja ravintoloita. Kaikki ydinkeskustan palvelut ovat lähellä.
Kulkuyhteydet
Lähimmälle bussipysäkille 400 m
Lähimmälle juna-asemalle 400 m
Lähimmälle metroasemalle 100 m
Lähimmälle raitiovaunupysäkille 140 m
Lentokentälle 40 min
Lähimmälle juna-asemalle 400 m
Lähimmälle metroasemalle 100 m
Lähimmälle raitiovaunupysäkille 140 m
Lentokentälle 40 min
Vapautuu
Kysy
Rakennusvuosi
1972
Kerros
3-4
Energiatehokkuusluokka
C2018
Ympäristöluokitus
BREEAM In-Use Very Good,GRESB Global Sector Leader 2025
Ota yhteyttä
Sponda Oy
Yrjönkatu 29C, 00100 Helsinki
Näytä puhelinnumero
020 43131
Laura Toponen
Senior Leasing Manager
Näytä puhelinnumero
+35850 413 4223
Sponda Oy
https://www.sponda.fiPyydä lisätietoa
