Vuokrataan liiketilat - Kouvola
Ahomutka 1-3, Valkeala (Valkeala), 45360 Kouvola #10857165
Tarjolla nykyaikainen ja hyväkuntoinen päiväkotirakennus Kouvolan Valkealassa.
Vuonna 2020 valmistunut yksikerroksinen puurakenteinen rakennus tarjoaa toimivat ja huolellisesti suunnitellut tilat päiväkoti- tai muulle hoiva-, opetus- tai palvelutoiminnalle.
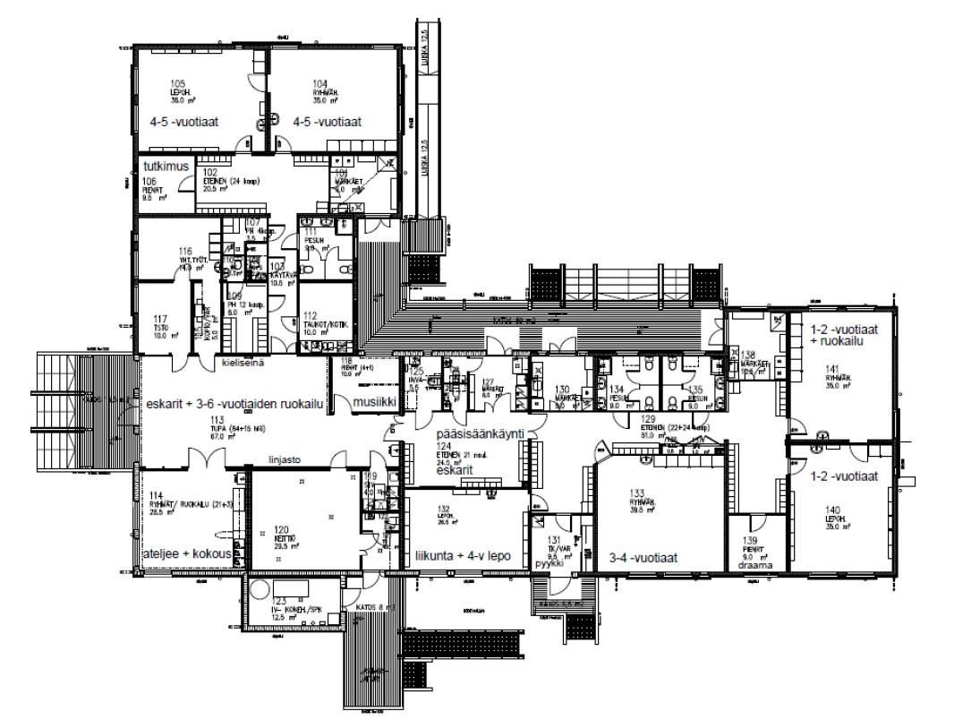
Tilat on mitoitettu 84 lapsen päivätoimintaan, ja pohjaratkaisu tukee turvallista, sujuvaa ja viihtyisää arkea.
Moderni talotekniikka sekä rakennuksen nuori ikä tuovat käyttäjälleen huolettomuutta ja edulliset ylläpitokustannukset.
Rakennus sijaitsee vuokratontilla (6 595 m²), jonka pihapiirissä on aidatut ja varustellut leikkialueet sekä grillikota.
Autopaikkoja on yhteensä 25.
Kaava-alue on YS, mikä mahdollistaa päiväkotikäytön lisäksi muun hoiva- tai palvelualan toiminnan.
Tontilla on rakennusoikeutta jäljellä 889,5 k-m², mikä tarjoaa mahdollisuuden toiminnan laajentamiseen tai lisärakentamiseen tarpeen mukaan.
Liästietoja, esittelyt:
Mika Nyman
0400347758
mika.nyman@op.fi
Vuokralainen vastaa ylläpito- ja huolto kustannuksista.
Vuodelta 2025 kustannusrakenne on ollut:
Lämmitys ja sähkö 20.945 €
Vesi ja viemäri 1.919 €
Siivouspalvelut 13.461 €
Rakennusten kunnossapito 2.023€
Piha-alueiden kunnossapito 758€
Jätehuolto 1.566 €
Talohuoltajan palvelut 5.857 €
Kiinteistöpalvelut 6.941€
Vartiointi ja muut kiinteistö kulut 2.016 €
Vuokrattavana päiväkoti rakennus talousrakennuksineen 6 595m² tontilla.
Vuokrasopimus voi olla toistaiseksi voimassaoleva, tai määräaikainen.
Muut sopimusehdot, kuten sopimuksen pituus, irtisanomisaika ja vakuus sovitaan tapauskohtaisesti.
Vuokra on ALV:ton .
Asemakaava YS I e=0,25.
Rakennusoikeutta jäljellä 889,5 k-m²
Rakennus:
Lasten päiväkodit
Tilamitoitus:
Paikkamäärä 84.
Henkilöstömäärä 14+1
Valmistumisvuosi 2020 (loppukatselmus 20.8.2020)
Huoneistoala 661,5 m² (huonekorttien mukaan 625,5 m²)
Kerrosala 708 m²
Tilavuus 4347 m².
Puurunko, puuverhous (elementti)
Harjakatto, huopa/bitumikermikate.
Koneellinen ilmanvaihto + LTO
Kaukolämpö
Tontilla aidatut lasten leikkipaikat, sekä grillikota.
Pysäköintialue asiakaspysäköintiiin ja henkilökunnalle osoitetut pysäköintipaikat.
Muut tilat:
Huoneistoala 625,5 m²(huoneluettelon mukaisesti)/ 661,5 m² rakennuslupapiirustusten mukaan.
Kerrosala 708 m², tilavuus 4347 m²rakennuspaikan nykytilanne otteen mukaan.
Jaettavissa
OP Koti Uusimaa Oy LKV
Toimitilapalvelut
Arkadiankatu 23
00100 HELSINKI
Mika Nyman
Toimitilavälittäjä, Kiinteistöarvioija, LKV, YKV, AKA/KHK
Näytä puhelinnumero
0400 347 758
