Vuokrataan liiketilat, tuotantotilat, varastotilat - Pirkkala
Jasperintie 334 A, 33960 Pirkkala #10856511
Korkea selkeä hallitila vapaana. Hallin osuus neliöistä 1450 m² ja toimistoa 682 m².
Osoite
Jasperintie 334 A, 33960 Pirkkala
Tilatyyppi
Liiketilaa
2140 m2
Tuotantotilaa
2140 m2
Varastotilaa
2140 m2
Yhteensä
2140 m2
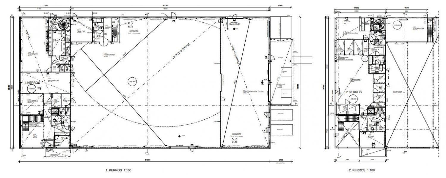
Pohjapiirros
Kiinteistö
Korkea ja selkeä hallitila vapaana. Hallitilan pinta-ala 1 450 m² ja toimistotilaa 682 m². Hallissa lastauslaituri kahdella kuormaussillalla sekä kaksi nosto-ovea. Pukuhuoneet sijaitsevat sekä hallissa että toimistotiloissa. Toimistoa kahdessa kerroksessa suurilla ikkunoilla. Kohteessa myös sauna. Erinomainen sijainti ja suora näkyvyys Tampereen ohitustielle sekä hyvä saavutettavuus eri puolilta kaupunkia. Ylläpitovuokra ei sisällä lämmitystä, joka on vuokralaisen vastuulla. Lämmitysmuotona maalämpö. Pysäköintipaikat sisältyvät vuokraan.
Toimitilan tiedot:
- Halli 1450 m²
- Toimistoa n.682 m²
- Korkea
- Pysäköintipaikat sisältyvät vuokraan
Ota yhteyttä ja kysy lisää!
Toimitilan tiedot:
- Halli 1450 m²
- Toimistoa n.682 m²
- Korkea
- Pysäköintipaikat sisältyvät vuokraan
Ota yhteyttä ja kysy lisää!
Vapautuu
Kesällä 2026
Rakennusvuosi
2019
Kerros
1.-2.
Ota yhteyttä
Arvo Premises Oy
Joni Männikkö
Osakas, Kiinteistönvälittäjä, LKV,
Näytä puhelinnumero
0445636441
Joakim Kukkonen
Osakas, Toimitilavälittäjä
Näytä puhelinnumero
040 555 8106
Pyydä lisätietoa
