Vuokrataan liiketilat - Hyvinkää
Hämeenkatu 3 LH 32, Keskusta, 05800 Hyvinkää #10855972
Nyt vuokrattavana avara ja erittäin muuntojoustava liiketila Hyvinkään keskustassa, Kauppakeskus Jussintorin C-portaan 2. kerroksessa.
Tilakuvaus:
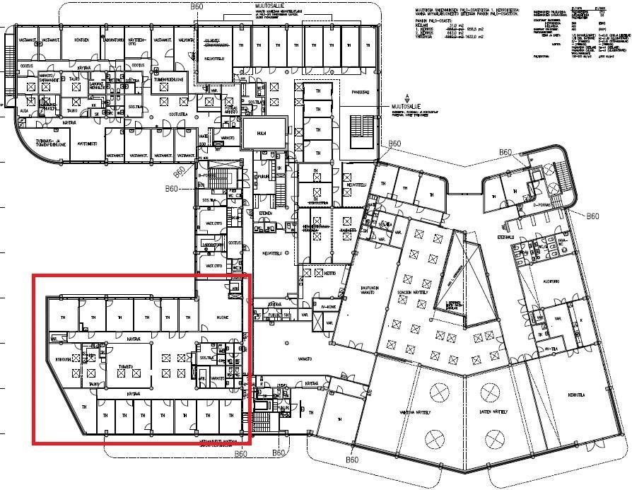
Tila muodostuu monipuolisesta kokonaisuudesta, joka soveltuu erinomaisesti mm. vastaanotto-, asiakaspalvelu-, toimisto- tai hyvinvointialan käyttöön.
Tilassa on avara ja valoisa aulatila, joka sopii hyvin esim. avotyöskentelyyn, odotustilaksi tai asiakaspalveluun. Aulatilassa viilennys.
13 erillistä työ- ja toimistohuonetta.
Suuri neuvottelutila
Selkeä ja toimiva pohjaratkaisu
C-portaassa hissi.
Liikehuoneisto on toiminut historiansa aikana mm. vastaanottotilana, joten se soveltuu erityisen hyvin palvelupainotteiseen liiketoimintaan.
Sijainti:
Kauppakeskus Jussintori sijaitsee Hyvinkään ydinkeskustassa, jossa palvelut, julkinen liikenne ja asiakasvirrat ovat lähellä.
Keskeinen sijainti yhdessä kauppakeskusympäristön kanssa tarjoaa yritykselle erinomaisen saavutettavuuden ja näkyvyyden.
Kenelle tila sopii
Vastaanotto- ja hyvinvointialan toimijat
Toimisto- ja asiakaspalvelutoiminta
Koulutus- ja valmennusyritykset
Järjestöt ja yhdistystoiminta
Yritykset, jotka tarvitsevat useita huoneita tai rauhallisia työtiloja
Tila on heti vapaa.
Kysy lisätietoja ja sovi esittely
Mika Nyman
0400347758
mika.nyman@op.fi
Vuokralaisen tehtävä oma sähkösopimus, sekä sopimus tietoliikenneyhteyksistä.
Valomainokset/plexikot. 50 €/v
Valomainokset/ruskea kotelo 100 €/v
Autopaikkamaksu 50 € /kk
Vuokrattavana C-portaan 2. kerroksen tila.
Liikehuoneisto 32, pinta-ala 441 m².
C-portaassa hissi.
Tilat vuokrataan nykykunnossa ja tilamuutokset / remontti on neuvoteltavissa vuokranantajan kanssa.
Vuokra on alv:ton.
Vuokrasopimus voidaan sopia määräaikaisena tai toistaiseksi voimassaolevana. Toist.voimassa olevassa sopimuksessa 1. mahdollinen irtisanomisaika on 12 kk vuokrasopimuksen alkamisesta.
Vakuus vastaa 2-4 kk vuokraa vastaava summa. Vakuus tilitalletus / vakuustili.
KOY Jussintori, yhtiön perustiedot:
Tontti: Oma 5371 m²
Rakennukset: 1 kpl
Tilavuus: 29.660 m³
Huoneistopinta-ala: 5.982 m³
Osakelukumäärä 7325 kpl.
Valmistumisvuosi: 1981
Liiketalon rakennusaine kivi/ betoni.
Tasakatto, huopakate.
Koneellinen ilmanvaihto.
Kaukolämpö.
Isännöinti: Hyvinkään Tilikeskus Oy
Erikseen vuoktattavana KOY:ltä:
Valomainokset/plexikot. 50 €/v
Valomainokset/ruskea kotelo 100 €/v
Autopaikkamaksu 50 € /kk
Koy Jussintorin autopaikat on osoitettu pysäköintihallista ja ne on vuokrattu Hyvinkään kaupungilta. Pysäköintihallin korjaus- ja kunnossapitovastuu on Hyvinkään kaupungilla.
2024 Kuntoarvio.
2023 Radan puoleisen päädyn rapun vesikatteen saneeraus.
2022 Rek-keskus ja anturit uusittu (rasvakaivo). Ilmanvaihdon nuohous ja säätö
Vss-tiiveyskoe ja tarkastus. 1.krs Op:n hlökunnan wc:n viemärilinjan sukitus runkolinjaan saakka.
2021 Paloilmoitinjärjestelmä, määräaikaistarkastuksen mukaiset puutteet korjattu.
2018 Osuuspankin toimistotilojen yläpuolella oleva pitkän viemärin vaakalinjan sukitus.
2012 Taidemuseon kattoikkunoiden uusiminen.
2011 Lvi-tekniikan, rakennusautomaation, sähköjen, hissien ja vesikatteen saneeraus.
Pidempi korjaushistoria vuodesta 2000 alkaen erillisessä Korjauspäiväkirjassa
PTS 2024 -2034 mukaan isoinpina hankkeina on esitetty:
2026: Uusitaan TK/PK06 ja rasvanpoiston huippuimuri ja Höyrykostuttimen uusinta.
2028 Varaus vesijohtojen ja viemärien saneeraukseen (80-luvun vesijohdot ja viemärit, joita ei ole uusittu
tai pinnoitettu), Tonttivesi- ja tonttiviemäreijohtojen uusiminen, Vesikalusteiden ja lattiakaivojen uusiminen.
2032: Vedenjäähdytyskoneen, pumppujen ja nestejäähdyttimien uusinta.
2034: Käyttöveden moottoriventtiilien toimilaitteen uusinta ja patteriventtilien ja termostaattien uusinta.
Verkoston tasapainotus
OP Koti Uusimaa Oy LKV
Toimitilapalvelut
Arkadiankatu 23
00100 HELSINKI
Mika Nyman
Toimitilavälittäjä, Kiinteistöarvioija, LKV, YKV, AKA/KHK
Näytä puhelinnumero
0400 347 758
