Vuokrataan toimistotilat, tuotantotilat, varastotilat, muut tilat - Pori
Ulasoorintie 14, Ulasoori, 28600 Pori #10855946
Vuokrataan teollisuushalli Porin Ulasoorista
Osoite
Ulasoorintie 14, 28600 Pori
Tilatyyppi
Toimistotilaa
20 m2
Tuotantotilaa
1980 m2
Varastotilaa
2380 m2
Muuta tilaa
250 m2
Yhteensä
1980 - 2650 m2
Kiinteistö
Vuokrataan teollisuushalli Porin Ulasoorista
Osoite: Ulasoorintie 14, Pori
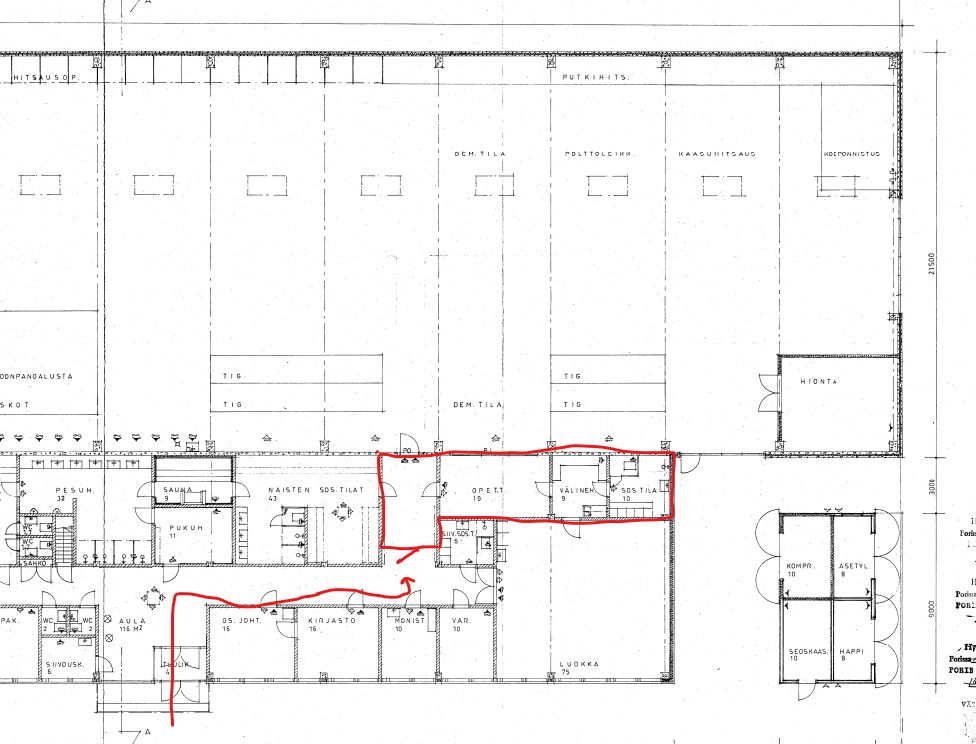
Tarjolla on tilava ja monipuolinen teollisuushalli, joka soveltuu erinomaisesti esimerkiksi varastointi- ja logistiikkatoimintaan. Kohteeseen tehdään merkittäviä parannuksia tammikuussa 2026, mukaan lukien valaistuksen uusiminen energiatehokkailla LED-valaisimilla sekä uusien nosto-ovien ja lukitusten asennus.
Tilatiedot
Vuokrattava kokonaisuus koostuu useista tiloista, jotka tarjoavat joustavuutta erilaisiin tarpeisiin. Alla on erittely vuokrattavista tiloista:
Päähalli:
Pinta-ala: noin 1 890 m²
Vapaakorkeus: 8,8 m
Lisätiedot: Sisältää 10 tonnin siltanosturin.
Takaosan tilat:
Pinta-ala: noin 250 m²
Kaksi erillistä tilaa, jotka vuokrataan yhdessä päähallin kanssa.
Toimistotila:
Pinta-ala: noin 20 m²
Siisti ja valmis toimistotila.
Vuokrattava kokonaisuus yhteensä: Noin 2 160 m² (1890 m² + 250 m² + 20 m²)
Lisäksi kiinteistössä on muita tiloja, jotka ovat erikseen vuokrattavissa:
Luokkatilat:
Pinta-ala: noin 850 m²
Soveltuvat varastokäyttöön. Toimistokäyttö vaatii remontin. Vuokrataan erikseen neuvoteltavalla hinnalla.
Kylmävarasto:
Pinta-ala: 430 m²
Pihalla sijaitseva halli, joka on tällä hetkellä vuokrattuna
Yhteenveto
Vuokrattava tila: n. 2 160 m² teollisuus- ja toimistotilaa.
Parannustyöt: Uusi LED-valaistus ja nosto-ovet asennetaan tammikuussa 2026.
Sijainti: Ulasoorintie 14, Pori.
Ota yhteyttä ja kysy lisää tai sovi esittely!
Tuomas Lehtinen / 044 4915 961
Osoite: Ulasoorintie 14, Pori
Tarjolla on tilava ja monipuolinen teollisuushalli, joka soveltuu erinomaisesti esimerkiksi varastointi- ja logistiikkatoimintaan. Kohteeseen tehdään merkittäviä parannuksia tammikuussa 2026, mukaan lukien valaistuksen uusiminen energiatehokkailla LED-valaisimilla sekä uusien nosto-ovien ja lukitusten asennus.
Tilatiedot
Vuokrattava kokonaisuus koostuu useista tiloista, jotka tarjoavat joustavuutta erilaisiin tarpeisiin. Alla on erittely vuokrattavista tiloista:
Päähalli:
Pinta-ala: noin 1 890 m²
Vapaakorkeus: 8,8 m
Lisätiedot: Sisältää 10 tonnin siltanosturin.
Takaosan tilat:
Pinta-ala: noin 250 m²
Kaksi erillistä tilaa, jotka vuokrataan yhdessä päähallin kanssa.
Toimistotila:
Pinta-ala: noin 20 m²
Siisti ja valmis toimistotila.
Vuokrattava kokonaisuus yhteensä: Noin 2 160 m² (1890 m² + 250 m² + 20 m²)
Lisäksi kiinteistössä on muita tiloja, jotka ovat erikseen vuokrattavissa:
Luokkatilat:
Pinta-ala: noin 850 m²
Soveltuvat varastokäyttöön. Toimistokäyttö vaatii remontin. Vuokrataan erikseen neuvoteltavalla hinnalla.
Kylmävarasto:
Pinta-ala: 430 m²
Pihalla sijaitseva halli, joka on tällä hetkellä vuokrattuna
Yhteenveto
Vuokrattava tila: n. 2 160 m² teollisuus- ja toimistotilaa.
Parannustyöt: Uusi LED-valaistus ja nosto-ovet asennetaan tammikuussa 2026.
Sijainti: Ulasoorintie 14, Pori.
Ota yhteyttä ja kysy lisää tai sovi esittely!
Tuomas Lehtinen / 044 4915 961
Vapautuu
Kysy
Kerros
1
Siltanosturi
Ota yhteyttä
Logistila Oy
Kalevan puistotie 22 LT 4, 33500 Tampere
Tuomas Lehtinen
Näytä puhelinnumero
044 491 5961
Pyydä lisätietoa
