Vuokrataan toimistotilat, liiketilat, muut tilat - Tampere
Hatanpäänkatu 18, Hatanpää, 33100 Tampere #10855781
Alilääkärin talo Hatanpäällä
Osoite
Hatanpäänkatu 18, 33100 Tampere
Tilatyyppi
Toimistotilaa
225 m2
Liiketilaa
225 m2
Muuta tilaa
225 m2
Yhteensä
225 m2
Pysäköinti
3 kpl
Muuta
Vuokrattavana Tampereen Hatanpäällä kokonainen toimisto- tai liiketilakäyttöön soveltuva rakennus. Vuokrattava kerrosala on yhteensä 225 m². Kiinteistö sijaitsee puistomaisella paikalla lähellä Pyhäjärven rantaa. Tampereen keskustaan on matkaa noin 2 km ja Hatanpäälle on hyvät liikenneyhteydet mm. vieressä toimivan sairaalan ansiosta.
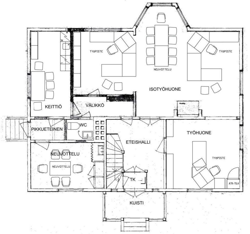
Kyseessä on 1920-luvun pohjoismaista klassismia edustava, alun perin alilääkärin asunnoksi suunniteltu rakennus. Rakennus on peruskorjattu vuonna 2003 toimistokäyttöön, jolloin tilat muunnettiin työhuoneiksi ja neuvottelutiloiksi. Samalla uusittiin sisäpinnat, kiintokalusteet sekä sähköasennukset. Alkuperäinen tilajako on kuitenkin säilynyt pääosin ennallaan, ja monet yksityiskohdat, kuten alkuperäiset peiliovet ja porraskaide, ovat edelleen tallella. Tilassa on useita huoneita kahdessa kerroksessa, keittiö- ja taukotilat henkilökunnalle sekä kellaritiloja varastointiin.
Rakennuksessa on säilynyt paljon historiallisia piirteitä: julkisivujen rimalaudoitus, umpiräystäät ja parvekkeellinen sisäänkäyntiveranta puupilareineen kertovat rakennuksen pitkästä historiasta. Marsardikaton ja tiilikatteen yhdistelmä, salmiakkikuvioidut ikkunat ja koristeelliset vuorilaudat antavat rakennukselle tunnistettavan ja ainutlaatuisen ulkoasun. Rakennuksen arkkitehtoninen arvo on tunnustettu myös rakennushistoriallisessa selvityksessä, ja julkisivujen alkuperäisyysaste on korkea. Sisätilat ovat haluttaessa palautettavissa alkuperäiseen ilmeeseen.
Tila on heti vapaa ja muutostyöt vuokralaisen toiveiden mukaan onnistuu. Vuokrattava rakennus tarjoaa monipuoliset mahdollisuudet esimerkiksi toimistokäyttöön tai edustavaan asiakastilaan. Kohde sopii hyvin toimijalle, joka arvostaa historiallista miljöötä ja persoonallista ympäristöä.
Tervetuloa tutustumaan, varaathan välittäjältä oman esittelyaikasi. Voit kysyä meiltä myös muita sopivia vaihtoehtoja, kauttamme löydät juuri Teidän tarpeisiinne sopivat tilat. Palvelumme on tilanhakijalle veloitukseton!
Kyseessä on 1920-luvun pohjoismaista klassismia edustava, alun perin alilääkärin asunnoksi suunniteltu rakennus. Rakennus on peruskorjattu vuonna 2003 toimistokäyttöön, jolloin tilat muunnettiin työhuoneiksi ja neuvottelutiloiksi. Samalla uusittiin sisäpinnat, kiintokalusteet sekä sähköasennukset. Alkuperäinen tilajako on kuitenkin säilynyt pääosin ennallaan, ja monet yksityiskohdat, kuten alkuperäiset peiliovet ja porraskaide, ovat edelleen tallella. Tilassa on useita huoneita kahdessa kerroksessa, keittiö- ja taukotilat henkilökunnalle sekä kellaritiloja varastointiin.
Rakennuksessa on säilynyt paljon historiallisia piirteitä: julkisivujen rimalaudoitus, umpiräystäät ja parvekkeellinen sisäänkäyntiveranta puupilareineen kertovat rakennuksen pitkästä historiasta. Marsardikaton ja tiilikatteen yhdistelmä, salmiakkikuvioidut ikkunat ja koristeelliset vuorilaudat antavat rakennukselle tunnistettavan ja ainutlaatuisen ulkoasun. Rakennuksen arkkitehtoninen arvo on tunnustettu myös rakennushistoriallisessa selvityksessä, ja julkisivujen alkuperäisyysaste on korkea. Sisätilat ovat haluttaessa palautettavissa alkuperäiseen ilmeeseen.
Tila on heti vapaa ja muutostyöt vuokralaisen toiveiden mukaan onnistuu. Vuokrattava rakennus tarjoaa monipuoliset mahdollisuudet esimerkiksi toimistokäyttöön tai edustavaan asiakastilaan. Kohde sopii hyvin toimijalle, joka arvostaa historiallista miljöötä ja persoonallista ympäristöä.
Tervetuloa tutustumaan, varaathan välittäjältä oman esittelyaikasi. Voit kysyä meiltä myös muita sopivia vaihtoehtoja, kauttamme löydät juuri Teidän tarpeisiinne sopivat tilat. Palvelumme on tilanhakijalle veloitukseton!
Vapautuu
Kysy
Rakennusvuosi
1923
Kerros
1-2
Ota yhteyttä
Tuloskiinteistöt Oy
Finlaysoninkatu 4, 33210 Tampere
Näytä puhelinnumero
050 502 4639
Sanna Eerilä-Vänni
Director, Partner
Näytä puhelinnumero
+358 50 5024639
Tara Särkinen
Commercial Real Estate Advisor
Näytä puhelinnumero
+358443187720
Pyydä lisätietoa
