Vuokrataan näyttelytilat - Helsinki
Vuokrataan 189 m2 näyttelytilaa, Rälssintie 6, Pukinmäki Helsinki, Rälssintie 6, Pukinmäki, 00720 Helsinki #10855259
Vuokrataan toimisto- ja näyttely-/showroom-tilaa loistavalta sijainnilta Pukinmäestä, aivan Kehä I varrelta sekä Pukinmäen juna-aseman läheisyydestä. Kiinteistössä toimii konserniyhtiömme Oy Perkko, jonka ydinliiketoimintaa on kellojen ja korujen maahantuonti. Tilat ovat Perkon käytössä osittain eli kiinteistön muut tilat on vuokrattavissa eri kokoisina vaihtoehtoina (alkaen 221 m2) tai suurempina kokonaisuuksina. Julkisilla matka-aika Pukinmäkeen keskustasta on alle vartti.
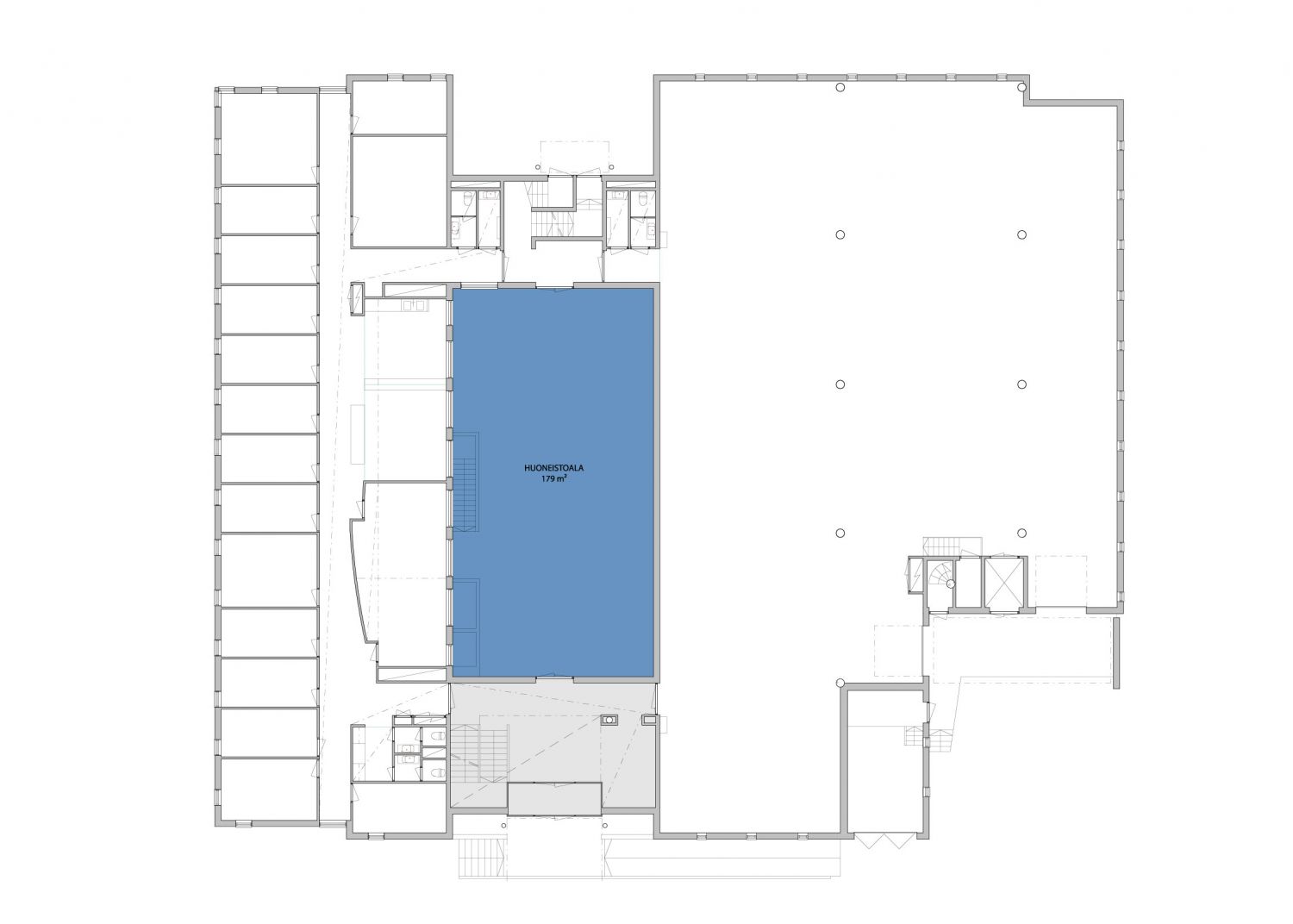
Kiinteistön vuokrattavasta 2877 m2 kokonaispinta-alasta on showroom-/näyttelytilaa 179 m2 ja varastoa 850 m2, josta 1. kerroksessa 640 m2 ja loput yläkerran varastotilaa. Muut tilat soveltuvat toimistotiloiksi tai kevyeen tuotantotilakäyttöön. Katso myös muut ilmoituksemme tästä kohteesta!
Rakennus on 90-luvulla rakennettu monipuoliseen käyttöön taipuva kokonaisuus, joka kattaa kaiken kaikkiaan pohjakerroksen ja kaksi kerrosta. Kellarikerroksessa on sauna, ruokala, sosiaalitilat. Varaston kantavuus on 800 kg/m2 ja kiinteistöllä on oma lastauslaituri.
Rakennuksella on runsaasti omia autopaikkoja (33 kpl) ja mahtavat puitteet sosiaalitiloille, joista saa pienellä päivityksellä haluamansa tasoiset.
Lisätietoja kohteesta sekä pdf-muotoiset pohjakuvat löydät verkkosivuiltamme: https://nurmikiinteistot.fi/toimitila/ralssintie-6-kiinteisto-pukinmaki-helsinki/
Kohteen videoesittely löytyy täältä: https://youtu.be/J-ArH-nK-J0
Tästä kohteesta voit olla yhteydessä pääkaupunkiseudun vuokrauspäällikköömme Artoon.
Puh. 044 906 2226 / Arto Haavisto
Katutasossa
Näkyvällä paikalla
Jaettavissa
Hissi
Lastauslaituri
Nurmi-Yhtiöt Oy
Nurmi Kiinteistöt
Jousitie 7
20760 Piispanristi
puh.
Näytä puhelinnumero
044 906 2226
/ Arto Haavisto (pk-seutu)
puh.
Näytä puhelinnumero
040 624 0344
/ Ilias Niemi (Varsinais-Suomi)
