Myydään toimistotilat, liiketilat, tuotantotilat, autotalli/-hallitilat, muut tilat - Oulu
Puolatie 2, 90400 Oulu #10855255
Myydään uutuuttaan hohtava hallikohde suositulta Rusko alueelta!
Osoite
Puolatie 2, 90400 Oulu
Tilatyyppi
Toimistotilaa
122 m2
Liiketilaa
373 m2
Tuotantotilaa
214 m2
Autotalli/-hallitilaa
214 m2
Muuta tilaa
37 m2
Yhteensä
373 m2
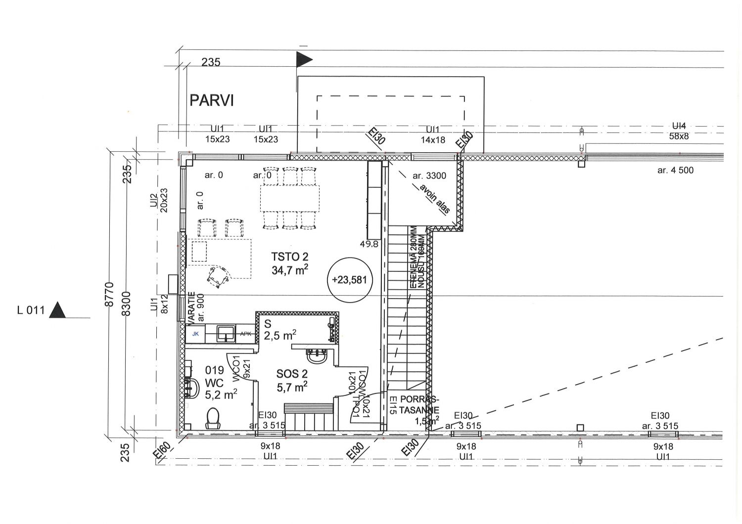
Tilajako
Lisäksi katosrakennus 144m², n.18 x8m
Pohjapiirros
Myyntihinta
Velaton myyntihinta 515.000€
Kiinteistö
Oulun kaupungin vuokratontti 31.12.2051 saakka.
Tontin koko on 4697m², rakennusoikeus on 2348m² josta käytetty 466m². Rakentamiseen saa käyttää tontin pinta-alasta 1409m²
Tontin koko on 4697m², rakennusoikeus on 2348m² josta käytetty 466m². Rakentamiseen saa käyttää tontin pinta-alasta 1409m²
Pysäköinti
Hyvät piha-alueet
Muuta
Tontin vuokra 4491€, kiinteistövero 2718€, kiinteistön vakuutukset 420€ ja kaukolämpö 4400€ = yht. 12.029€/v.
Rakentaminen hieman vielä kesken.
Nosto-ovet 5600x4500 ja 2kpl 4500x4000.
Rakentaminen hieman vielä kesken.
Nosto-ovet 5600x4500 ja 2kpl 4500x4000.
Vapautuu
n. kuukauden kuluttua kaupanteosta
Rakennusvuosi
2025
Kerros
1 / 2
Näkyvällä paikalla
Liitetiedostot
Ota yhteyttä
Pohjois-Suomen Toimitilat Oy
Harjapäänkatu 33, 90400 Oulu
Pekka Valkola
Näytä puhelinnumero
044 311 0555
Pyydä lisätietoa
