Vuokrataan liiketilat - Oulu
Kapellimestarinkatu 2 2.Krs, Karjasilta, 90140 Oulu #10855180
Osoite
Kapellimestarinkatu 2 2.Krs, 90140 Oulu
Tilatyyppi
Liiketilaa
300 - 959 m2
Muuta
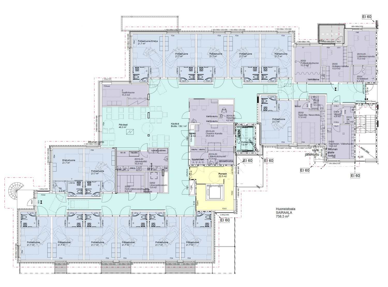
Nyt vuokrattavissa sairaala-/hoivatila, joka on remontoitu sairaalakäyttöön vuonna 2014. Tilaa on mahdollista muokata vuokralaisen tarpeita vastaavaksi esimerkiksi toimisto- tai majoituskäyttöön.
Tila on mahdollista jakaa kahteen osaan ja vuokrattavissa oleva neliömäärä on minimissään noin 300m2 ja toisaalta tilaa on mahdollista laajentaa neljän n. 40m2 asunnon verran yhteensä 959m2 tilaksi.
Kokonaisuus koostuu seuraavista tiloista:
- kahden hengen huoneita 14 kpl, koko 21,7m2, oma pesuhuone
- aulatila, jonka yhteydessä hyvin varusteltu jakelukeittiö
- toimisto-/kansliahuoneita 3 kpl, näistä kaksi soveltuu myös asiakashuoneiksi
- henkilökunnan taukotila / neuvotteluhuone
- kylpyhuone
- väline- ja vaatehuoltotilat
- lääkehoitohuone
- kaksi hissiä, joista toiseen mahtuu sairaalasänky
- muita tukitiloja, kuten varastohuoneita
- hätäpoistumistiet
- pysäköintipaikkoja parkkihallissa
Tilan varustelutaso on todella monipuolinen:
- äänieristetyt huoneet
- happijärjestelmä (sairaalakaasujärjestelmä)
- huonepaineen säätö osassa huoneista
- jäähdytys kattopuhaltimilla toimisto-/kansliatiloissa
- koneellinen ilmanvaihto
- valvontakamerajärjestelmä
- äänentoistojärjestelmä
- sprinkleröinti
Esittelyt ja lisätietoja:
Henri Huotari
040 541 8854
henri.huotari@kiinteistotahkola.fi
Tila on mahdollista jakaa kahteen osaan ja vuokrattavissa oleva neliömäärä on minimissään noin 300m2 ja toisaalta tilaa on mahdollista laajentaa neljän n. 40m2 asunnon verran yhteensä 959m2 tilaksi.
Kokonaisuus koostuu seuraavista tiloista:
- kahden hengen huoneita 14 kpl, koko 21,7m2, oma pesuhuone
- aulatila, jonka yhteydessä hyvin varusteltu jakelukeittiö
- toimisto-/kansliahuoneita 3 kpl, näistä kaksi soveltuu myös asiakashuoneiksi
- henkilökunnan taukotila / neuvotteluhuone
- kylpyhuone
- väline- ja vaatehuoltotilat
- lääkehoitohuone
- kaksi hissiä, joista toiseen mahtuu sairaalasänky
- muita tukitiloja, kuten varastohuoneita
- hätäpoistumistiet
- pysäköintipaikkoja parkkihallissa
Tilan varustelutaso on todella monipuolinen:
- äänieristetyt huoneet
- happijärjestelmä (sairaalakaasujärjestelmä)
- huonepaineen säätö osassa huoneista
- jäähdytys kattopuhaltimilla toimisto-/kansliatiloissa
- koneellinen ilmanvaihto
- valvontakamerajärjestelmä
- äänentoistojärjestelmä
- sprinkleröinti
Esittelyt ja lisätietoja:
Henri Huotari
040 541 8854
henri.huotari@kiinteistotahkola.fi
Vapautuu
Heti vapaa
Rakennusvuosi
2004
Kerros
2
Ota yhteyttä
Kiinteistö-Tahkola Oy
Lumijoentie 1, 90400 Oulu
Näytä puhelinnumero
0207 480 250
Henri Huotari
Näytä puhelinnumero
0405418854
Pyydä lisätietoa
