Vuokrataan toimistotilat - Espoo
Espoon Tietäjäntien Välke, Tietäjäntie 2, Pohjois-Tapiola, 02130 Espoo #10854979
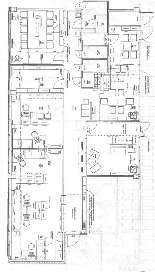
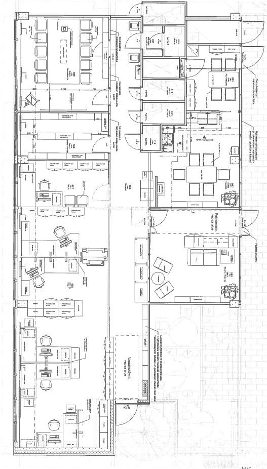
1. kerroksen toimistotila
Osoite
Tietäjäntie 2, 02130 Espoo
Tilatyyppi
Toimistotilaa
174 m2
Muuta
Tietäjäntie 2 sijaitsee Kehä I:n vieressä, Pohjois-Tapiolan yrityskeskittymässä. Kiinteistössä vuokrattavia toimistotiloja, neuvottelutiloja ja saunaosasto. Pysäköintipaikkoja on parkkihallissa sekä piha-alueella.
Tapiolan alueen monipuoliset palvelut ovat lähietäisyydellä. Matkaa metroasemalle on noin 1 km ja Raide-Jokerin pysäkille 700 m.
Tapiolan alueen monipuoliset palvelut ovat lähietäisyydellä. Matkaa metroasemalle on noin 1 km ja Raide-Jokerin pysäkille 700 m.
Vapautuu
Kysy
Kerros
1
Ota yhteyttä
Infonia Oy
Itsehallintokuja 4, 02600 Espoo
Näytä puhelinnumero
+358404551390
Leena Juhola
Pyydä lisätietoa
