Vuokrataan toimistotilat - Helsinki
Höyläämötie 14, Pitäjänmäen Teollisuusalue, 00380 Helsinki #10854976
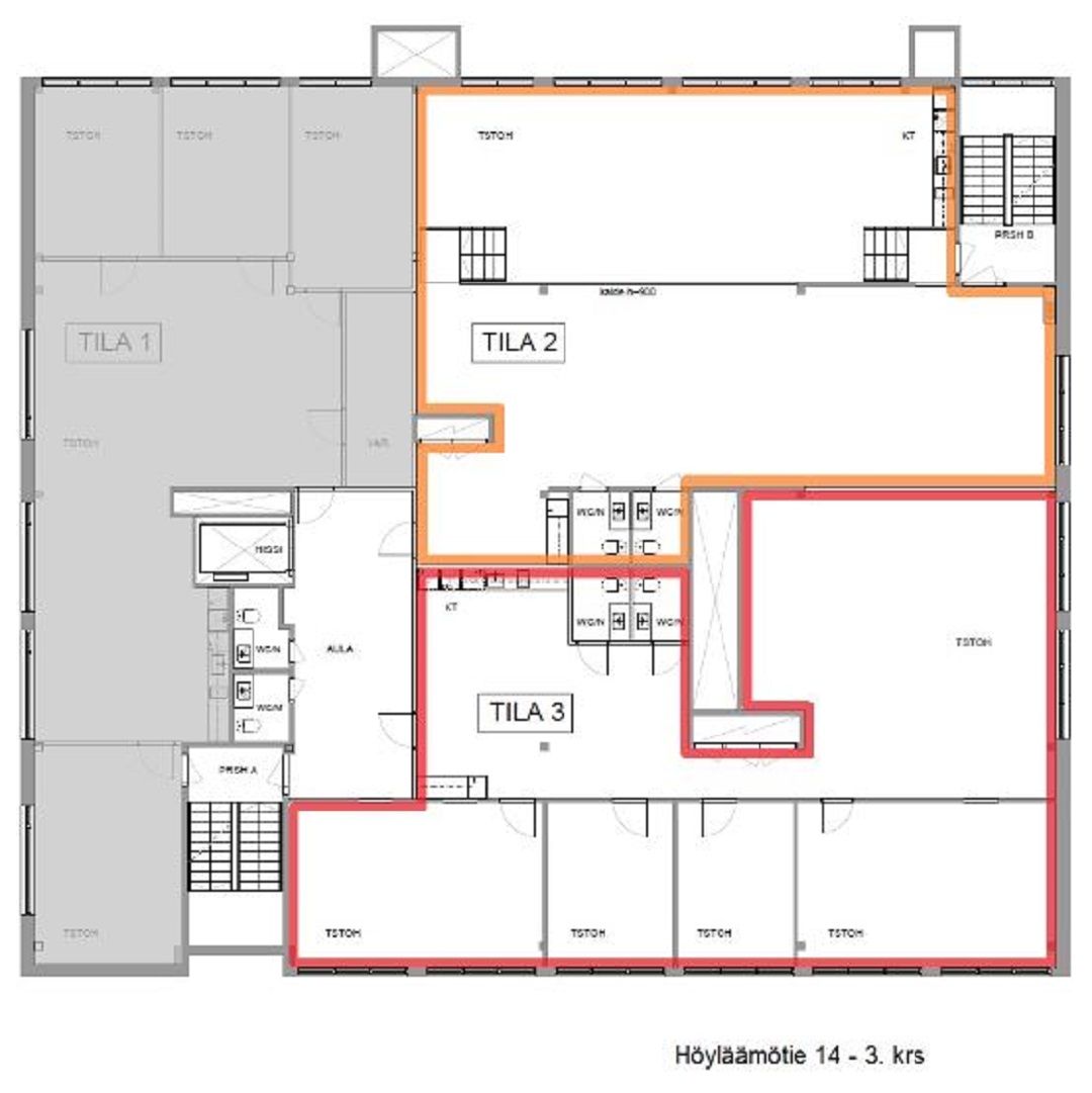
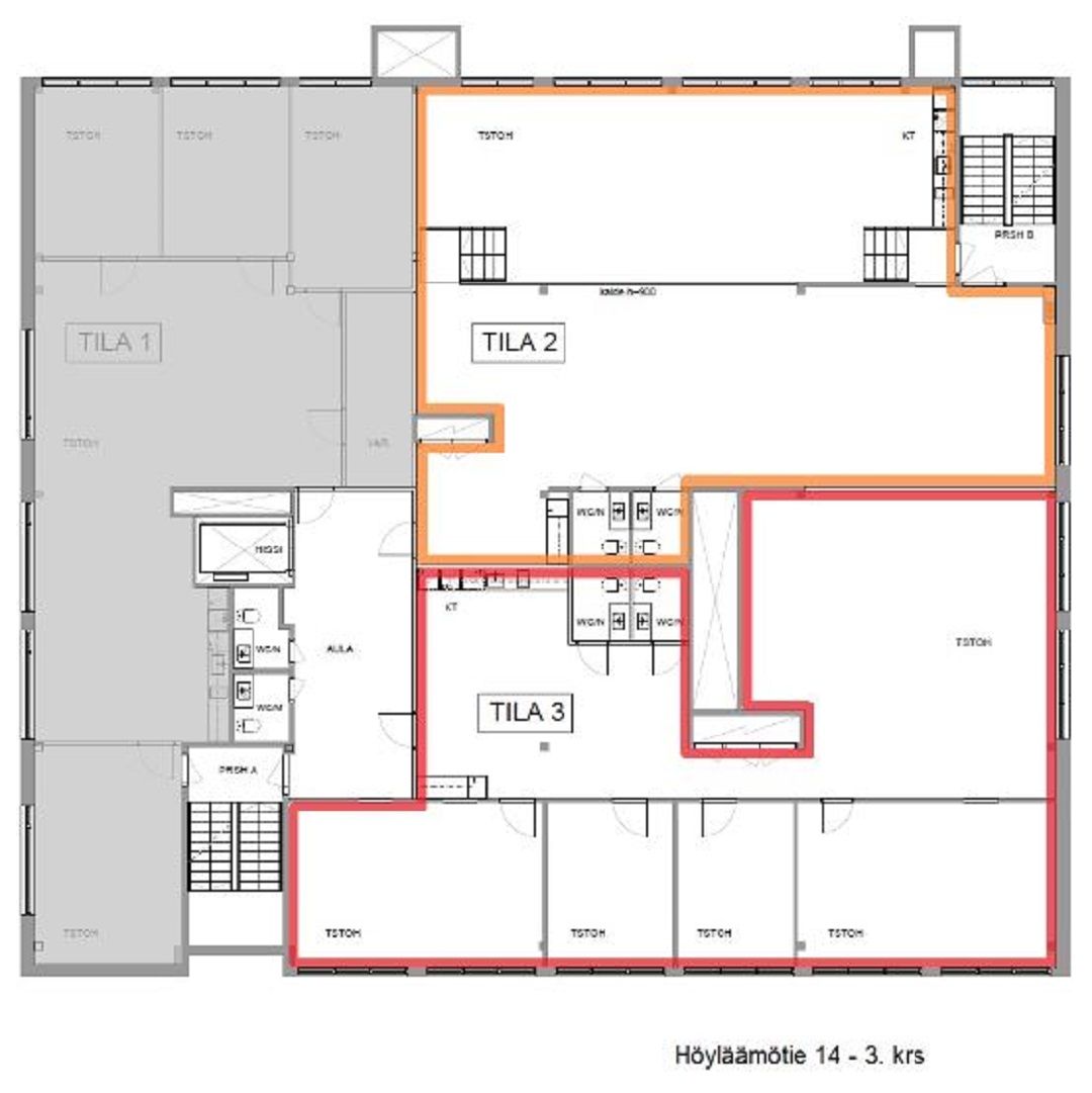
Persoonallinen 2-tasoinen tila vaikka luovan alan yritykselle. Tila on nyt betonipinnoilla, joten siihen on toteutettavissa tilajako avo- huone- tai monitilatoimistona tarpeiden mukaan.
Osoite
Höyläämötie 14, 00380 Helsinki
Tilatyyppi
Toimistotilaa
162 m2
Muuta
Pitäjänmäen ytimeen, loistavien kulkuyhteyksien varrelle on juuri kunnostettu monenlaiseen toimintaan sopivia toimistiloja. Höyläämötien valoisa kokonaisuus tarjoaa viihtyisän ja toimivan tilaratkaisun erilaisille yrityksille. Vielä vapaana olevat vaihtoehdot ovat muokattavissa asiakkaan toiveiden mukaan ja sisustukseenkin voi vaikuttaa.
Höyläämötie 14 on kodikas kokonaisuus, täällä vuokralaiset viihtyvät. Rakennuksen saneeraus on tehty huolella, aikakauden modernistista tyyliä kunnioittaen, toimivaa tekniikkaa unohtamatta. Korkeat huoneet ja laveat nauhaikkunat takaavat valoisan tilantunnun kaikissa kerroksissa.
Pitäjänmäki on vilkas ja kasvava eri alojen ammattilaisten alue, jossa toimii tällä hetkellä jo satoja yrityksiä. Kulkuyhteydet ovat erinomaiset: Pitäjänmäkeen pääsee niin junalla kuin bussillakin kätevästi, mutta helposti myös omalla autolla. Alueella on runsaasti ravintoloita, ja erilaisia hyvinvointipalveluita – lounastauolle tai työpäivän päätteeksi.
Höyläämötien tilat soveltuvat toimistoiksi, luovaan työhön tai vaikkapa myyntiedustamiseen. Tilat voidaan räätälöidä käyttäjän tarpeiden mukaisesti.
Kysy lisää vaihtoehdoista!
Höyläämötie 14 on kodikas kokonaisuus, täällä vuokralaiset viihtyvät. Rakennuksen saneeraus on tehty huolella, aikakauden modernistista tyyliä kunnioittaen, toimivaa tekniikkaa unohtamatta. Korkeat huoneet ja laveat nauhaikkunat takaavat valoisan tilantunnun kaikissa kerroksissa.
Pitäjänmäki on vilkas ja kasvava eri alojen ammattilaisten alue, jossa toimii tällä hetkellä jo satoja yrityksiä. Kulkuyhteydet ovat erinomaiset: Pitäjänmäkeen pääsee niin junalla kuin bussillakin kätevästi, mutta helposti myös omalla autolla. Alueella on runsaasti ravintoloita, ja erilaisia hyvinvointipalveluita – lounastauolle tai työpäivän päätteeksi.
Höyläämötien tilat soveltuvat toimistoiksi, luovaan työhön tai vaikkapa myyntiedustamiseen. Tilat voidaan räätälöidä käyttäjän tarpeiden mukaisesti.
Kysy lisää vaihtoehdoista!
Vapautuu
Kysy
Kerros
3
Ota yhteyttä
Infonia Oy
Itsehallintokuja 4, 02600 Espoo
Näytä puhelinnumero
+358404551390
Leena Juhola
Pyydä lisätietoa
