Vuokrataan toimistotilat - Helsinki
Itälahdenkatu 23, Lauttasaari, 00210 Helsinki #10853990
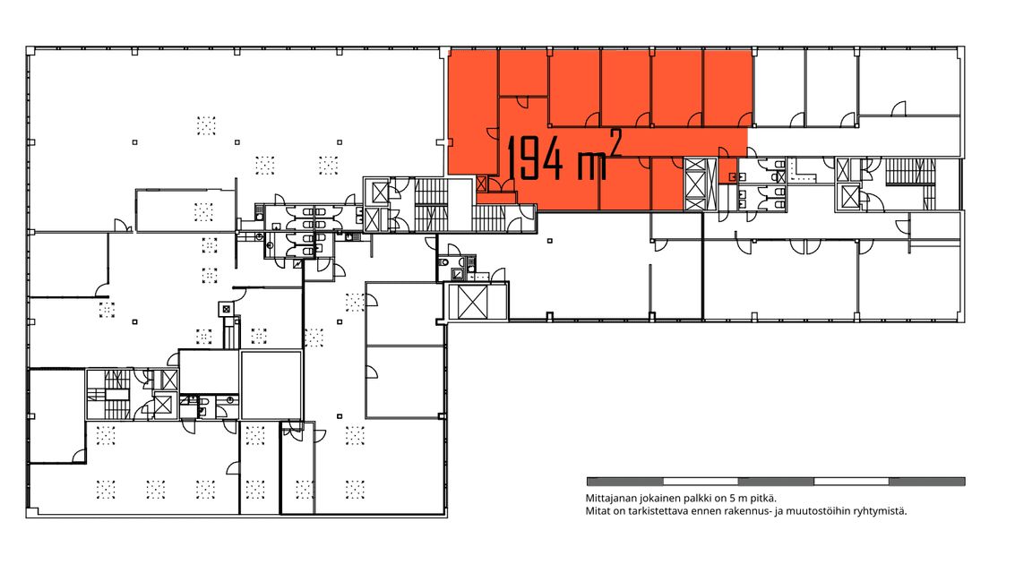
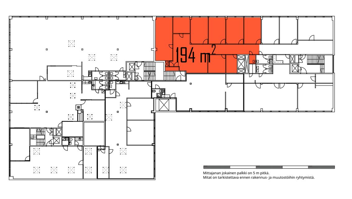
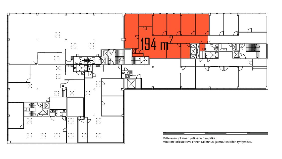
Toimistotila 194 m2 vuokrattavana toimistokiinteistön ylimmästä viidennestä kerroksesta, jonne pääsee henkilöhissillä. Tilassa on kuusi ikkunallista huonetta ja kaksi varastohuonetta tms. Keittiö ja wc ovat yhteisessä käytössä toisen vuokralaisen kanssa.
Helsingin Lauttasaaressa sijaitseva toimistorakennus on valmistunut 1970. Kiinteistöllä on omia parkkipaikkoja ja lastauslaituri. Henkilöhissit kulkevat kaikkiin kerroksiin ja tavarahissit 4. kerrokseen asti.
Lisätietoa 020 7290 710 ja lisää kohteita premises.fi.
Kohteella ei ole lain edellyttämää energiatodistusta tai energialuokka ei tiedossa.Kerros: 5
CRE PREMISES
Puh. Näytä puhelinnumero 020 7290 710
Vantaankoskentie 14
01670 VANTAA
