Vuokrataan toimistotilat, varastotilat, muut tilat - Vantaa
Pyymosantie 4, Petikko, 01720 Vantaa #10853913
Varasto- ja toimistotilaa erinomaisella sijainnilla Vantaan Petikossa
Osoite
Pyymosantie 4, 01720 Vantaa
Tilatyyppi
Toimistotilaa
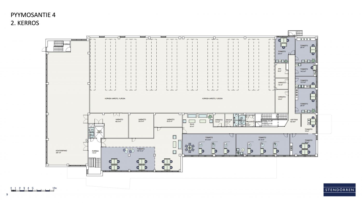
887 m2
Varastotilaa
1845 m2
Muuta tilaa
264 m2
Yhteensä
2996 m2
Kiinteistö
Pyymosantie 4 on noin 2 990 m² suuruinen varastorakennus, jossa on korkeaa varastoa, lastausalue sekä toimistoa. Toimistotilat sijoittuvat pääosin rakennuksen 2. kerrokseen ja niiden osuus on noin 15 %. Lukuisien sisäänkäyntien ansiosta tilat voidaan tarvittaessa jakaa myös useammalle käyttäjälle.
Pyymosantie 4 on noin 2 990 m² suuruinen varastorakennus, jossa on korkeaa varastoa, lastausalue sekä toimistoa. Lukuisien sisäänkäyntien ansiosta tilat voidaan tarvittaessa jakaa myös useammalle käyttäjälle.
Varastotilaa / tuotantotilaa / pienteollisuustilaa: 1 845 m², toimistotilaa: 887 m², kellarin sosiaalitilat (sauna, pukuohuoneet, keittiö yms): 264 m²
Rakennuksen avoimessa varastotilassa on 6,8 metrin vapaa kattokorkeus ja se sopeutuu 3 000 kg / m² lattiakuormitukseen tai 4 000 kg pistekuormalle. 3,9 metriä korkealla lastausalueella on 3.3m ja 3.5m korkeat lastauslaiturille vievät nosto-ovet. Koneistamon4m korkeassa tilassa on 3.5m korkea maantason nosto-ovi.
Kiinteistöllä on 48 autopaikkaa.
Pyymosantie 4 sijaitsee Vantaalla Petikon yritysalueella. Petikko on yksi pääkaupunkiseudun keskeisistä teollisuuden, varastoinnin ja kaupan alueista, joka sijaitsee erinomaisten kulkuyhteyksien varressa aivan Kehä III:n tuntumassa. Helsinki-Vantaan lentokentälle ajaa kiinteistöltä noin 12 minuutissa ja Vuosaaren satamaan noin 20 minuutissa. Lähimmälle bussipysäkille on kiinteistöltä matkaa noin 300m.
Rakennuksen katolle sijoitetut aurinkopaneelit tuovat kiinteistöön omaa energiantuotantoa ja rakennukselle on tehty ESG suunnitelma, jonka toteuttamisen myötä kiinteistölle ollaan hakemassa ympäristösertifiointi.
Pyymosantie 4 on noin 2 990 m² suuruinen varastorakennus, jossa on korkeaa varastoa, lastausalue sekä toimistoa. Lukuisien sisäänkäyntien ansiosta tilat voidaan tarvittaessa jakaa myös useammalle käyttäjälle.
Varastotilaa / tuotantotilaa / pienteollisuustilaa: 1 845 m², toimistotilaa: 887 m², kellarin sosiaalitilat (sauna, pukuohuoneet, keittiö yms): 264 m²
Rakennuksen avoimessa varastotilassa on 6,8 metrin vapaa kattokorkeus ja se sopeutuu 3 000 kg / m² lattiakuormitukseen tai 4 000 kg pistekuormalle. 3,9 metriä korkealla lastausalueella on 3.3m ja 3.5m korkeat lastauslaiturille vievät nosto-ovet. Koneistamon4m korkeassa tilassa on 3.5m korkea maantason nosto-ovi.
Kiinteistöllä on 48 autopaikkaa.
Pyymosantie 4 sijaitsee Vantaalla Petikon yritysalueella. Petikko on yksi pääkaupunkiseudun keskeisistä teollisuuden, varastoinnin ja kaupan alueista, joka sijaitsee erinomaisten kulkuyhteyksien varressa aivan Kehä III:n tuntumassa. Helsinki-Vantaan lentokentälle ajaa kiinteistöltä noin 12 minuutissa ja Vuosaaren satamaan noin 20 minuutissa. Lähimmälle bussipysäkille on kiinteistöltä matkaa noin 300m.
Rakennuksen katolle sijoitetut aurinkopaneelit tuovat kiinteistöön omaa energiantuotantoa ja rakennukselle on tehty ESG suunnitelma, jonka toteuttamisen myötä kiinteistölle ollaan hakemassa ympäristösertifiointi.
Vapautuu
Heti
Rakennusvuosi
1987
Energiatehokkuusluokka
Ei lain edellyttämää energiatodistusta
Lastauslaituri
Ota yhteyttä
ScanReal Oy LKV
Opus Business Park
Hitsaajankatu 24
00810 Helsinki
info@scanreal.fi
Puh:
Näytä puhelinnumero
020 730 8830
Sopivat toimitilat yhdellä otolla!
Kartoitamme toimitilatarpeesi ja etsimme yrityksellesi parhaiten sopivat vapaat toimitilat. Koska vuokranantajat maksavat palvelumme, on tämä yrityksellesi veloituksetonta.
Palvelumme on tilanhakijalle ilmainen
Pyydä lisätietoa
