Vuokrataan toimistotilat, liiketilat, tuotantotilat, varastotilat, työtilat, autotalli/-hallitilat - Jyväskylä
Hallitilaa uudiskohteesta Heinämäen teollisuusalueelta, Varastotie 3, Heinämäki, 40250 Jyväskylä #10853778
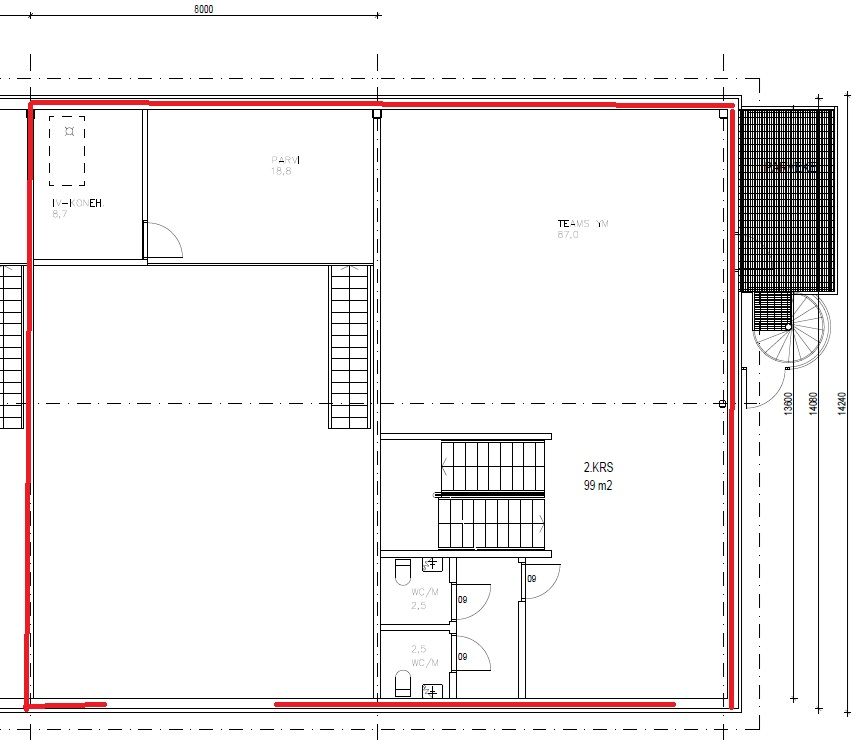
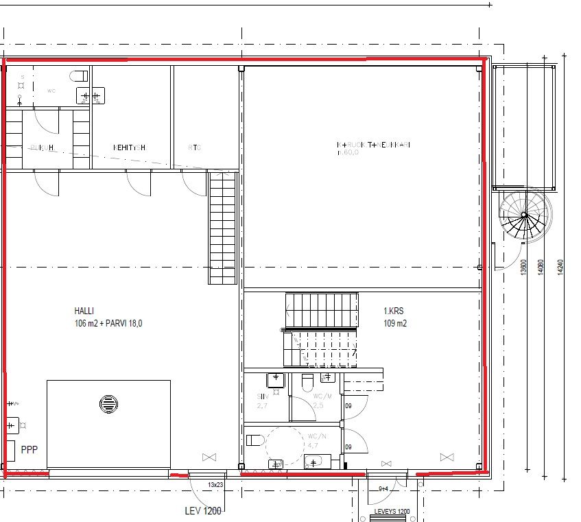
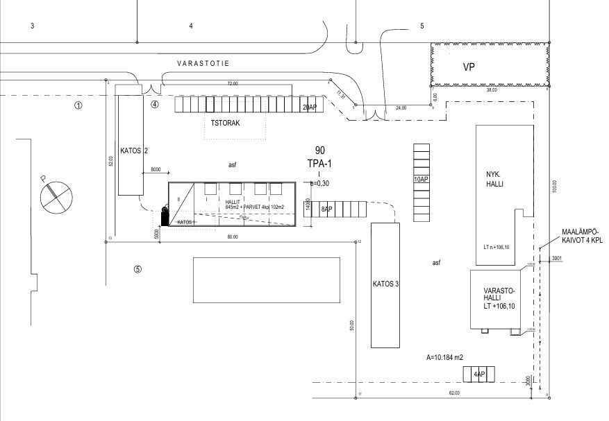
Uudiskohde! Vuokrataan Jyväskylästä Heinämäen teollisuusalueelta yhteensä n. 738 m2 loppuvuodesta 2026 valmistuvia halli- / varasto- / tuotanto- sekä toimistotilaa. Uudiskohteen rakentaminen alkaa huhtikuussa 2026, tilat ovat muuttovalmiita loppuvuodesta 2026. Kiinteistö koostuu neljästä erillisistä, parvellisesta tilasta. Tiloista voidaan yhdistellä isompi kokonaisuus.
Kuhunkin halliin on oma nosto-ovi (L. 4m ja K. 4,5m) ja erillinen käyntiovi. Jokaiseen halliin voidaan toteuttaa asiakkaan toiveiden mukaiset toimisto-, tauko-, ja wc-tilat. Hallitilojen vapaakorkeus n. 5,2 m.
Kohteeseen tulee vesikiertoinen lattialämmitys. Tiloihin tulee öljyn- ja hiekanerotuskaivot. Tilat tullaan varustelemaan riittävällä määrällä sähköpistokkeita ja muilla tarvittavilla varusteilla. Parvelle voidaan tehdä toimisto- ja wc-tilat.
Kiinteistön pihalla on aluevalaistus ja piha on aidattu. Kohteella on hyvin pihatilaa.
Hallit voidaan vuokrata yksittäin tain yhdessä, ja niitä voidaan rakennusvaiheessa muokata käyttäjän tarpeiden mukaisesti.
Lisätiedot ja näytöt:
Henri Kumpulainen, 040 864 3631, henri.kumpulainen@aveon.fi
Uudiskohde
Katutasossa
Jaettavissa
Aveon Real Estate Oy
Kauppakatu 18 C 26, 40100 Jyväskylä
Henri Kumpulainen
Puh.
Näytä puhelinnumero
040 864 3631
henri.kumpulainen@aveon.fi
Olemme kiinteistöliiketoiminnan asiantuntija, joka toimii yrittäjämäisesti neuvonantajana kiinteistökaupoissa, toimitilavälittämisessä sekä kiinteistökehityksessä.
Asiakkaitamme ovat kotimaiset ja ulkomaiset kiinteistönomistajat, -sijoittajat sekä tilojen käyttäjät kaikkialla Suomessa.
