Myydään liiketilat - Kouvola
Ahomutka 1-3, Valkeala, 45360 Kouvola #10853548
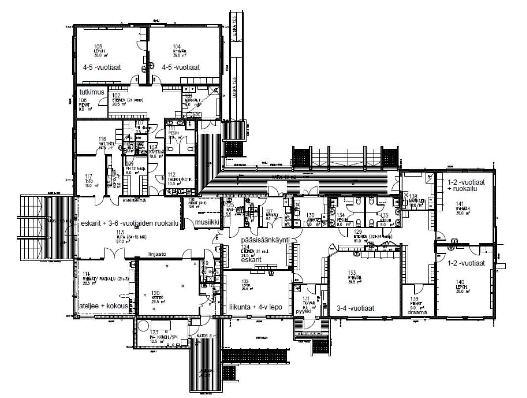
Moderni puurakenteinen päiväkoti Kouvolan Valkealassa
Tarjolla nykyaikainen ja hyväkuntoinen päiväkotirakennus rauhallisella ja vetovoimaisella alueella Kouvolan Valkealassa.
Vuonna 2020 valmistunut yksikerroksinen rakennus tarjoaa tehokkaasti suunniteltua ja toimivaa tilaa.
Kohde on suunniteltu 84 lapsen päiväkäyttöön, ja tilaratkaisut tukevat turvallista, sujuvaa ja viihtyisää arkea.
Rakennuksen moderni talotekniikka ja nuori ikä mahdollistavat matalat ylläpitokustannukset ja huolettoman omistamisen.
Rakennus sijaitsee vuokratontilla (6 595 m²), joka tarjoaa merkittävää lisäarvoa tulevaisuuden kehitysnäkymien kautta.
Tontilla aidatut leikkialueet leikkivälineineen ja kalusteineen, sekä grillikota.
Autopaikkoja yht. 25 kpl.
Asemakaava YS - kohde soveltuu erinomaisesti päiväkotikäyttöön sekä tapauskohtaisesti myös muuhun hoiva-, opetus- tai palvelutoimintaan.
Mahdollisuus toiminnan kehittämisen, rakennusoikeutta on jäljellä 889,5 k-m², mikä antaa erinomaiset edellytykset laajentamiseen tai lisärakentamiseen tarpeen mukaan.
Sijainti Valkealan alueella tarjoaa hyvät kulkuyhteydet ja palvelut lähiympäristössä.
Keskeiset tiedot
Valmistumisvuosi: 2020
Kerrosala: 708 m²
Kapasiteetti: 84 lasta
Kerrosluku: 1
Lämmitys: Kaukolämpö
Tontti: Vuokratontti 6 595 m²
Asemakaava: YS I, e = 0,25
Rakennusoikeutta jäljellä: 889,5 k-m²
Ota yhteyttä ja kysy lisätietoja tästä modernista, käyttövalmiista ja kehityspotentiaalia tarjoavasta kiinteistökohteesta.
Vuodelta 2025:
Lämmitys ja sähkö 20.945 €
Vesi ja viemäri 1.919 €
Siivouspalvelut 13.461 €
Rakennusten kunnossapito 2.023€
Piha-alueiden kunnossapito 758€
Jätehuolto 1.566 €
Talohuoltajan palvelut 5.857 €
Kiinteistövero 5.250€
Kiinteistöpalvelut 6.941€
Vartiointi ja muut kiinteistö kulut 2.016 €
Tontin vuokra n. 2500 € / vuosi.
Kaupankohteena vuokraoikeus, laitostunnus 286-401-25-10-L1.
Tontti 6595 m².
Vuokranantaja Kouvolan kaupunki, sopimus on voimassa 31.12.2060 asti.
Ei kiinnityksiä.
Asemakaava YS I e=0,25.
Rakennusoikeutta jäljellä 889,5 k-m²
Rakennus:
Lasten päiväkodit
Tilamitoitus:
Paikkamäärä 84.
Henkilöstömäärä 14+1
Valmistumisvuosi 2020 (loppukatselmus 20.8.2020)
Huoneistoala 661,5 m² (huonekorttien mukaan 625,5 m²)
Kerrosala 708 m²
Tilavuus 4347 m².
Puurunko, puuverhous (elementti)
Harjakatto, huopa/bitumikermikate.
Koneellinen ilmanvaihto + LTO
Kaukolämpö
Tontilla aidatut lasten leikkipaikat, sekä grillikota.
Pysäköintialue asiakaspysäköintiiin ja henkilökunnalle osoitetut pysäköintipaikat.
Maksamattomia tontin vuokria ei ole.
Tontin vuokrasopimuksessa ehto:
Vuokrasopimus sisältää ehdon, jonka mukaan vuokralainen on velvollinen suorittamaan myös ne vuokraerät viivästyskorkoineen, jotka häntä edeltänyt vuokralainen on jättänyt maksamatta, ei kuitenkaan pidemmältä ajalta kuin 3 vuodelta.
Jaettavissa
OP Koti Uusimaa Oy LKV
Toimitilapalvelut
Arkadiankatu 23
00100 HELSINKI
Mika Nyman
Toimitilavälittäjä, Kiinteistöarvioija, LKV, YKV, AKA/KHK
Näytä puhelinnumero
0400 347 758
