Vuokrataan tuotantotilat, työtilat, autotalli/-hallitilat - Tuusula
Vanha Hämeentie 277, 04300 Tuusula #10853343
Vuokrataan pian valmistuvaa varastohallitilaa Tuusulasta!
Osoite
Vanha Hämeentie 277, 04300 Tuusula
Tilatyyppi
Tuotantotilaa
95 - 285 m2
Työtilaa
95 - 285 m2
Autotalli/-hallitilaa
95 - 285 m2
Yhteensä
95 - 285 m2
Vuokra
Alkaen 9 €/m²/kk + alv (koko tila)
Muuta
Tuusulassa vuokrataan pian valmistuvaa varastotilaa. Hyvällä sijainnilla laadukkaat tilat. Kohde valmistuu helmikuun 2026 aikana.
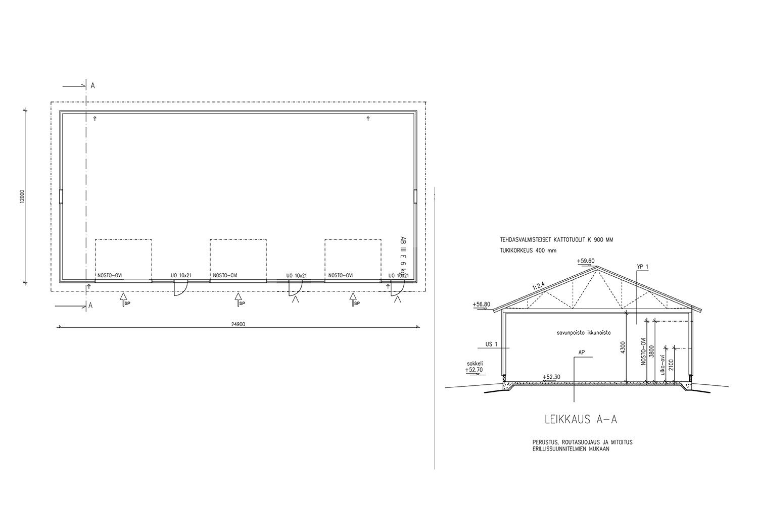
Rakennus on kokonaisuudessaan 285 m² ja se voidaan tarvittaessa jakaa noin 95 m² kokoisiin lohkoihin. Hallin vapaa korkeus on noin 4,2 metriä ja sen varusteluun kuuluu sähkökäyttöiset nosto-ovet (L3,8 m x K3,6 m) erillisillä käyntiovilla, lattiakaivot hiekan ja öljyn erotuksella sekä WC- ja vesipistevaraus jokaiselle lohkolle tarvittaessa. Lattiassa on Master Top pinnoite.
Rakennuksessa sähkölämmitys ja lämmitys toteutuu ilmalämpöpumpulla (3 kpl, eli 1kpl/lohko). Ilmalämpöpumpuissa etäohjaus mahdollisuus (Fujitsu Nordic Master ASEH14KHCBN / AOEH14KMCBN ja lämmitysteho: 5.4kw (0.8–9.0kw)). Sähkö ja vesi laskutetaan mittauksen mukaan (sähkö jokaiselle lohkolle omansa ja vesi on alamittauksen mukaan, eli laskutus toteutuneen käytön mukaan). Pihan ulkovalot ovat kiinteistön, eli pihan valaistuksesta ei koidu kustannuksia vuokralaiselle.
Tilaan voidaan tarvittaessa tehdä vuokranantajan puolesta muutoksia (erikseen sovitusti). Ilmoituksen kuvissa on pian valmistuvasta hallista ulkokuvia ja sisäkuvat ovat viereisestä, jo valmistuneesta vastaavasta rakennuksesta.
Piha asfaltoitu rakennuksen edestä. Päädyissä pihatilaa saatavissa sopimuksen mukaan.
Hyvällä sijainnilla, monien ohiajavien ajoreitillä noin 7 kilometriä Hyrylästä ja 7 kilometriä Järvenpäästä.
Uudet tilat monenlaisille yrityksille!
Kohdetiedot
Sijainti
Katuosoite: Vanha Hämeentie 277, 04300 Tuusula
Kaupunginosa: Ruskela
Ympäristö: Maaseutua
Rakennus/huoneisto
Pinta-alat: Noin 95 – 285 m²
Rakennustyyppi: Varastohallirakennus
Rakennusvuosi: 2026
Huoneistoselitelmä: Varastohalli
Kunto, varusteet ja palvelut: Uudet tilat. Nosto-ovet, lattiakaivot, voimavirtaa, vesi- ja wc-varaus, ilmalämpöpumppu
Lämmitys: Sähkölämmitys (ilmalämpöpumppu)
Pysäköinti: Pihassa ja kadulla
Vapautuu: Valmistuu 02/26
Vuokrahinta ja kulut
Kuukausivuokra: Alkaen 9 €/m²/kk + alv (koko tila)
Vesi- ja Sähkömaksu: Mittauksen/kulutuksen mukaan
Lämmitys: Sähkölämmitys vuokralaisen lukuun
Muuta: Vakuus 3 kk:n vuokraa vastaava summa, minimisopimus 12 kk, luottotietojen oltava kunnossa
Rakennus on kokonaisuudessaan 285 m² ja se voidaan tarvittaessa jakaa noin 95 m² kokoisiin lohkoihin. Hallin vapaa korkeus on noin 4,2 metriä ja sen varusteluun kuuluu sähkökäyttöiset nosto-ovet (L3,8 m x K3,6 m) erillisillä käyntiovilla, lattiakaivot hiekan ja öljyn erotuksella sekä WC- ja vesipistevaraus jokaiselle lohkolle tarvittaessa. Lattiassa on Master Top pinnoite.
Rakennuksessa sähkölämmitys ja lämmitys toteutuu ilmalämpöpumpulla (3 kpl, eli 1kpl/lohko). Ilmalämpöpumpuissa etäohjaus mahdollisuus (Fujitsu Nordic Master ASEH14KHCBN / AOEH14KMCBN ja lämmitysteho: 5.4kw (0.8–9.0kw)). Sähkö ja vesi laskutetaan mittauksen mukaan (sähkö jokaiselle lohkolle omansa ja vesi on alamittauksen mukaan, eli laskutus toteutuneen käytön mukaan). Pihan ulkovalot ovat kiinteistön, eli pihan valaistuksesta ei koidu kustannuksia vuokralaiselle.
Tilaan voidaan tarvittaessa tehdä vuokranantajan puolesta muutoksia (erikseen sovitusti). Ilmoituksen kuvissa on pian valmistuvasta hallista ulkokuvia ja sisäkuvat ovat viereisestä, jo valmistuneesta vastaavasta rakennuksesta.
Piha asfaltoitu rakennuksen edestä. Päädyissä pihatilaa saatavissa sopimuksen mukaan.
Hyvällä sijainnilla, monien ohiajavien ajoreitillä noin 7 kilometriä Hyrylästä ja 7 kilometriä Järvenpäästä.
Uudet tilat monenlaisille yrityksille!
Kohdetiedot
Sijainti
Katuosoite: Vanha Hämeentie 277, 04300 Tuusula
Kaupunginosa: Ruskela
Ympäristö: Maaseutua
Rakennus/huoneisto
Pinta-alat: Noin 95 – 285 m²
Rakennustyyppi: Varastohallirakennus
Rakennusvuosi: 2026
Huoneistoselitelmä: Varastohalli
Kunto, varusteet ja palvelut: Uudet tilat. Nosto-ovet, lattiakaivot, voimavirtaa, vesi- ja wc-varaus, ilmalämpöpumppu
Lämmitys: Sähkölämmitys (ilmalämpöpumppu)
Pysäköinti: Pihassa ja kadulla
Vapautuu: Valmistuu 02/26
Vuokrahinta ja kulut
Kuukausivuokra: Alkaen 9 €/m²/kk + alv (koko tila)
Vesi- ja Sähkömaksu: Mittauksen/kulutuksen mukaan
Lämmitys: Sähkölämmitys vuokralaisen lukuun
Muuta: Vakuus 3 kk:n vuokraa vastaava summa, minimisopimus 12 kk, luottotietojen oltava kunnossa
Vapautuu
Valmistuu 02/2026
Rakennusvuosi
2026
Katutasossa
Näkyvällä paikalla
Ota yhteyttä
Tilat.fi
KTM, LKV Antti Soivio
Näytä puhelinnumero
0400 446 553
OTM, LKV Riikka Tuominen
Näytä puhelinnumero
0400 551 790
KTM, LKV Maria-Sofia Puhakka
Näytä puhelinnumero
0400-150330
MBA Susanne Wallenius
Näytä puhelinnumero
0400-128877
Yrityksen virallinen nimi: LKV Tilat.fi Oy.
Toimitilojen välitykseen erikoistunut yritys.
Pyydä lisätietoa
