Vuokrataan tuotantotilat, varastotilat - Lahti
Ojamaankatu 5, 15230 Lahti #10853294
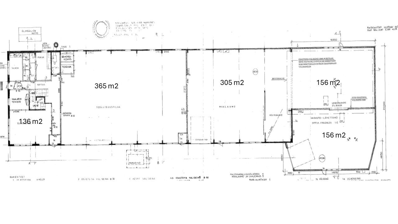
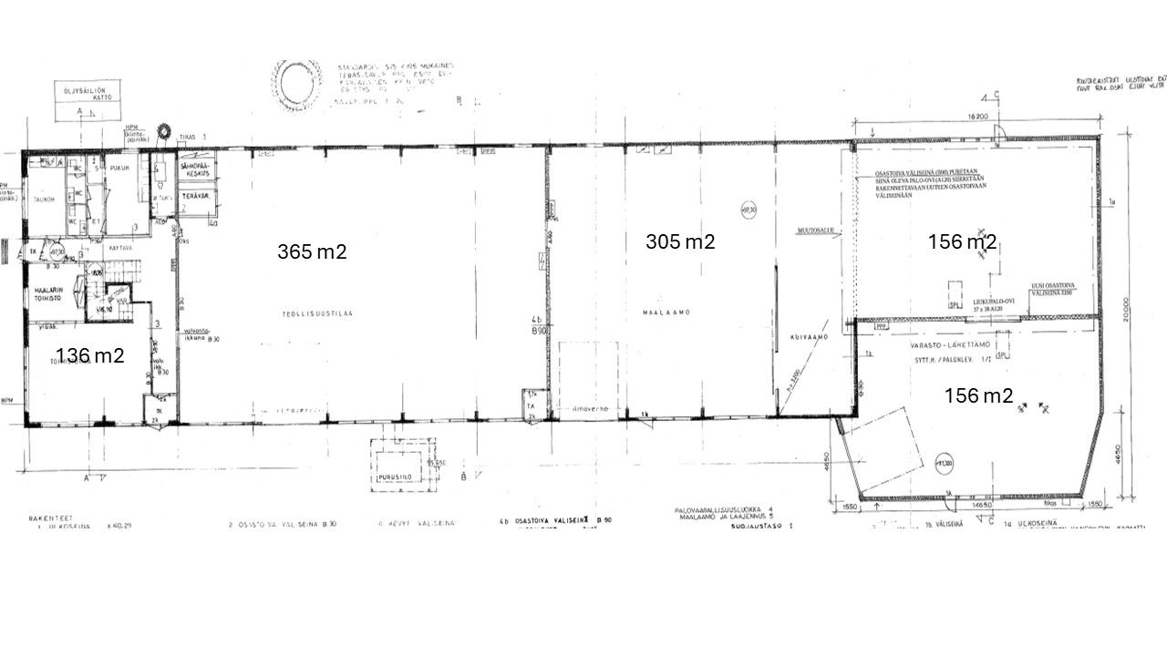
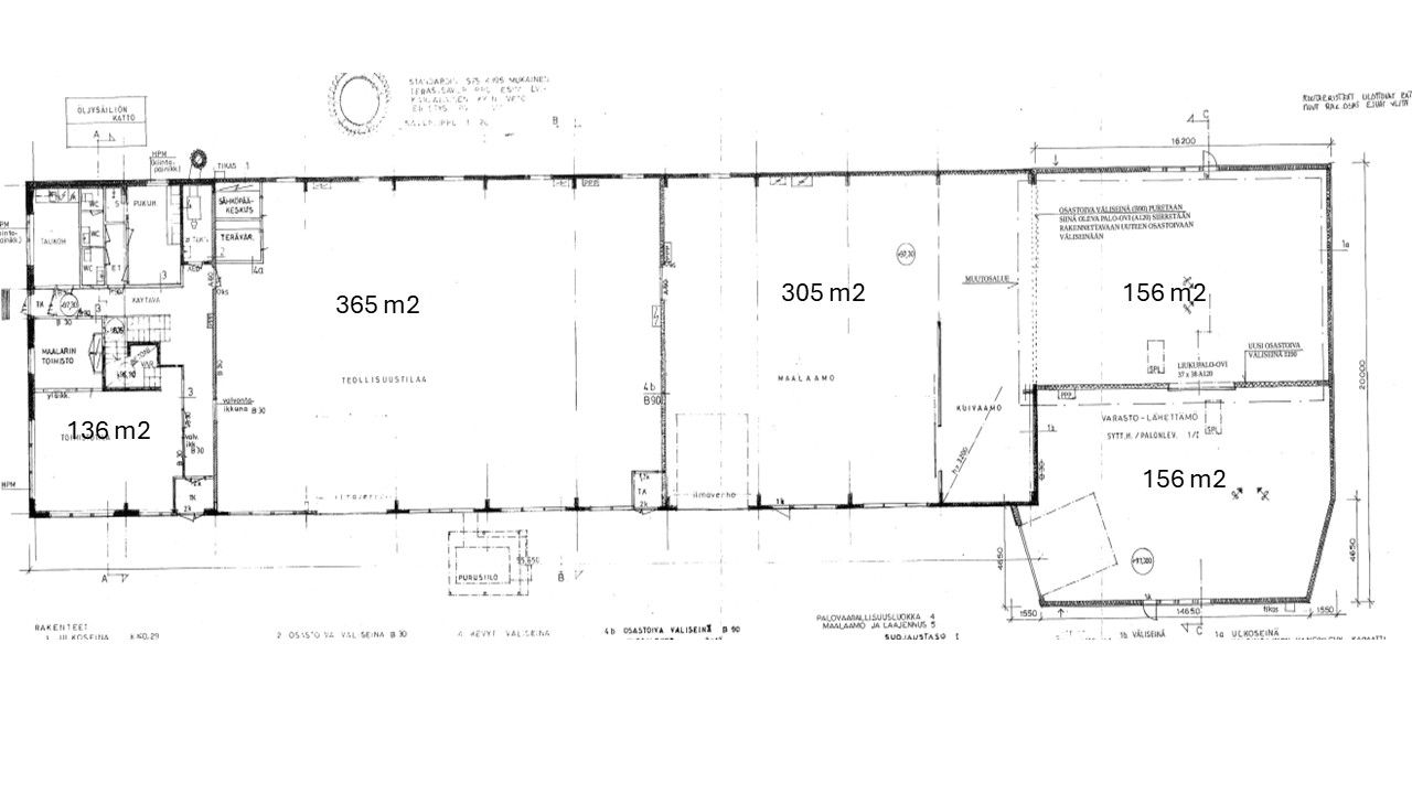
Lahden Metsämaan alueella on juuri vapautunut tuotantokäytöstä ollut kiinteistö. Kokonaistila varastojen osalta on noin 982 m2. Tila voidaan jakaa usemmman käyttäjän kesken. Päähalli 365 m2. Keskihalli 305 m2 ja talon päädyssä olevat kaksi 156m2 hallitilat, jotka voidaan vuokrata yhdessä tai erikseen.
Talon päädyssä on toimistotiloja kahdessa kerroksessa 136 m2 ja 136 m2.
Hallissa olevein nosto-ovien korkeus on 4,4 m joten sisäänajo esim pakettikautolla onnistuu hyvin. Lattiakaivot ovat olemassa
Kiinteistön pihalla on myös 106 m2 kylmä varastohalli.
Tiedustelut ja esittelyt kohteesta 0207290710/0400891057
Lisää kohteita www.premises.fiKerros: 2
CRE PREMISES
Puh. Näytä puhelinnumero 020 7290 710
Vantaankoskentie 14
01670 VANTAA
