Vuokrataan toimistotilat, tuotantotilat, varastotilat, työtilat, tontti - Raisio
Kalustekatu 5, 21280 Raisio #10853265
Vuokrattavana varasto- ja toimistotilakokonaisuus yht. n. 1.678 m²
Osoite
Kalustekatu 5, 21280 Raisio
Tilatyyppi
Toimistotilaa
352 m2
Tuotantotilaa
1326 m2
Varastotilaa
1326 m2
Työtilaa
1326 m2
Tontti
4876 m2
Yhteensä
1678 m2
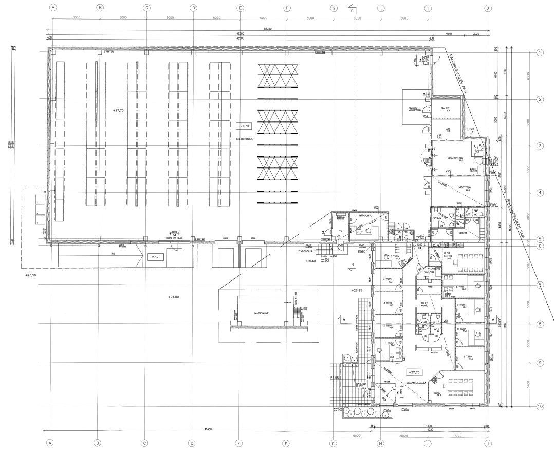
Pohjapiirros
Vuokra
Tiedustele!
Muuta
Vuokrattavana toimitilakiinteistö keskeisellä paikalla Raision Haunisten alueella. Kiinteistöllä sijaitsee n. 1.678 kem²:n betonirakenteinen toimisto- ja varastokäytössä oleva rakennus, joka on valmistunut vuonna 2011. Rakennus sopii myös tuotantoon sekä sijaintinsa puolesta vaikka liiketilaksi.
Kiinteistöä on vuosien saatossa huolellisesti pidetty ja rakennusta on hyvin huollettu. Kiinteistö on hyvässä kunnossa. Lisäksi tontilla sijaitsee autokatos 7:lle autolle.
Tilava 4.876 m²:n aidattu tontti kahdella sisäänajoportilla.
Rakennuksessa on 8 metriä korkeaa tuotanto- / varastotilaa n. 1.326 m². Käynti maantasolta lastauslaiturin kautta. Kaksi erillistä lastaustaskua. Lisäksi toimistotilaa n. 352 m². Rakennuksen kaikki tilat ovat 1-tasossa. Hallitilan ja toimistotilan välissä on sosiaalitila ja tekniset tilat sekä väestönsuoja.
Vuokraan sisältyy mm. monipuolinen trukkilavahyllyjärjestelmä, jossa n. 1.500 lavapaikkaa. Lisäksi trukit ja myös muut kuvissa näkyvät irtaimet tavarat ovat neuvoteltavissa vuokralaisen käyttöön.
Rakennuksessa on kaukolämpö ja lämmönjakelu tapahtuu hallitilaan puhaltimin ja toimistotiloihin patterein. Rakennuksessa on koneellinen ilmanvaihto lämmöntalteenotolla. Toimistotiloissa on myös jäähdytys.
Kiinteistö sijaitsee hyvällä paikalla Raisiossa, monipuolisella kauppakeskittymä alueella lähellä Kehätietä. Kohteeseen on hyvät ja nopeat liikenneyhteydet.
TÄHÄN KANNATTAA EHDOTTOMASTI TUTUSTUA!
www.kaupunki.com
Kiinteistöä on vuosien saatossa huolellisesti pidetty ja rakennusta on hyvin huollettu. Kiinteistö on hyvässä kunnossa. Lisäksi tontilla sijaitsee autokatos 7:lle autolle.
Tilava 4.876 m²:n aidattu tontti kahdella sisäänajoportilla.
Rakennuksessa on 8 metriä korkeaa tuotanto- / varastotilaa n. 1.326 m². Käynti maantasolta lastauslaiturin kautta. Kaksi erillistä lastaustaskua. Lisäksi toimistotilaa n. 352 m². Rakennuksen kaikki tilat ovat 1-tasossa. Hallitilan ja toimistotilan välissä on sosiaalitila ja tekniset tilat sekä väestönsuoja.
Vuokraan sisältyy mm. monipuolinen trukkilavahyllyjärjestelmä, jossa n. 1.500 lavapaikkaa. Lisäksi trukit ja myös muut kuvissa näkyvät irtaimet tavarat ovat neuvoteltavissa vuokralaisen käyttöön.
Rakennuksessa on kaukolämpö ja lämmönjakelu tapahtuu hallitilaan puhaltimin ja toimistotiloihin patterein. Rakennuksessa on koneellinen ilmanvaihto lämmöntalteenotolla. Toimistotiloissa on myös jäähdytys.
Kiinteistö sijaitsee hyvällä paikalla Raisiossa, monipuolisella kauppakeskittymä alueella lähellä Kehätietä. Kohteeseen on hyvät ja nopeat liikenneyhteydet.
TÄHÄN KANNATTAA EHDOTTOMASTI TUTUSTUA!
www.kaupunki.com
Vapautuu
Sopimuksen mukaan!
Katutasossa
Lastauslaituri
Ota yhteyttä
Kaupunkikiinteistöt LKV
Tiedustelut ja esittelyt puh. Näytä puhelinnumero 0440 245 600 / Ismo Koskinen
http://www.kaupunki.comPyydä lisätietoa
