Myydään muut tilat - Laukaa
Laukaantie 15, Keskusta, 41340 Laukaa #10852812
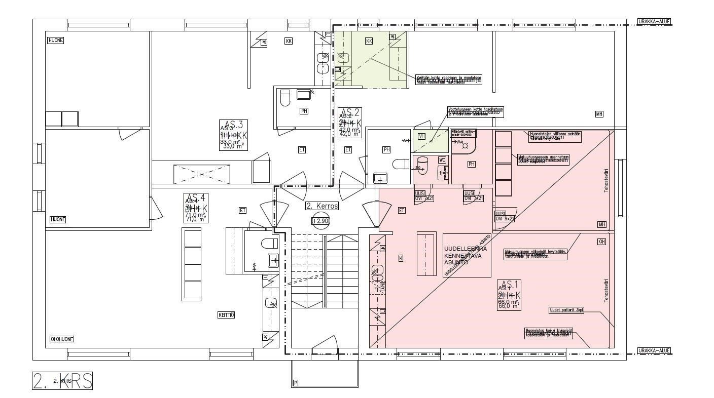
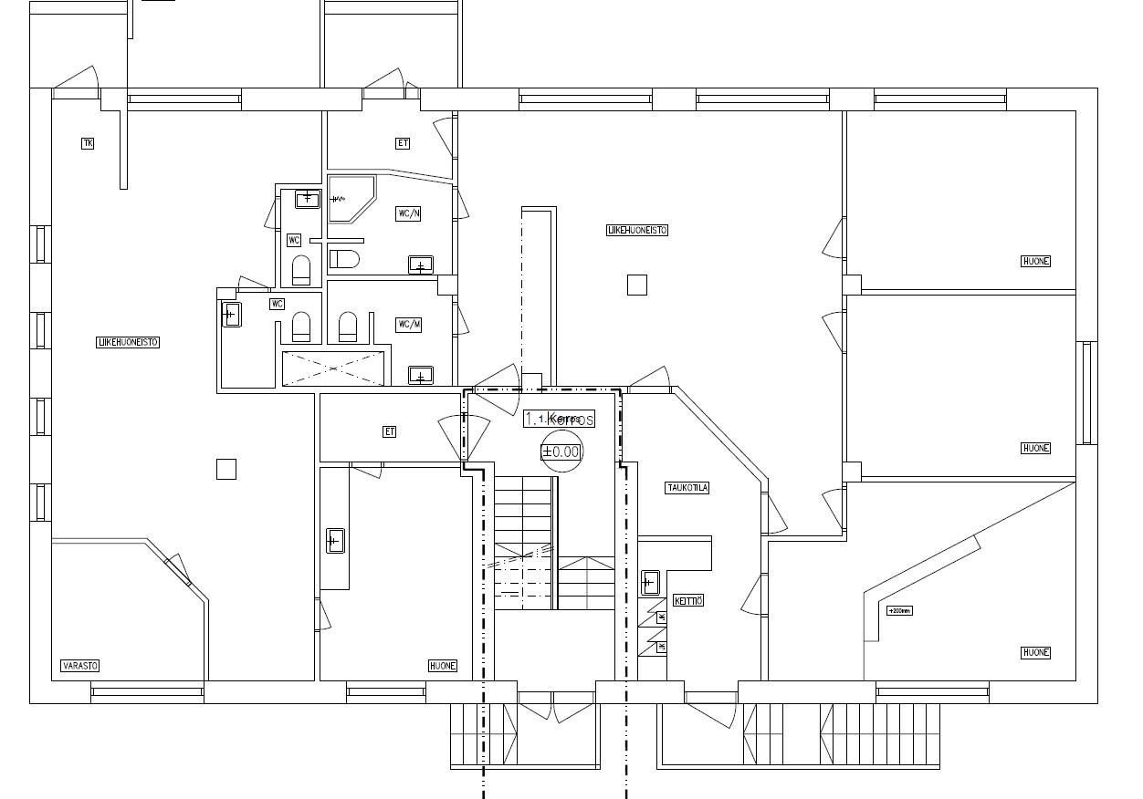
Laukaan keskustasta oma pienkerrostalo. Omalla 1200 m2 kaavatontilla v. 1959 rakennettu pienkerrostalo, jossa katutasossa kaksi liiketilaa, 2.kerroksessa neljä asuinhuoneistoa (1h,kk 32m2, 2h,kk 42m2, 2h,k 66m2 ja 3h,k 70 m2. Kellarikerroksessa saunatilat, varastotilaa ja myymälätila. Kaikki tilat vuokrattu, lukuunottamatta kellaritilaa. Rakennukseen on uusittu v. 2018 koko kattorakenne eristeineen ja kattotuoleineen, hybridilämmitys vesi-ilmalämpö, rinnalla öljy. Asunnoista 66 m2 asunto on remontoitu kattavasti, muut peruskuntoisia, mutta toimivia. Hyvätuottoinen kohde, pyydä tarkemmat tiedot. Sopii sijoittajalle erinomaisesti! Pyydä tarkemmat laskelmat.
kiinteistön vuosikulut ovat olleet n. 20.000-25.000 €/v, sisältäen sähkö, vesi, öljy, jätehuolto, kiinteistönhuolto, kiinteistövero, vakuutus, pienet korjaukset)
Tilajako: Katutasossa 2 liiketilaa; n. 145 m2 ja 90 m2. Toisessa kerroksessa neljä asuntoa: As1 2h,k 66m2, As2 2h,kk 42m2, As3 1h,k4 33m2, As4 3h,k 70 m2. Kellarikerroksessa saunatilat, varastotilat ja hyödynnettävissä oleva myymälätila. Kerrosalaksi on ilmoitettu n. 540m2 (ilman kellaria), ei tarkistusmitattu.
Tehdyt remontit: v. 2017 ilma-vesilämpöpumppu asennettu (öljy rinnalla), varaaja uusittu, kattorakenteet uusittu kokonaan v. 2018 tulipalon jäljiltä, asuntojen pintoja uusittu (laajimmin asunto 1) Osittain sähkö- vesi ja viemäriremonttia.
Muut tilat:
rakennustietokannan mukaan kerrosalaksi ilmoitettu 542m2, kokonaisalaksi 812 m2 ja tilavuudeksi 2300 m3. Ei tarkistusmitattu!
Jaettavissa
OP Koti Sisä-Suomi Oy LKV
Jyväskylä Kauppakatu
Kauppakatu 22
40100 JYVÄSKYLÄ
ma - pe 9.00-17.00
Janne Kotamäki
Myyntipäällikkö, LKV, YKV / Toimitilat
Näytä puhelinnumero
050 550 8945
