Myydään muut tilat - Laukaa
Rimpiläntie 12, Kuusa, 41370 Laukaa #10852802
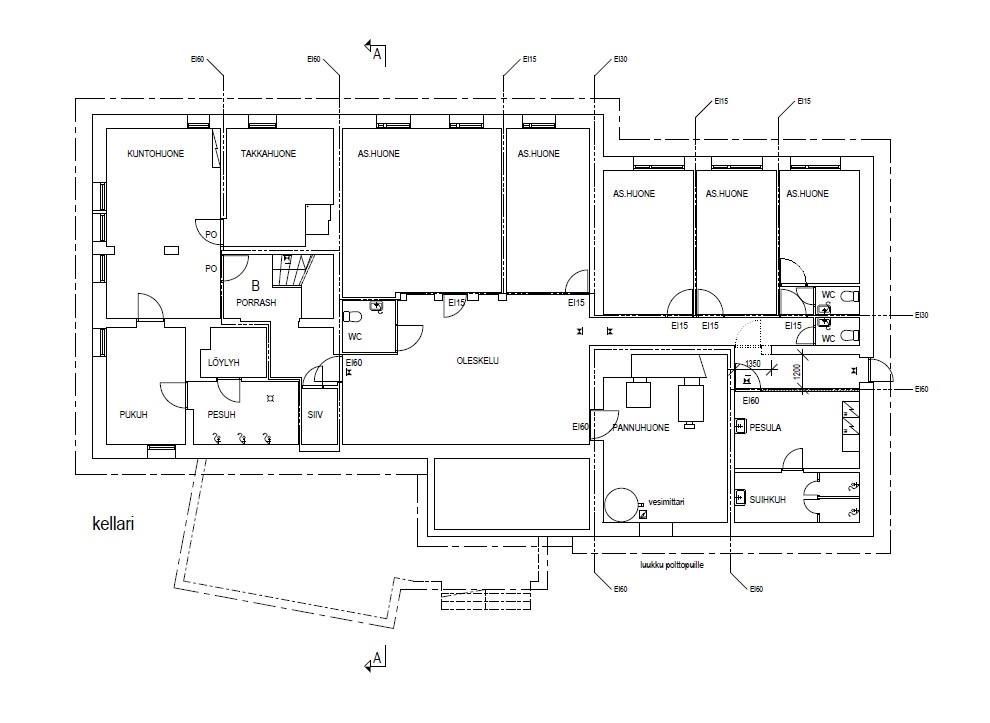
Laukaan Kuusaassa v. 1931 rakennettu entinen koulukiinteistö, joka muutettu nykyiseen käyttötarkoitukseensa hoitolarakennukseksi v. 2005. Tilat ovat kolmessa kerroksessa. Katutasossa oleskelutila, ruokailutila, tilava keittiö, aula sekä 7 asuinhuonetta, wc:t.
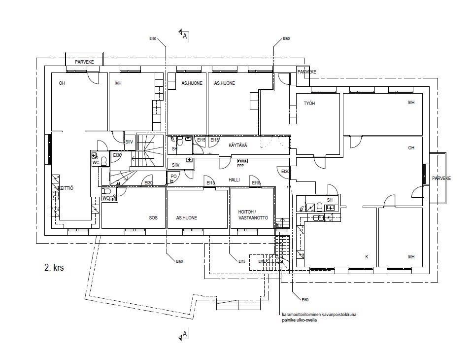
Toisessa kerroksessa erillinen 2h,k ja 4h,k sekä oheistiloja. Kellarikerroksessa 5 asuinhuonetta, oleskeluhuone, kuntohuone, saunatilat ja pesutupa. Rakennuksessa on öljylämmitys. Tiloihin tehty sprinklausjärjestelmä. Oma hehtaarin tontti, jossa hedelmäpuita, nurmikkoa. Uimaranta myös kävelymatkan päässä. Kuntokartoitus löytyy vuodelta 2018. Rakennuksessa on ollut toimintaa kuluvan vuoden kevääseen saakka. Sovi esittely, niin katsotaan paikanpäällä.
Öljyn vuosikulutus ollut v. 2024 n.17.000 litraa.
Vesi ja viemäröinti Laukaan vesihuollon kautta
Kiinteistövero n. 7100 €/v
Muut tilat:
rakennuksen rakennusalaksi on illmoitettu 838 m2, kerrosalaksi 1088 m2 ja huoneistoalaksi 553 m2.
OP Koti Sisä-Suomi Oy LKV
Jyväskylä Kauppakatu
Kauppakatu 22
40100 JYVÄSKYLÄ
ma - pe 9.00-17.00
Janne Kotamäki
Myyntipäällikkö, LKV, YKV / Toimitilat
Näytä puhelinnumero
050 550 8945
