Myydään tuotantotilat - Muurame
Ratastie 10, Teollisuuskylä, 40950 Muurame #10852792
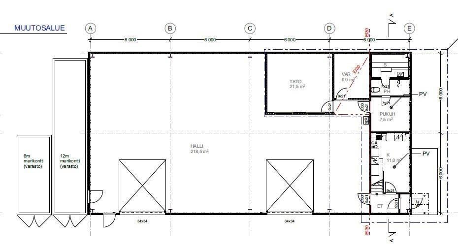
Muuramen teollisuuskylässä v. 1985 rakennettu siistikuntoinen ja ryhdikäs teollisuushalli. Rakennuksessa on yhtenäistä hallitilaa (halliin tehty myös erillinen neuvotteluhuone). Päädyssä katutasossa keittiö-/taukotila sekä saunatilat. Päätyyn, toiseen kerrokseen on tehty lisäksi kolme toimistohuonetta. Hyvä varustetaso; ilmalämpöpumppulämmitys hallitilassa, voimavirta, nosturi 0,5 tn, koneellinen iv, paineilmaverkosto. Oma asfaltoitu tontti, jossa rakennusoikeutta jäjellä runsaasti (käyttämättä n.850 kem2). Heti vapaa! Sovi esittely.
Kiinteistövero 460 €/v, lämpöarvio n. 3000-4000 €/v. vakuutus n. 600 €.
Muut tilat:
säilytyskontti n. 25 m2, johon käynti hallista
OP Koti Sisä-Suomi Oy LKV
Jyväskylä Kauppakatu
Kauppakatu 22
40100 JYVÄSKYLÄ
ma - pe 9.00-17.00
Janne Kotamäki
Myyntipäällikkö, LKV, YKV / Toimitilat
Näytä puhelinnumero
050 550 8945
