Myydään tuotantotilat - Äänekoski
Teollisuuskatu 42, Laajalahti, 44150 Äänekoski #10852778
Tarkistettuun hintaan Teollisuuskadulla myytävänä toimiva ja monipuolinen kiinteistökokonaisuus. Ns.Teletalon nimellä tunnettu toimitilarakennus (v.1978) on pinta-alaltaan n. 1200 m2 ja käsittää varastohallin 115m2 (kork. palkkiin n.4m), keskivarasto n. 150 m2 ja päädyssä n.150+300 m2 hallitilat (vk n. 4,9m). Rakennuksen toisessa päädyssä on lisäksi toimisto- ja sostilat sekä kellarikerroksessa varasto- ja tekniset tilat. Rakennusta remontoitu kattavasti v. 2011-2012, mm. uusi ilmanvaihto (2kpl) ja laajennus lämpimäksi tilaksi. Rakennuksessa on 3 nosto-ovea.
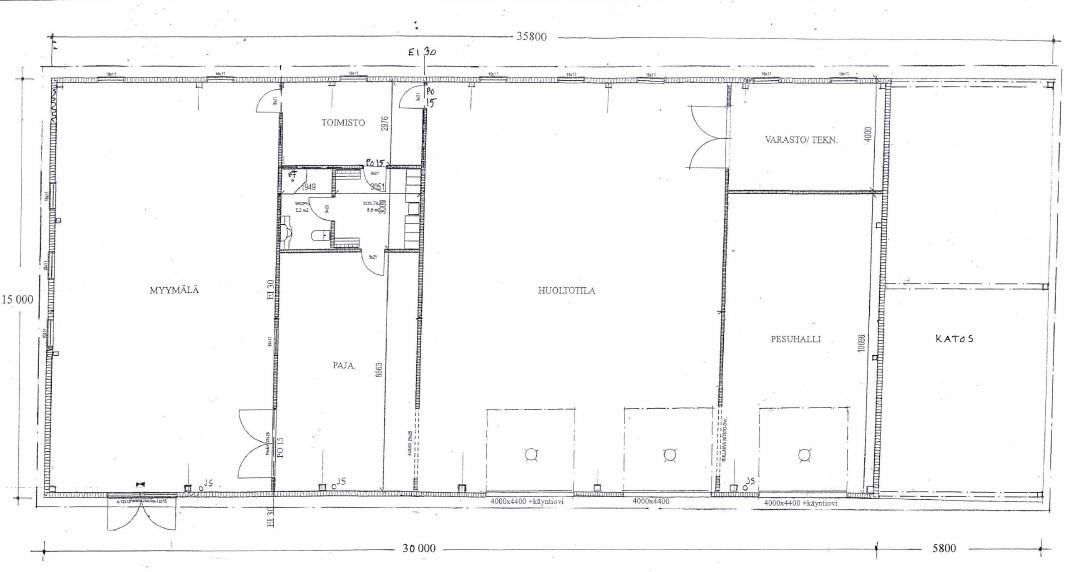
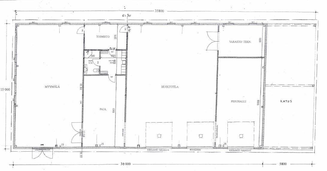
Uudempi myymälä/korjaamorakennus on valmistunut v. 2017 ja on huoneistoalaltaan n.450 m2 ja rakennussalaltaan 537 m2. Myymälän osuus oheistiloineen on n. 200 m2. Rakennuksessa on edustava, korkea myymälätila suurine ikkunoineen, 2 toimistoa, minikeittiön ja 2 wc:tä. Toisessa kerroksessa on lisäksi toimisto ja varastotilaa. Myymälän takaosassa on korjaamotilat ja pesuhalli (vapaa kork. 6m). Varustuksena 4 öljynerotuskaivoa, nosto-ovet, ledivalaistus, nosturi 500 kg, paineilma. Lämmitys rakennuksissa on öljyllä (pannuhuone ja säiliö teletalossa).
Piha-alue on pääosin asfaltoitu ja aidattu. Pihapiirissä on myös metallinen n. 240 m2 varastokatos.
myymälä-korjaamorakennus (valm. 2017) 513/625 m2 sekä v. 1978 valmistunut toimitilarakennus n.1200 m2.
OP Koti Sisä-Suomi Oy LKV
Jyväskylä Kauppakatu
Kauppakatu 22
40100 JYVÄSKYLÄ
ma - pe 9.00-17.00
Janne Kotamäki
Myyntipäällikkö, LKV, YKV / Toimitilat
Näytä puhelinnumero
050 550 8945
