Vuokrataan toimistotilat - Jyväskylä
Gummeruksenkatu 7 hsto 79, Keskusta, 40100 Jyväskylä #10852771
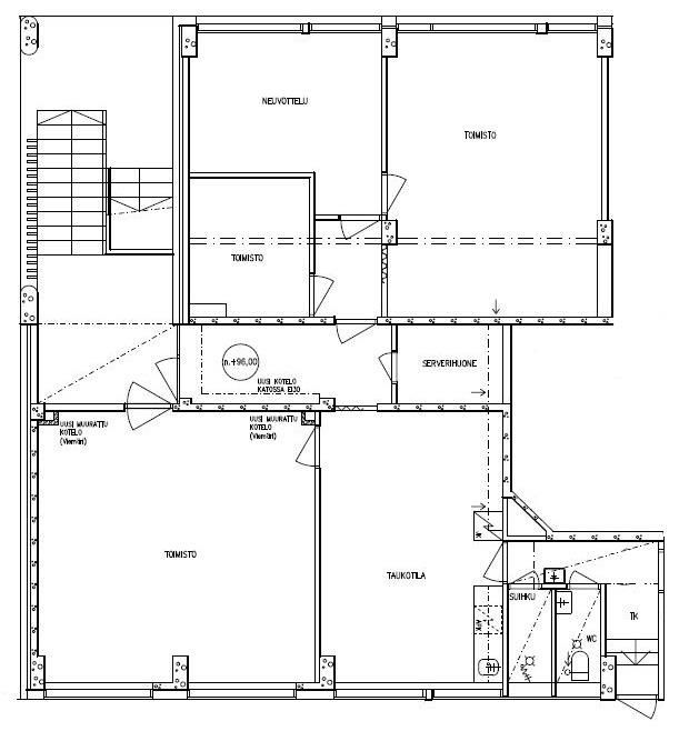
Kirkkopuiston laidalla siistikuntoinen toimistotila. Tilavat huoneet, erillinen suihkutila ja wc. Läpitalon. Sijainti katutasosta puolikerrosta alas. Oma käynti, jossa lukollinen portti. Helppo löytää paikalle: täsmälleen kirkon pääsisäänkäyntiä vastapäätä. Heti vapaa! Sovi esittely
Osoite
Gummeruksenkatu 7 hsto 79, 40100 Jyväskylä
Tilatyyppi
Toimistotilaa
124 m2
Vuokra
1450.00
Muuta
Muut maksut:
vesi ja sähkö. Tila on alviton
vesi ja sähkö. Tila on alviton
Vapautuu
1.10.2024 mennessä
Ota yhteyttä
OP Koti Sisä-Suomi Oy LKV
Jyväskylä Kauppakatu
Kauppakatu 22
40100 JYVÄSKYLÄ
ma - pe 9.00-17.00
Janne Kotamäki
Myyntipäällikkö, LKV, YKV / Toimitilat
Näytä puhelinnumero
050 550 8945
Pyydä lisätietoa
