Vuokrataan varastotilat - Jyväskylä
Huletie 8, Palokangas, 40320 Jyväskylä #10852758
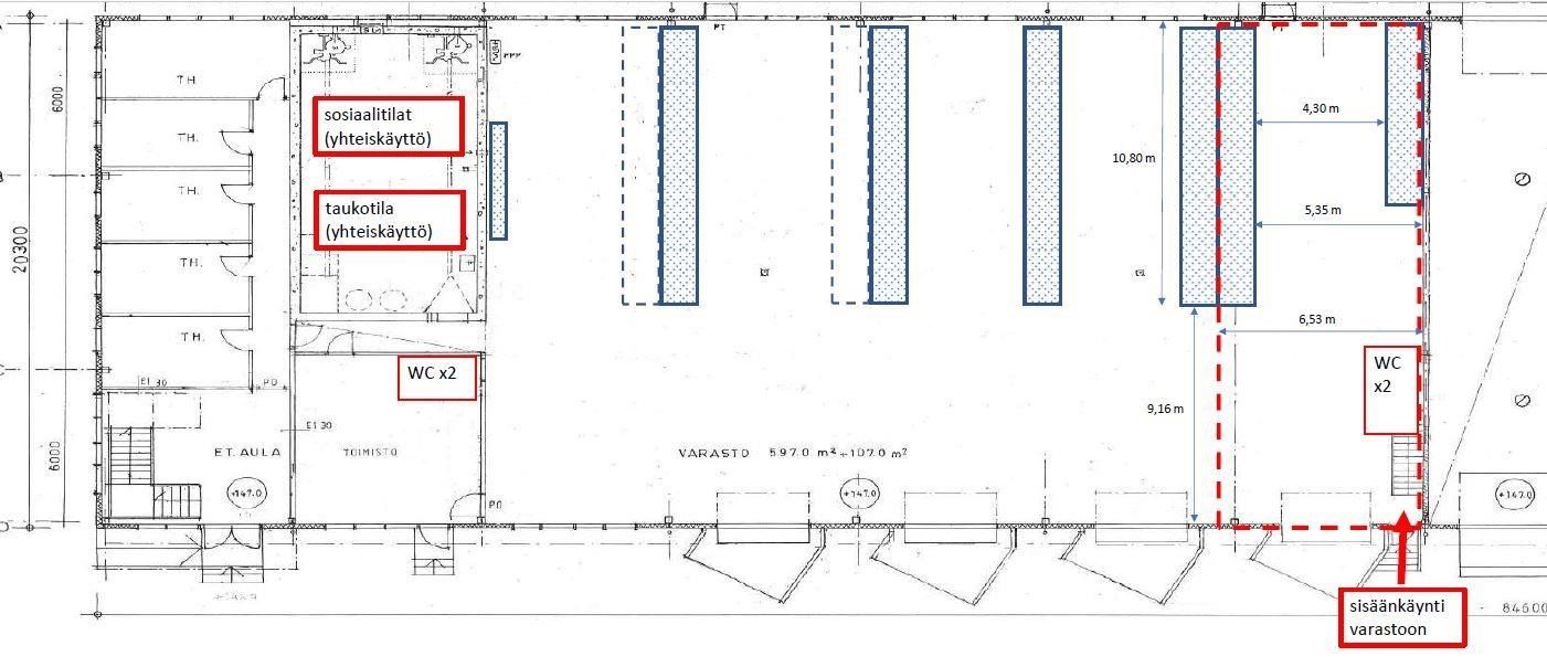
Nyt vuokrattavissa v. 2022 valmistuneesta rakennuksesta nykyaikaista viimeisen päälle terminaalitilaa. Pinta-alahaarukka n.120-240 m2. Eurolavapaikkoja 52+36 kpl, lastaussilta, erill käyntiovi. Mahdollista ostaa terminaali-/varastointipalvelut. Sommitellaan tästä hyvä ja toimiva kokonaisuus yritystoiminnallesi.
Osoite
Huletie 8, 40320 Jyväskylä
Tilatyyppi
Varastotilaa
130 m2
Muuta
Muut maksut:
mahdolliset terminaali lisäpalvelut
Muut tilat:
yhteistiloina wc- ja sos.tilat
mahdolliset terminaali lisäpalvelut
Muut tilat:
yhteistiloina wc- ja sos.tilat
Vapautuu
Sopimuksen mukaan
Ota yhteyttä
OP Koti Sisä-Suomi Oy LKV
Jyväskylä Kauppakatu
Kauppakatu 22
40100 JYVÄSKYLÄ
ma - pe 9.00-17.00
Janne Kotamäki
Myyntipäällikkö, LKV, YKV / Toimitilat
Näytä puhelinnumero
050 550 8945
Pyydä lisätietoa
