Vuokrataan toimistotilat, liiketilat, työtilat, muut tilat - Helsinki
Klaarantie 3, Lauttasaari, 00200 Helsinki #10852002
Vuokrataan katutason liike-/toimistotilaa Helsingin Lauttasaaressa!
Osoite
Klaarantie 3, 00200 Helsinki
Tilatyyppi
Toimistotilaa
104 - 225 m2
Liiketilaa
104 - 225 m2
Työtilaa
104 - 225 m2
Muuta tilaa
104 - 225 m2
Yhteensä
104 - 225 m2
Tilajako
Jaettavissa
Toimintavalmis päiväkotitila. Kaksi vierekkäistä tilaa 104 m² + 121 m².
Virtuaaliesittely
Vuokra
Alkaen 21 €/m²/kk, alv-vapaa tila
Vuokraan sisältyy lämpö
Muuta
Lauttasaaressa on vuokrattavana kaksi liike-/toimistotilaa asuinkerrostalon katutasosta. Tiloissa on pitkään ollut päiväkotitoimintaa ja tilat saavat olla luvan mukaisessa käytössä 19.02.2028 saakka. Huoneisto sopii myös muuhun käyttöön.
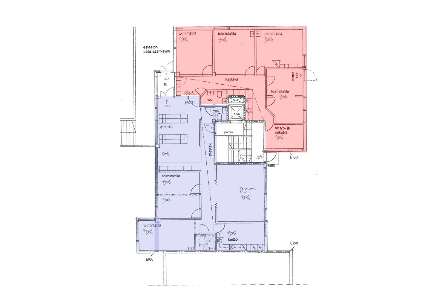
Tilojen pinta-alat ovat 104 m² ja 121 m² ja niillä on yhteinen tuulikaappi (jaettu sisäänkäynti). Pohjakuvassa pienemmän tilan pinta-ala merkitty sinisellä ja isomman punaisella. Tilojen välissä on lisäksi palo-ovi, joka mahdollistaa tilojen välisen kulun sisäpuolelta. Huoneistoissa on pääosin erikokoisia huoneita, vähän avointa tilaa, siistit keittiötilat, siivouskomero, 2 wc ja pesutiloja sekä yksi esteetön inva WC. Molemmissa tiloissa on isot ikkunat Klaarantien suuntaan, ja ikkunoissa on moottoroidut puolikasettimarkiisit suojaamaan auringonvalolta.
Huoneistolle ei kuulu lasten leikkipaikkaa tai piha-aluetta, mutta lähellä on leikkipuisto, jota aiemmat vuokralaiset (ryhmäperhepäiväkoti) ovat käyttäneet lapsille ulkoiluun.
Mikäli uusi vuokralainen haluaa vuokrata tilan päiväkotitoimintaan, on tiloille myönnetty rakennuslupa käyttötarkoituksen muuttamiselle päiväkodiksi enintään 20 lapselle kolmen vuoden määräajaksi 19.02.2028 saakka. Tämän jälkeen luvalle voi hakea jatkoaikaa.
Lämmitys sisältyy vuokraan (kaukolämpö). Vuokralainen tekee oman sähkösopimuksen ja vesi veloitetaan mittauksen mukaan. Tilat ovat mahdollista vuokrata erikseen, mutta vuokrataan ensisijaisesti yhdessä.
Kadunvarressa (tilan edessä) on parkkipaikkoja ja tilan eteen on helppo tulla ja jättää lapsi hoitopaikkaan.
Erinomaisella sijainnilla ja julkisen liikenteen ytimessä. Lauttasaaren metroasemalle on vain 10 minuutin kävelymatka ja autoileville on nopeat yhteydet sekä Helsingin keskustaan että Länsiväylälle.
Moneen soveltuva tila odottaa uutta vuokralaista – tule tutustumaan!
Kohdetiedot
Sijainti
Katuosoite: Klaarantie 3, 00200 Helsinki
Kaupunginosa: Lauttasaari
Ympäristö: Asuinalue
Rakennus/huoneisto
Pinta-alat: Noin 104 m² + 121 m²
Kiinteistötyyppi: Asuinkerrostalo
Rakennusvuosi: 1988
Huoneistoselitelmä: Liiketila
Kerros: Katutaso
Kunto, varusteet ja palvelut: Avointa tilaa, keittiö, useampi huone ja WC, inva WC, vesipisteitä ja siivouskomero
Lämmitys: Kaukolämpö
Vapautuu: Alkaen 1.6.26 ja viimeistään 1.7.26
Vuokrahinta ja kulut
Kuukausivuokra: Alkaen 21 €/m²/kk, alv-vapaa tila
Vesimaksu: Mittauksen mukaan/taloyhtiön taksojen mukaan
Sähkömaksu: Vuokralainen tekee oman sähkösopimuksen
Lämmitys: Sisältyy vuokraan
Jätehuolto ja auraus: Sisältyy vuokraan
Muut ehdot: Minimisopimuskausi 12 kk, vakuus 3 kk vuokraa vastaava summa ja luottotietojen on oltava kunnossa
Tilojen pinta-alat ovat 104 m² ja 121 m² ja niillä on yhteinen tuulikaappi (jaettu sisäänkäynti). Pohjakuvassa pienemmän tilan pinta-ala merkitty sinisellä ja isomman punaisella. Tilojen välissä on lisäksi palo-ovi, joka mahdollistaa tilojen välisen kulun sisäpuolelta. Huoneistoissa on pääosin erikokoisia huoneita, vähän avointa tilaa, siistit keittiötilat, siivouskomero, 2 wc ja pesutiloja sekä yksi esteetön inva WC. Molemmissa tiloissa on isot ikkunat Klaarantien suuntaan, ja ikkunoissa on moottoroidut puolikasettimarkiisit suojaamaan auringonvalolta.
Huoneistolle ei kuulu lasten leikkipaikkaa tai piha-aluetta, mutta lähellä on leikkipuisto, jota aiemmat vuokralaiset (ryhmäperhepäiväkoti) ovat käyttäneet lapsille ulkoiluun.
Mikäli uusi vuokralainen haluaa vuokrata tilan päiväkotitoimintaan, on tiloille myönnetty rakennuslupa käyttötarkoituksen muuttamiselle päiväkodiksi enintään 20 lapselle kolmen vuoden määräajaksi 19.02.2028 saakka. Tämän jälkeen luvalle voi hakea jatkoaikaa.
Lämmitys sisältyy vuokraan (kaukolämpö). Vuokralainen tekee oman sähkösopimuksen ja vesi veloitetaan mittauksen mukaan. Tilat ovat mahdollista vuokrata erikseen, mutta vuokrataan ensisijaisesti yhdessä.
Kadunvarressa (tilan edessä) on parkkipaikkoja ja tilan eteen on helppo tulla ja jättää lapsi hoitopaikkaan.
Erinomaisella sijainnilla ja julkisen liikenteen ytimessä. Lauttasaaren metroasemalle on vain 10 minuutin kävelymatka ja autoileville on nopeat yhteydet sekä Helsingin keskustaan että Länsiväylälle.
Moneen soveltuva tila odottaa uutta vuokralaista – tule tutustumaan!
Kohdetiedot
Sijainti
Katuosoite: Klaarantie 3, 00200 Helsinki
Kaupunginosa: Lauttasaari
Ympäristö: Asuinalue
Rakennus/huoneisto
Pinta-alat: Noin 104 m² + 121 m²
Kiinteistötyyppi: Asuinkerrostalo
Rakennusvuosi: 1988
Huoneistoselitelmä: Liiketila
Kerros: Katutaso
Kunto, varusteet ja palvelut: Avointa tilaa, keittiö, useampi huone ja WC, inva WC, vesipisteitä ja siivouskomero
Lämmitys: Kaukolämpö
Vapautuu: Alkaen 1.6.26 ja viimeistään 1.7.26
Vuokrahinta ja kulut
Kuukausivuokra: Alkaen 21 €/m²/kk, alv-vapaa tila
Vesimaksu: Mittauksen mukaan/taloyhtiön taksojen mukaan
Sähkömaksu: Vuokralainen tekee oman sähkösopimuksen
Lämmitys: Sisältyy vuokraan
Jätehuolto ja auraus: Sisältyy vuokraan
Muut ehdot: Minimisopimuskausi 12 kk, vakuus 3 kk vuokraa vastaava summa ja luottotietojen on oltava kunnossa
Vapautuu
01.06.2026
Rakennusvuosi
1988
Katutasossa
Näkyvällä paikalla
Jaettavissa
Ota yhteyttä
Tilat.fi
KTM, LKV Antti Soivio
Näytä puhelinnumero
0400 446 553
OTM, LKV Riikka Tuominen
Näytä puhelinnumero
0400 551 790
KTM, LKV Maria-Sofia Puhakka
Näytä puhelinnumero
0400-150330
MBA, LKV Susanne Wallenius
Näytä puhelinnumero
0400-128877
Yrityksen virallinen nimi: LKV Tilat.fi Oy.
Toimitilojen välitykseen erikoistunut yritys.
Pyydä lisätietoa
