Vuokrataan toimistotilat, liiketilat, tuotantotilat, varastotilat - Lempäälä
Kaipionsivu 3, Marjamäki, 37550 Lempäälä #10851905
Monitoimitila Ideaparkin vieressä
Osoite
Kaipionsivu 3, 37550 Lempäälä
Tilatyyppi
Toimistotilaa
183 m2
Liiketilaa
183 m2
Tuotantotilaa
183 m2
Varastotilaa
183 m2
Yhteensä
183 m2
Kiinteistö
Vuokrataan Lempäälän Ideaparkia vastapäätä monitoimitila, joka soveltuu varastointiin, tuotantoon, liiketilaksi sekä toimistoksi.
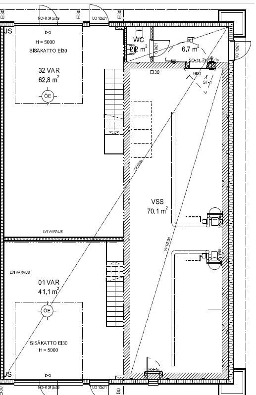
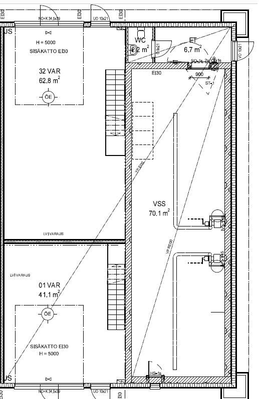
Kyseessä on liiketilakäyttöön tarkoitettu varasto/toimisto/työtila. Tila on yhtenäinen kokonaisuus, joka koostuu kahdesta tilasta. Liiketila 1 on kooltaan 77,1 m2 ja liiketila 32 on kooltaan 117,1 m2. Kohteen muutostöitä tehdessä seinien eristeitä lisättiin. Ensimmäisen kerrokset on toteutettu esittelyyn, varastointiin ja työskentelyyn soveltuvaksi tilaksi (yhteensä 107 m2) ja yläkerrasta löytyy toimistokäyttöön soveltuvaa tilaa mikä on jaettu kahdeksi huoneeksi. Tiloista löytyy myös oma minikeittiö, suihku ja kaksi wc-tilaa.
Tiloihin kulku on mahdollista kiinteistön molemmista päädyistä. Kaksi isoa nosto-ovea. Vapaa korkeus noin 5 metriä. Akustiikkalevyt katossa.
Talliosakkeet ovat laadukkaita, moderneja tiloja moninaiseen yritystilakäyttöön. Tilan varustetaso:
Internet-yhteys
Koneellinen poistoilmanvaihto
Moottoroitu nosto-ovi erillisellä käyntiovella
Öljyn- ja hiekanerotuskaivo
Tallentava kameravalvonta
Valaistu, asfaltoitu ja kameravalvottu piha
Roiskevesitiivis epoksi-pinnoitettu lattia
WC-tilat
Suihku
Voimavirta
Koodilukko
Neljä parkkipaikkaa varattu tälle tilalle. Lempäälän Talliosake 2 sijaitsee Helsinki-Tampere -moottoritien liittymän vieressä. Kyseessä on kiinteistöosakeyhtiö, joka tarjoaa mm. täyden isännöinnin ja kiinteistöhuollon. Kiinteistö on omatonttinen.
Tila ei sovellu autokorjaamoksi eikä autopesulaksi.
Tilan osalta on hakeuduttu alv-velvolliseksi.
Tila on heti vapaa.
Kyseessä on liiketilakäyttöön tarkoitettu varasto/toimisto/työtila. Tila on yhtenäinen kokonaisuus, joka koostuu kahdesta tilasta. Liiketila 1 on kooltaan 77,1 m2 ja liiketila 32 on kooltaan 117,1 m2. Kohteen muutostöitä tehdessä seinien eristeitä lisättiin. Ensimmäisen kerrokset on toteutettu esittelyyn, varastointiin ja työskentelyyn soveltuvaksi tilaksi (yhteensä 107 m2) ja yläkerrasta löytyy toimistokäyttöön soveltuvaa tilaa mikä on jaettu kahdeksi huoneeksi. Tiloista löytyy myös oma minikeittiö, suihku ja kaksi wc-tilaa.
Tiloihin kulku on mahdollista kiinteistön molemmista päädyistä. Kaksi isoa nosto-ovea. Vapaa korkeus noin 5 metriä. Akustiikkalevyt katossa.
Talliosakkeet ovat laadukkaita, moderneja tiloja moninaiseen yritystilakäyttöön. Tilan varustetaso:
Internet-yhteys
Koneellinen poistoilmanvaihto
Moottoroitu nosto-ovi erillisellä käyntiovella
Öljyn- ja hiekanerotuskaivo
Tallentava kameravalvonta
Valaistu, asfaltoitu ja kameravalvottu piha
Roiskevesitiivis epoksi-pinnoitettu lattia
WC-tilat
Suihku
Voimavirta
Koodilukko
Neljä parkkipaikkaa varattu tälle tilalle. Lempäälän Talliosake 2 sijaitsee Helsinki-Tampere -moottoritien liittymän vieressä. Kyseessä on kiinteistöosakeyhtiö, joka tarjoaa mm. täyden isännöinnin ja kiinteistöhuollon. Kiinteistö on omatonttinen.
Tila ei sovellu autokorjaamoksi eikä autopesulaksi.
Tilan osalta on hakeuduttu alv-velvolliseksi.
Tila on heti vapaa.
Vapautuu
Kysy
Kerros
1.-2.
Ota yhteyttä
Logistila Oy
Kauppakatu 14, 33210 TAMPERE
Ulla Lyytinen
Näytä puhelinnumero
040 776 0538
Pyydä lisätietoa
