Vuokrataan toimistotilat - Oulu
Saaristonkatu 22, Keskusta, 90100 Oulu #10851845
Osoite
Saaristonkatu 22, 90100 Oulu
Tilatyyppi
Toimistotilaa
244 m2
Muuta
Vuokrattavana Saaristonkatu 22, 90100 Oulu sijaitsevasta, Sammakkotalona tunnetusta rakennuksesta toimistotilaa.
Sijainti ihan ydinkeskustan tuntumassa.
Rakennus on peruskorjattu ja toimistohuoneistot ovat nykyaikaisia. Piha-alue on asfaltoitu ja vieressä on myös hyvin asiakaspysäköintipaikkoja.
Vuokrattavat tilat sijaitsevat kellarikerroksessa ja siihen on oma sisäänkäynti piha-alueelta.
Rakennuksessa on koneellinen tulo- ja poistoilmanvaihto.
Lattiapinnat ovat tekstiilipalalaattaa, toimistohuoneet ovat lasiseinillä. Sisääntulon yhteydessä aulatila, neukkaritila sekä 2 kpl wc-tiloja.
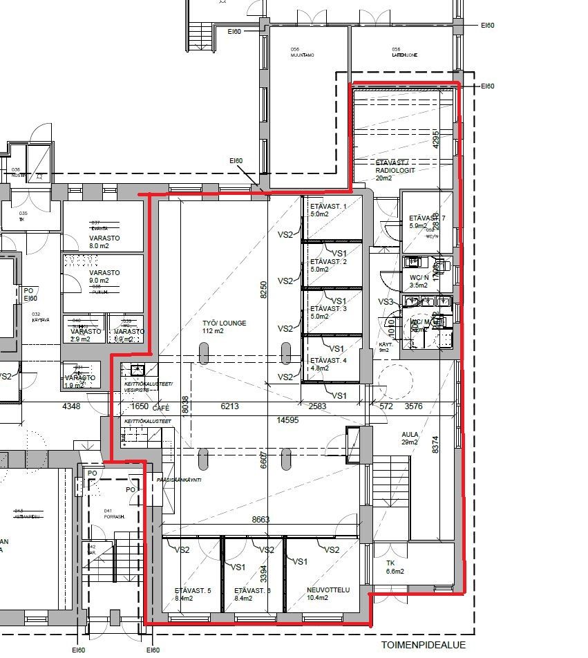
Lisäksi 4 kpl ääntäeristäviä ns. soittohuoneita, 2 kpl työhuonetta ja 1 neukkaritila. Keittiö ja taukotila työ/ loungetilassa.
Vuokrattava pinta-ala on n. 244 jyvm2. (pohjakuvassa punaisella rajattu alue)
Pääomavuokra 20,00 eur/ m2 + alv
Hoitovuokra 5,00 eur/ m2/ kk + alv.
Hoitovuokra tarkistetaan vuosittain. Hoitovuokraan sisältyy lämmitys, käyttösähkö, vesi- ja jätevesimaksu, jätemaksu sekä porraskäytävien siivous.
Vuokra sidotaan indeksiin, minimikorotus 1x vuodessa 3%.
Vuokralainen vastaa vuokra-aikana omien tilojensa siivouksesta, valaisinhuollosta sekä kulunvalvonnastaan.
Vuokrattavana autopaikkoja (pistoke) 65,00e/kpl/kk + alv.
Pyydä esittely kohteeseen!
Sijainti ihan ydinkeskustan tuntumassa.
Rakennus on peruskorjattu ja toimistohuoneistot ovat nykyaikaisia. Piha-alue on asfaltoitu ja vieressä on myös hyvin asiakaspysäköintipaikkoja.
Vuokrattavat tilat sijaitsevat kellarikerroksessa ja siihen on oma sisäänkäynti piha-alueelta.
Rakennuksessa on koneellinen tulo- ja poistoilmanvaihto.
Lattiapinnat ovat tekstiilipalalaattaa, toimistohuoneet ovat lasiseinillä. Sisääntulon yhteydessä aulatila, neukkaritila sekä 2 kpl wc-tiloja.
Lisäksi 4 kpl ääntäeristäviä ns. soittohuoneita, 2 kpl työhuonetta ja 1 neukkaritila. Keittiö ja taukotila työ/ loungetilassa.
Vuokrattava pinta-ala on n. 244 jyvm2. (pohjakuvassa punaisella rajattu alue)
Pääomavuokra 20,00 eur/ m2 + alv
Hoitovuokra 5,00 eur/ m2/ kk + alv.
Hoitovuokra tarkistetaan vuosittain. Hoitovuokraan sisältyy lämmitys, käyttösähkö, vesi- ja jätevesimaksu, jätemaksu sekä porraskäytävien siivous.
Vuokra sidotaan indeksiin, minimikorotus 1x vuodessa 3%.
Vuokralainen vastaa vuokra-aikana omien tilojensa siivouksesta, valaisinhuollosta sekä kulunvalvonnastaan.
Vuokrattavana autopaikkoja (pistoke) 65,00e/kpl/kk + alv.
Pyydä esittely kohteeseen!
Vapautuu
Kysy
Kerros
2
Ota yhteyttä
Catella Property Oy
Kirkkokatu 6, 5. krs, 90100 OULU
Näytä puhelinnumero
010 5220 100
Pekka Laurila-Harju
Näytä puhelinnumero
010 5220 603
Pyydä lisätietoa
