Myydään tuotantotilat - Valkeakoski
Kaapelitie 23-25, 37600 Valkeakoski #10851803
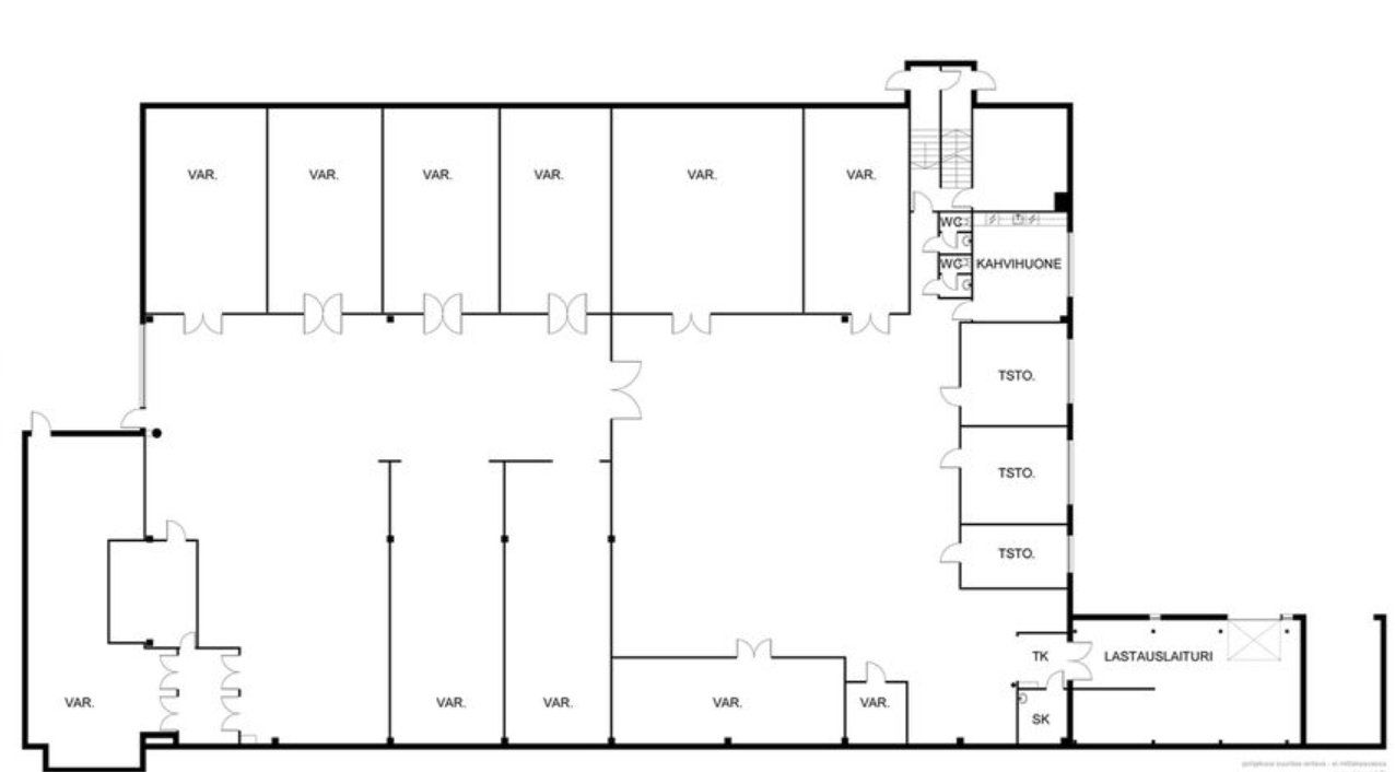
Myydään / Vuokrataan toimiva ja muunneltava betonielementtihalli omalla 6 755 m² tontilla. Kiinteistöä ympäröi asfaltoitu, ympäri ajettava piha-alue, joka soveltuu erinomaisesti raskaallekin kalustolle.
Hallissa on lastauslaituri sekä sisäänajomahdollisuus 3,2 x 3,1 metrin nosto-oven kautta.
Hallin vapaakorkeus on tällä hetkellä noin 3,6 metriä valokiskoihin, ja korkeutta on mahdollista korottaa tarpeen mukaan. Kaikki hallin väliseinät ovat kevytrakenteisia ja ne on mahdollista purkaa, mikä tekee tilasta helposti muunneltavan erilaisiin käyttötarkoituksiin.
Kiinteistössä on öljylämmitys, jota ei ole käytetty viime vuosina. Nykyinen vuokralainen on lämmittänyt hallia omalla lämmitysratkaisullaan. Tontilla on runsaasti käyttämätöntä rakennusoikeutta, mikä tarjoaa erinomaiset mahdollisuudet laajentamiseen tai lisärakentamiseen.
Kohde on heti vapaa.
Vuokraan lisätään alv + kulut.
Ota yhteyttä ja kysy lisää!
www.blanctoimitilat.fi
Masa Hakala
masa.hakala@blanckiinteisto.com
+358 40 964 2482
www.blanctoimitilat.fi
