Vuokrataan toimistotilat, liiketilat, varastotilat, työtilat - Helsinki
Mannerheimintie 88, Taka-Töölö, 00250 Helsinki #10851689
Vuokrataan liike-/vastaanotto tai työ-/toimistotila Helsingissä!
Osoite
Mannerheimintie 88, 00250 Helsinki
Tilatyyppi
Toimistotilaa
72 m2
Liiketilaa
72 m2
Varastotilaa
72 m2
Työtilaa
72 m2
Yhteensä
72 m2
Virtuaaliesittely
Vuokra
Alkaen 1299 €/kk, alv-vapaa
Vuokraan sisältyy lämpö
Muuta
Helsingin keskustassa on vuokrattavana asuinkerrostalon katutasossa sijaitseva erinomaisessa kunnossa oleva liikehuoneisto, joka käy loistavasti esim. myymäläksi, toimistoksi tai vastaanotto/liiketilaksi.
Tarjoushintaan nyt 1299 €/kk! Kun vuokraat tilan toukokuun aikana 2026 saat neljä ensimmäistä kuukautta alennettuun hintaan 1299 €/kk + vesimaksu! Sen jälkeen normaali vuokrahinta (norm.1’699 €/kk, alv-vapaa tila)
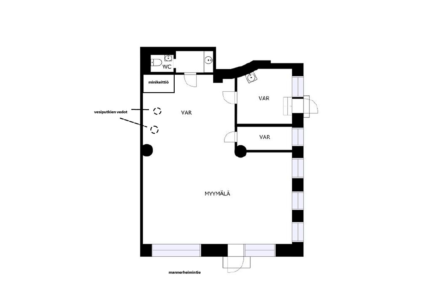
Huoneistoon kaksi sisäänkäyntiä ja tila on pinta-alaltaan 72-neliöinen. Sisätilassa normaali huonekorkeus. Tilan etuosa on pääosin avointa tilaa ja siinä on laattalattia, jossa lattialämmitys. Takaosassa on kaksi pienempää huonetta (sopii hyvin esim. varastoiksi), minikeittiö, pesupisteet (kampaamon käytössä olleet) ja wc. Pääsisäänkäynnin molemmin puolin on isot näyteikkunat suoraan Mannerheimintielle päin, taatusti hyvä näkyvyys ja kaupallinen sijainti nyt sekä tulevaisuudessa!
Yhtiö ei ole hakeutunut arvonlisäverovelvolliseksi huoneiston osalta, joten tila soveltuu myös arvonlisäverottomaan käyttöön (huoneiston vuokrahintaan ei lisätä arvonlisäveroa eikä sen käyttö vaadi arvonlisäverovelvollista käyttäjää/käyttöä).
Vuokralainen vastaa sähkömaksusta (oma sopimus) ja vesimaksuista. Lämmitys sisältyy vuokraan.
Tilaan ei sisälly omaa parkkipaikkaa. Lähistöllä maksullisia pysäköintipaikkoja (Töölön kisahallin paikoitusalue) ja tilan edessä raitiovaunupysäkki.
Toimitila on Helsingin keskustan ja helppojen julkisten kulkuyhteyksien tuntumassa!
Kohdetiedot
Sijainti
Katuosoite: Mannerheimintie 88, 00250 Helsinki
Kaupunginosa: Taka-Töölö
Ympäristö: Keskusta-alue
Rakennus/huoneisto
Pinta-ala: Noin 72 m²
Kiinteistötyyppi: Asuinkerrostalo
Tilatyyppi: Työ-, toimisto- tai liiketila
Kunto, varusteet ja palvelut: Hyvä kunto, avotilaa, kaksi huonetta, minikeittiö, pesupisteet, wc, keskustan palvelut lähellä
Rakennusvuosi: 1938
Energiatodistus: Kiinteistöllä on voimassa oleva energiatodistus
Lämmitys: Kaukolämpö
Vapautuu: Heti vapaa
Vuokrahinta ja kulut
Kuukausivuokra: Alkaen 1’299 €/kk, kolme ensimmäistä kuukautta (tarjous voimassa toukokuun ajan 2026) Norm. hinta 1’699 €/kk, alv-vapaa tila
Vesimaksu: 30 €/kk
Sähkömaksu: Vuokralainen tekee oman sähkösopimuksen
Lämmitys: Sisältyy vuokraan
Jätehuolto: Sisältyy vuokraan (normaali määrä sekajätettä)
Muuta: 12 kk minimisopimuskausi, vakuus 2kk vuokraa vastaava summa ja luottotiedot oltava kunnossa
Tarjoushintaan nyt 1299 €/kk! Kun vuokraat tilan toukokuun aikana 2026 saat neljä ensimmäistä kuukautta alennettuun hintaan 1299 €/kk + vesimaksu! Sen jälkeen normaali vuokrahinta (norm.1’699 €/kk, alv-vapaa tila)
Huoneistoon kaksi sisäänkäyntiä ja tila on pinta-alaltaan 72-neliöinen. Sisätilassa normaali huonekorkeus. Tilan etuosa on pääosin avointa tilaa ja siinä on laattalattia, jossa lattialämmitys. Takaosassa on kaksi pienempää huonetta (sopii hyvin esim. varastoiksi), minikeittiö, pesupisteet (kampaamon käytössä olleet) ja wc. Pääsisäänkäynnin molemmin puolin on isot näyteikkunat suoraan Mannerheimintielle päin, taatusti hyvä näkyvyys ja kaupallinen sijainti nyt sekä tulevaisuudessa!
Yhtiö ei ole hakeutunut arvonlisäverovelvolliseksi huoneiston osalta, joten tila soveltuu myös arvonlisäverottomaan käyttöön (huoneiston vuokrahintaan ei lisätä arvonlisäveroa eikä sen käyttö vaadi arvonlisäverovelvollista käyttäjää/käyttöä).
Vuokralainen vastaa sähkömaksusta (oma sopimus) ja vesimaksuista. Lämmitys sisältyy vuokraan.
Tilaan ei sisälly omaa parkkipaikkaa. Lähistöllä maksullisia pysäköintipaikkoja (Töölön kisahallin paikoitusalue) ja tilan edessä raitiovaunupysäkki.
Toimitila on Helsingin keskustan ja helppojen julkisten kulkuyhteyksien tuntumassa!
Kohdetiedot
Sijainti
Katuosoite: Mannerheimintie 88, 00250 Helsinki
Kaupunginosa: Taka-Töölö
Ympäristö: Keskusta-alue
Rakennus/huoneisto
Pinta-ala: Noin 72 m²
Kiinteistötyyppi: Asuinkerrostalo
Tilatyyppi: Työ-, toimisto- tai liiketila
Kunto, varusteet ja palvelut: Hyvä kunto, avotilaa, kaksi huonetta, minikeittiö, pesupisteet, wc, keskustan palvelut lähellä
Rakennusvuosi: 1938
Energiatodistus: Kiinteistöllä on voimassa oleva energiatodistus
Lämmitys: Kaukolämpö
Vapautuu: Heti vapaa
Vuokrahinta ja kulut
Kuukausivuokra: Alkaen 1’299 €/kk, kolme ensimmäistä kuukautta (tarjous voimassa toukokuun ajan 2026) Norm. hinta 1’699 €/kk, alv-vapaa tila
Vesimaksu: 30 €/kk
Sähkömaksu: Vuokralainen tekee oman sähkösopimuksen
Lämmitys: Sisältyy vuokraan
Jätehuolto: Sisältyy vuokraan (normaali määrä sekajätettä)
Muuta: 12 kk minimisopimuskausi, vakuus 2kk vuokraa vastaava summa ja luottotiedot oltava kunnossa
Vapautuu
Heti
Rakennusvuosi
1968
Näkyvällä paikalla
Ota yhteyttä
Tilat.fi
KTM, LKV Antti Soivio
Näytä puhelinnumero
0400 446 553
OTM, LKV Riikka Tuominen
Näytä puhelinnumero
0400 551 790
KTM, LKV Maria-Sofia Puhakka
Näytä puhelinnumero
0400-150330
MBA, LKV Susanne Wallenius
Näytä puhelinnumero
0400-128877
LKV Tilat.fi Oy on toimitilojen välitykseen erikoistunut yritys.
http://www.tilat.fiPyydä lisätietoa
