Vuokrataan liiketilat - Helsinki
Keskuskatu 1 A, 00100 Helsinki #10851433
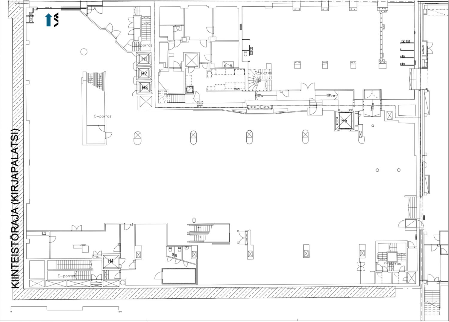
Vuokrattavana pohjakerroksen avara liiketila Helsingin ydinkeskustassa. Tilan pinta-ala on 1129 m², ja se on heti vapaa. Tila on muokattavissa tarpeiden mukaan ja tarjoaa valoisan ja modernin ympäristön liiketoiminnalle. Kiinteistön sijainti on loistava, sillä se sijaitsee keskeisellä paikalla vilkkaalla Keskuskadulla. Ydinkeskustan palvelut, ravintolat ja liikenneyhteydet löytyvät aivan vierestä. Tila tarjoaa hyvät puitteet liiketoiminnalle, joka haluaa näkyä ja olla lähellä asiakkaita.
Liiketilojen vuokraus ja tiedustelut: C&W Retail Services, puh. 0108368400, retail.fi@cushwake.com.
Kirjatalo. Alvar Aallon 60-luvulla suunnittelema rakennus sijaitsee Helsingin kaupallisen keskustan ytimessä Keskuskadun ja Pohjoisesplanadin kulmassa, Stockmannin tavarataloa vastapäätä. Rakennuksessa on kolmikerroksinen, alun perin kirjakaupaksi suunniteltu osa, jonka kahdessa ensimmäisessä kerroksessa toimii edelleen Akateeminen Kirjakauppa sekä Starbucks kahvila ja kolmannessa kerroksessa Co-working tila. Osalle tätä kolmikerroksista rakennusta on toteutettu kuusikerroksinen toimisto-osa, jossa toimistotiloja on kolmannesta kerroksesta ylöspäin. Toimisto-osaan kulku tapahtuu kävelykaduksi toteutetun Keskuskadun sisäänkäyntiaulan kautta, josta toimistokerrokseen pääsee kolmella asiakashissillä.
