Vuokrataan liiketilat - Helsinki
Keskuskatu 1 A, 00100 Helsinki #10851432
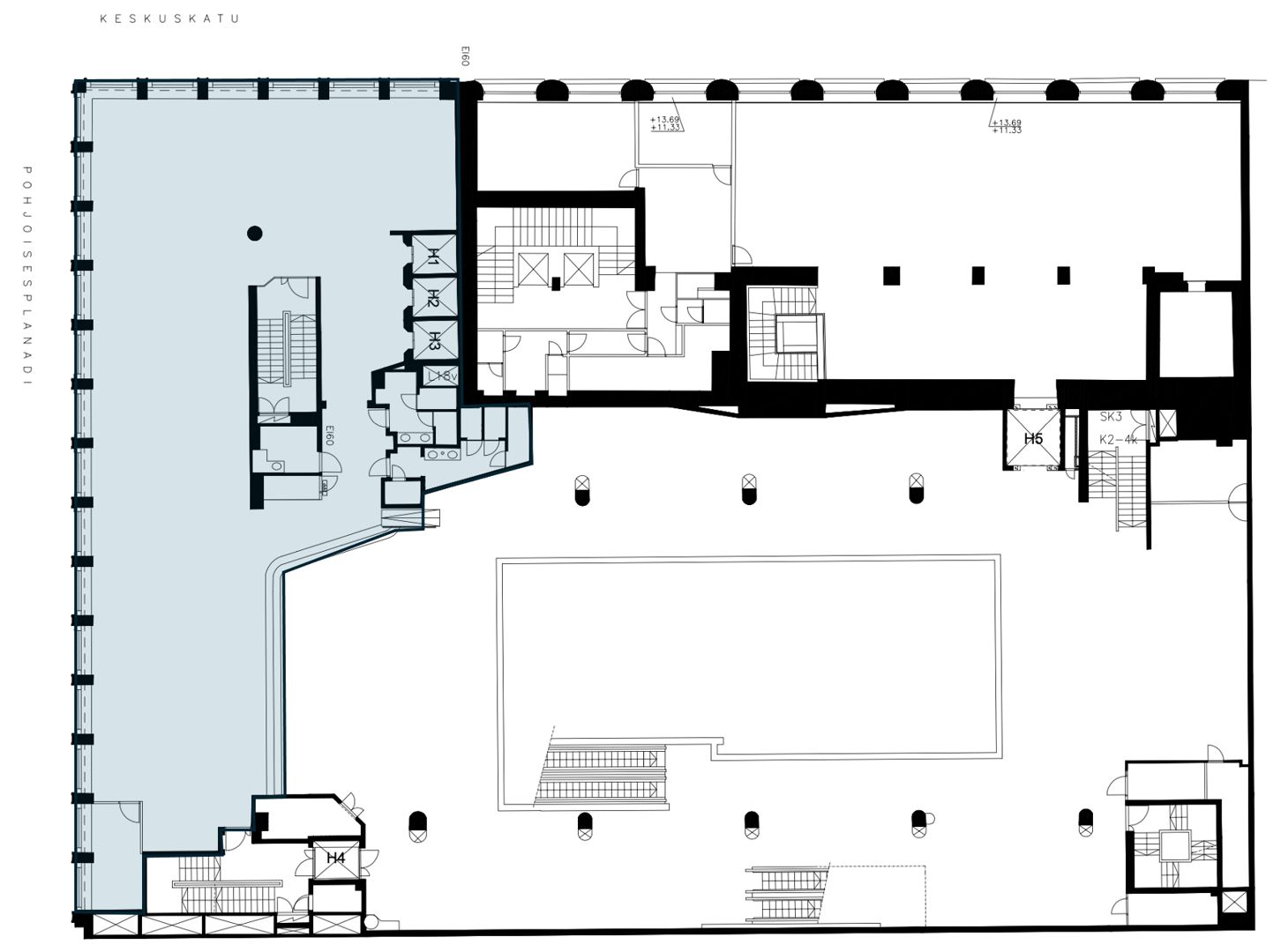
Vuokrattavana 2. kerroksen avara liiketila Helsingin ydinkeskustassa. Tilan pinta-ala on 460 m², ja se soveltuu myös toimistokäyttöön. Tila on muokattavissa tarpeiden mukaan ja tarjoaa valoisan ja modernin ympäristön liiketoiminnalle. Kiinteistön sijainti on loistava, sillä se sijaitsee keskeisellä paikalla vilkkaalla Keskuskadulla, Stockmannia vastapäätä. Ydinkeskustan palvelut ja ravintolat vieressä.
Liiketilojen vuokraus ja tiedustelut: C&W Retail Services, puh. 010 836 8418, retail.fi@cushwake.com.
Kirjatalo. Alvar Aallon 60-luvulla suunnittelema rakennus sijaitsee Helsingin kaupallisen keskustan ytimessä Keskuskadun ja Pohjoisesplanadin kulmassa, Stockmannin tavarataloa vastapäätä. Rakennuksessa on kolmikerroksinen, alun perin kirjakaupaksi suunniteltu osa, jonka kahdessa ensimmäisessä kerroksessa toimii edelleen Akateeminen Kirjakauppa sekä Starbucks kahvila ja kolmannessa kerroksessa Co-working tila. Osalle tätä kolmikerroksista rakennusta on toteutettu kuusikerroksinen toimisto-osa, jossa toimistotiloja on kolmannesta kerroksesta ylöspäin. Toimisto-osaan kulku tapahtuu kävelykaduksi toteutetun Keskuskadun sisäänkäyntiaulan kautta, josta toimistokerrokseen pääsee kolmella asiakashissillä.
