Vuokrataan varastotilat - Helsinki
Laippatie 1, 00880 Helsinki #10851379
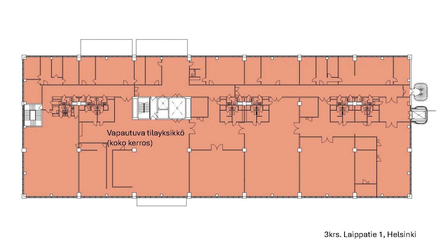
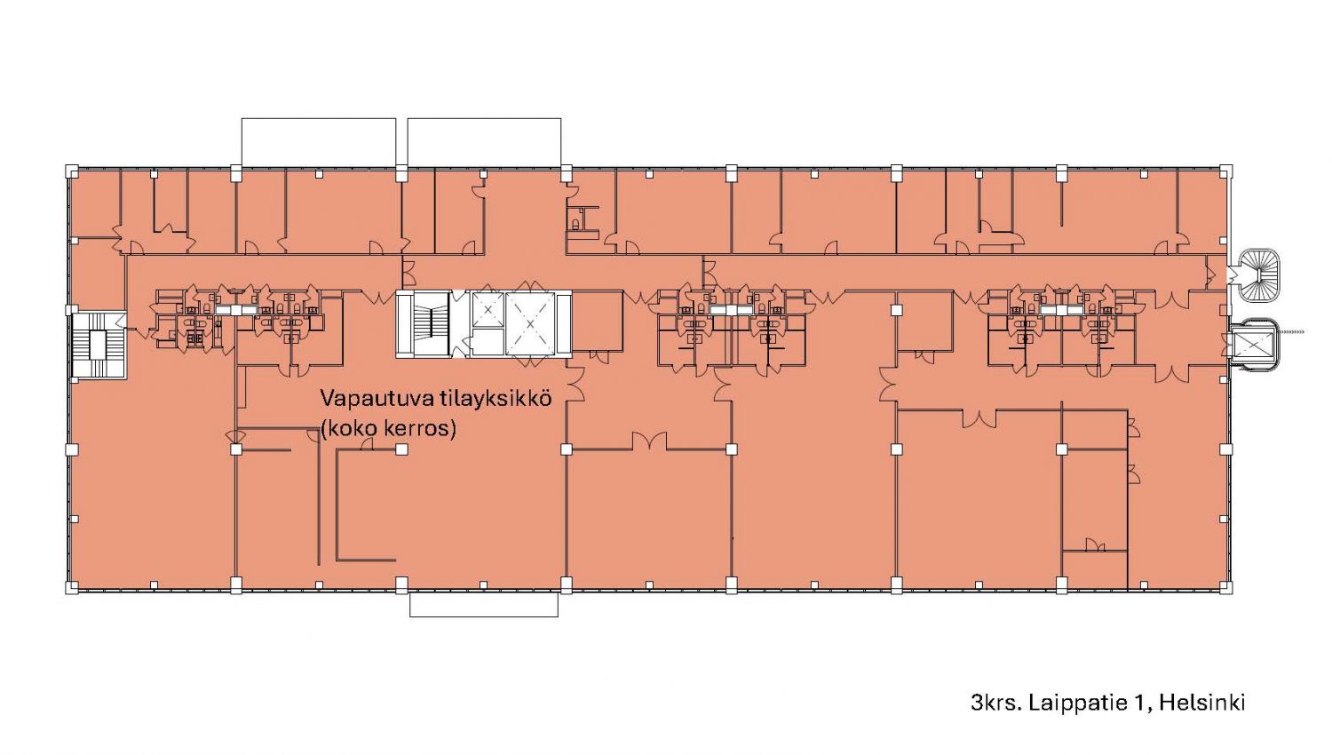
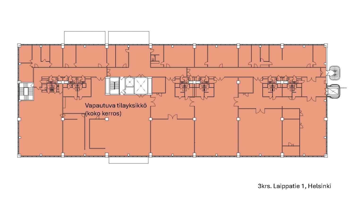
Roihupellon alueella on mahdollisuudet suureen. Vuokrattavana koko kolmannen kerroksen kattava toimisto-/varasto-/kevyttuotantotila, joka voidaan jakaa pienempiin osiin. Tavaroiden kuljetusta helpottaa kerrokseen tuleva takapihan tavarahissi, jonka edustalla on nostolaituri.
Kohteella on hyvä sijainti Itäväylän varrella. Bussit kulkevat kadun kulmalta, ja Siilitien metroasemalle on vain noin 1 km. Kiinteistössä on kiinalainen ravintola, jossa on arkisin tarjolla lounas. Lähellä Viikki ja Itäkeskus kaikkine palveluineen.
Teollisuus- ja varastokiinteistö Helsingin Roihupellossa. Valmistunut 1986. 76 kpl autopaikkaa pihassa henkilökunnalle. Asiakkaille pysäköinti kadunvarrella. Hyvä sijainti Itäväylän varrella. Bussit kulkevat lähellä. Siilitien metroasema n. 1 km päässä. Lähellä Herttoniemi, Viikki ja Itäkeskus kaikkine palveluineen. Kiinteistössä kiinalainen ravintola. Yhteiskäyttöistä aulatilaa 82,5 m², joka jyviteään suhteessa jaetun tilan neliöihin.
