Vuokrataan toimistotilat - Espoo
Hatsinanpuisto 8 AB-talot, 02600 Espoo #10851367
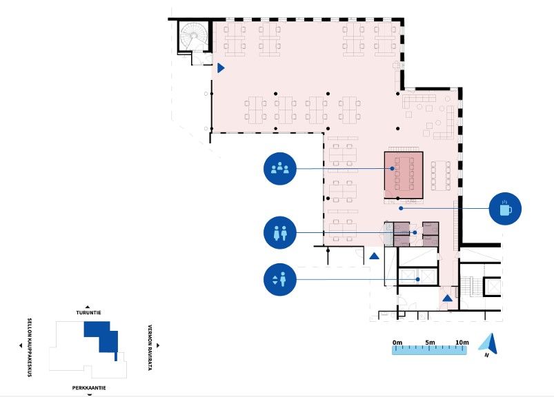
Upea moderni 8. kerroksen toimistotila, josta avautuvat kahdeksannen kerroksen avarat maisemat moneen suuntaan. Tilassa on kaikki nykyaikaiset fasiliteetit, joita onnistunut toimistoelämä vaatii mm. useita neuvottelu- ja työtiloja, omat wc-tilat ja useampi taukokeittiö. Tilan keskellä avautuu valokuilu, joka tuo ilmavutta ja valoa myös toimiston sisempiin osiin.
Modernissa täyden palvelun kiinteistössä on mm. oma ravintola, aulapalvelu ja pysäköintihalli. Leppävaaran palvelut ja kulkuyhteydet tekevät toimistoarjesta helppoa.
OOPS sijaitsee yhdellä pääkaupunkiseudun vetovoimaisimmista työpaikka-alueista Espoon Leppävaaran kupeessa. 2021 loppuvuodesta valmistuneet talot sijaitsevat Leppävaaran Hatsinanpuistossa Monikonpuron ja toimivien liikenneyhteyksien äärellä Kehä I:n, pääjunaradan ja Raide-Jokerin risteyksessä. Rakennuksella on BREEAM In-Use ympäristösertifikaatti arvosanalla Excellent.
