Vuokrataan toimistotilat - Helsinki
Valimotie 13 A, 00380 Helsinki #10851235
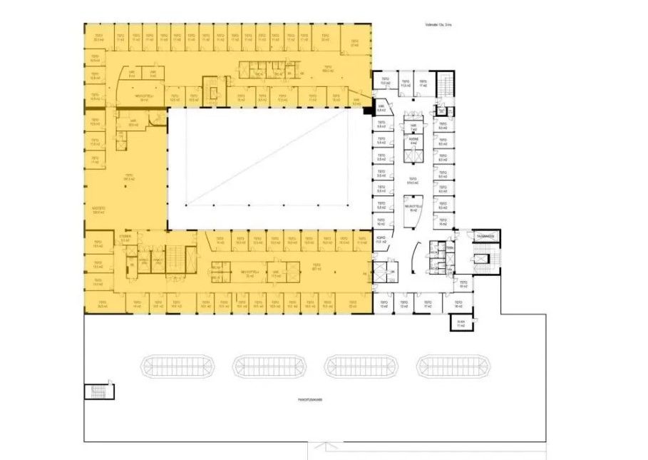
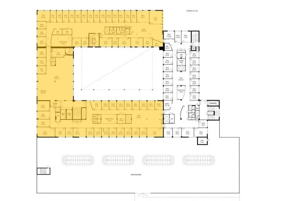
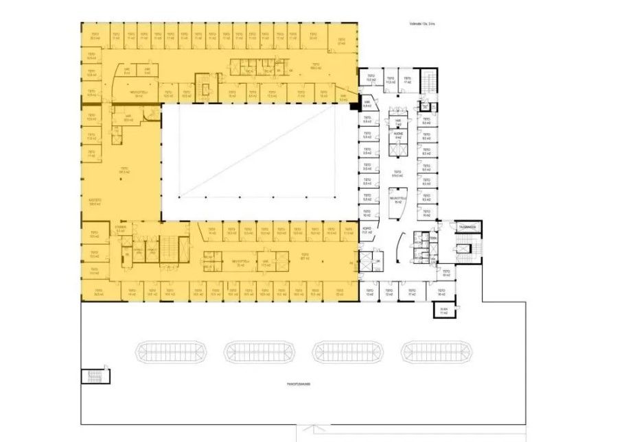
Kolmannen kerroksen toimistokokonaisuus pilkottavaksi tai kokonaan omaan käyttöön! Tila koostuu 699,5 m2 kokonaisuudesta, 627 m2 tilasta sekä nämä tilat yhdistävästä 297,5 m2 tilasta, jotka yhdessä muodostavat U-mallisen tilakokonaisuuden. Tällöin kokonaisneliöitä tulee 1624 m2.
Suunnittelemme mahdolliset remontit ja muutostyöt aina asiakaskohtaisesti vuokraneuvottelujen yhteydessä.
Kiinteistö tarjoaa monipuoliset palvelut kuten: aulapalvelut, vuokrattavat neuvottelutilat, saunan ja kuntosalin. Kiinteistössä kaksi tavarahissiä ja lastausalue autohallissa. Kiinteistössä toimii suosittu lounasravintola Factory, johon tullaan kauempaakin lounaalle.
Hyväkuntoista, uutta vastaavaa toimisto-/tuotantotilaa perusteellisesti saneeratussa Valimo Centerissä. Kaksi rakennusta on yhdistetty näyttävällä lasikatolla; katettu sisäpiha. Kiinteistön tekniikka on päivitetty. Kiinteistössä on CAT5 atk-luokitus, huonekohtainen palkkijäähdytys ja kaikissa ovissa nykyaikainen kulunvalvonta-järjestelmä.
Upeat 250-paikkaiset ruokailutilat; suosittu lounasravintola Factory. Vuokrattavia kokoustiloja. Yrityspalvelut; mm. aula-, posti- ja siivouspalvelut. Kiinteistö on muuntautumiskykyinen ja tilat ovat helposti muunneltavissa. Lukuisia hissejä sekä 2 tavarahissiä ja lastausalue parkkihallissa. Kiinteistön alimmassa kerroksessa sijaitsevat saunatilat, kuntosali ja pukuhuoneet.
