Vuokrataan toimistotilat - Espoo
Niittytaival 13, 02200 Espoo #10850938
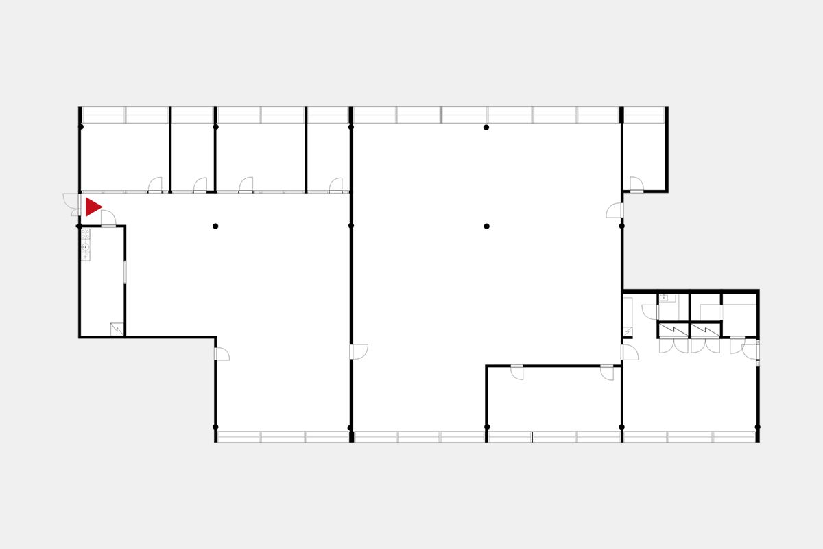
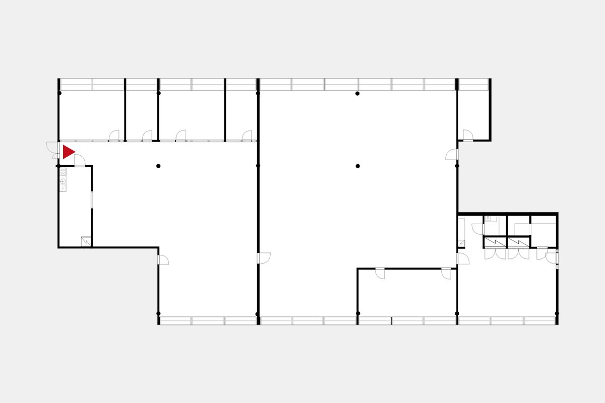
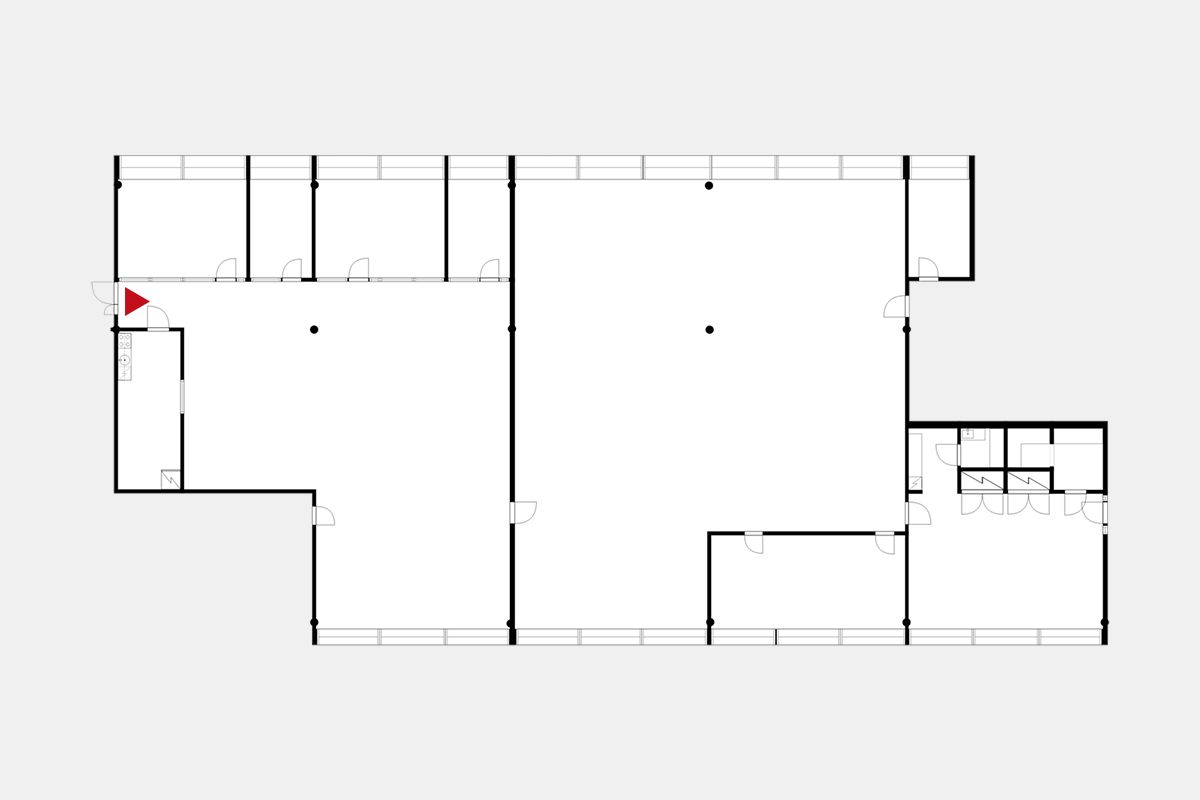
Vuokrataan valoisa ja tilava 3. kerroksen toimistotila. Kiinteistössä on vuokrattavia neuvottelutiloja sekä saunaosasto ylimmässä kerroksessa. Kiinteistö sijaitsee näkyvällä paikalla Espoon Niittykummussa, Länsiväylän varrella.
Modernia jäähdytettyä toimistotilaa vuonna 2002 rakennetussa kiinteistössä. Kiinteistössä on aulapalvelu, lounasravintola ja vuokrattavia kokoustiloja sekä ensimmäisessä kerroksessa että neljännessä kerroksessa sijaitsevalla saunaosastolla.
Kiinteistö sijaitsee hyvällä paikalla Länsiväylän kupeessa. Kun Niittykummun metroasema aukeaa on sinne kävelymatkaa vain 10 minuuttia ja matka metrolla Helsingin keskustaan Rautatientorille kestää vain 17 minuuttia. Pihalla vuokrattavia autopaikkoja.
