Vuokrataan toimistotilat - Helsinki
Aleksanterinkatu 9 FOR BUSINESS, 00100 Helsinki #10850853
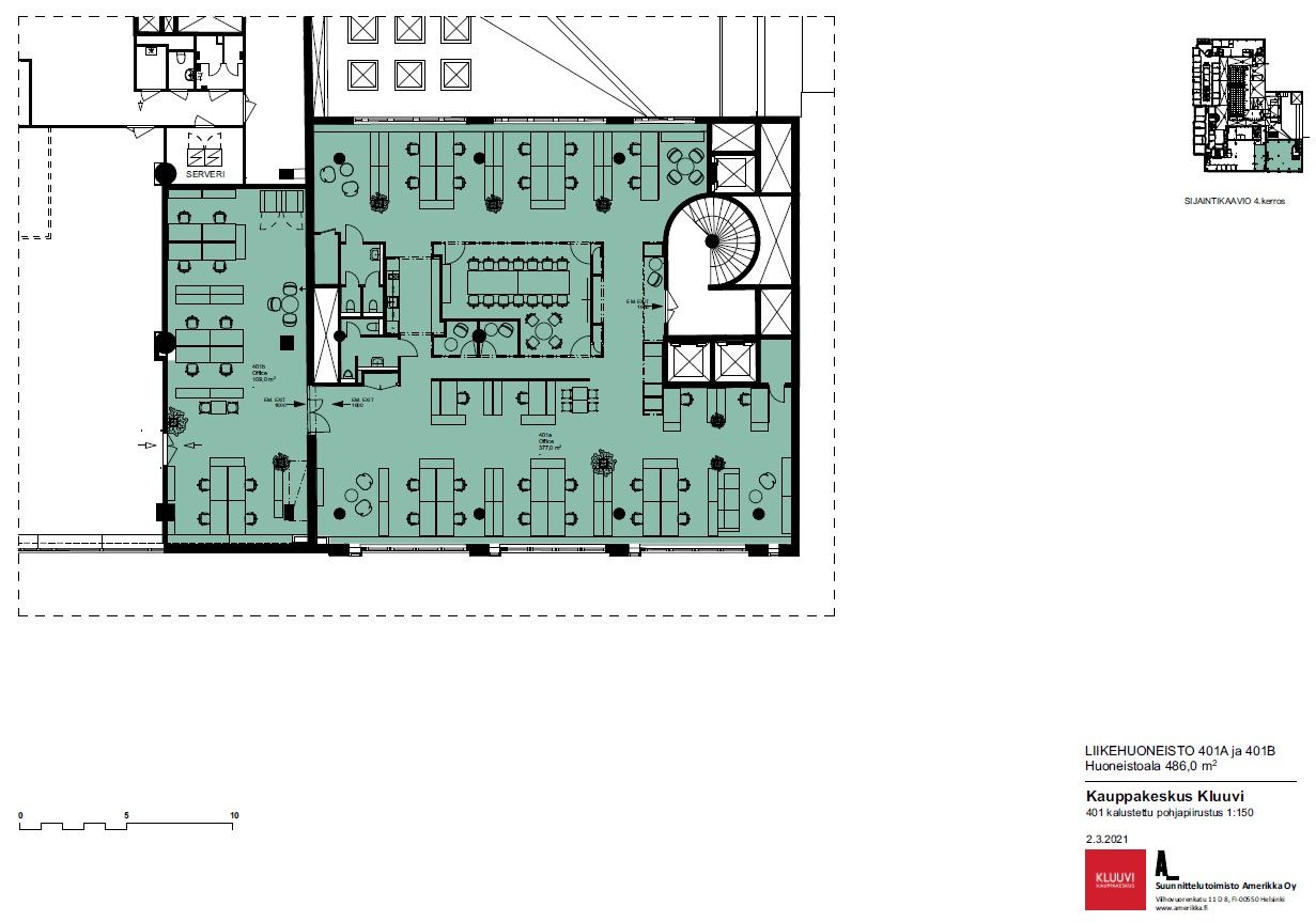
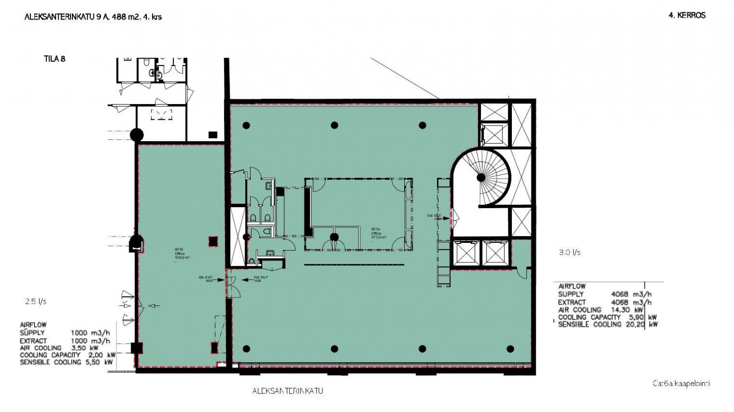
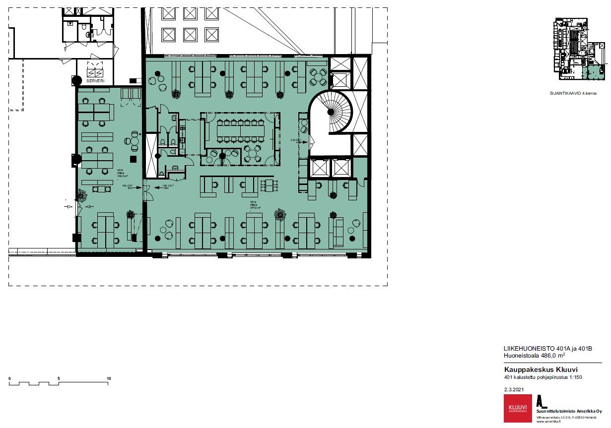
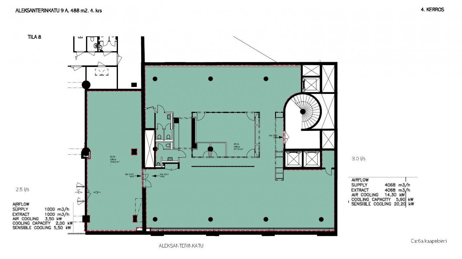
Täysin remontoitu 4. kerroksen huikea muuttovalmis mallitoimistotila 488 m2 huippuosoitteella. Tilassa iso neuvottelutila sekä vetäytymistiloja. Luksusta keittiössä ja hienostunutta tunnelmaa saniteettitiloissa. Tilasta on myös mahdollista lohkaista 377 m2 kokoinen tila. Erinomainen sijainti Helsingin ytimestä lähellä kaikkea tarpeellista, metro ja raitiovaunureitit vieressä. Kluuvin kauppakeskus kaikkine liikkeineen ja palveluineen on vain muutaman askeleen päässä. Lue lisää liitteenä olevasta esitteestä.
Huippuluokan toimitilat Helsingin ydinkeskustassa arvostetussa ja historiallisessa korttelissa keskellä loistavia kulkuyhteyksiä. Kiinteistön yhteydessä toimii monipuolinen kauppakeskus Kluuvi, ja kävelyetäisyyden päässä ovat kaikki Helsingin keskustan palvelut.
Kun etsit yrityksellesi toimitilaa, jonka sijainnilla ja osoitteella on erityistä merkitystä, tutustu Kluuvi For Businessin toimitilatarjontaan. Muuntojoustavat tilat taipuvat sekä avo- että monitilatoimistoiksi, ja ne modifioidaan käyttäjän tarpeiden mukaan. Modernit ja valoisat tilat sijaitsevat kiinteistön 4.–7.-kerroksissa tarjoten hulppean työympäristön keskellä vilkkainta Helsingin ydinkeskustaa.
Kluuvin kiinteistökokonaisuus on rakennettu eri aikakausina vuosina 1885, 1898, 1953 ja 1989, koostuen viidestä eri rakennuksesta Aleksanterinkadun, Kluuvikadun ja Yliopistonkadun varrella. Viimeisimpiä laajamittaisia remontteja on tehty vuosina 2009–2020 vastaamaan käyttäjien tarpeita. Kohde on useamman eri aikakaudella rakennetun rakennuksen yhdistelmä, mikä näkyy rakennusten julkisivujen kauniissa ja vanhoissa 1800-luvun lopun yksityiskohdissa.
Kluuvin alla palvelevat EuroPark ja Aimo Park tarjoavat runsaasti pysäköintitilaa parkkihallissa, josta pääsee kuivin jaloin hissiyhteydellä kerroksiin. Kluuvi For Business tukee työmatkapyöräilyä tarjoamalla hyvät sosiaalitilat ja pyöräparkit kellarikerroksessa.
