Vuokrataan toimistotilat - Helsinki
Valimotie 14 / Hiomotie 5, 00380 Helsinki #10850717
Uudiskohde Valimo ennakkomarkkinoinnissa. Pitäjänmäessä, keskeisellä paikalla sijaitseva kiinteistökehityshanke, johon on mahdollisuus rakentaa mittava toimistorakennus. Olet sitten pääkonttoritasoinen iso tekijä tai pienemmät tilat tarvitseva yritys, täältä saat nykyaikaiset työtavat ja työskentelykulttuurin huomioivan, modernin ja tehokkaan tilan toimia
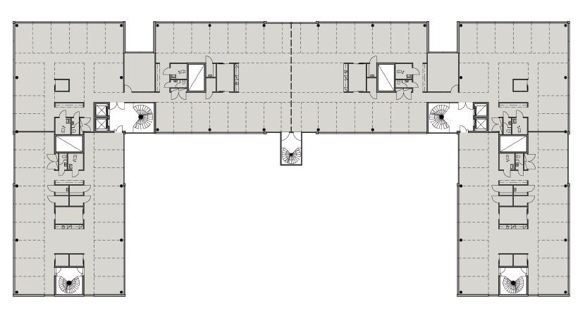
Kokonaishuoneistoalat 3.-7. kerroksessa 1910 m2. Jaettavissa jopa neljään eri huoneistoon. Huoneistot ovat neljän käyttäjän kerroksissa kooltaan 360-595 m2. Kun kerros jaetaan kahden käyttäjän kesken , huoneistot ovat kooltaan 850-955 m2.
UUDISKOHDE. Pitäjänmäen keskeiselle paikalle, Valimotien ja Hiomotien väliin, on tulossa huipputasoinen, moderni toimitilakokonaisuus, joka koostuu kolmesta seitsemänkerroksisesta toimistosiivestä. Toimitilat varustetaan jäähdytyksellä, energiataloudellisella valaistuksella sekä ajanmukaisilla tietojärjestelmillä.
Edustavat ravintola- vastaanotto- ja asiakasneuvottelutilat 1. kerroksessa. Turvalliset pysäköintitilat kahdessa tasossa. Sisäänkäyntien välittömässä yhteydessä asiakaspysäköintitilat. Sosiaalitilat pyöräilijöille ja kuntosali kellaritasossa. Viihtyisät taukotilat toimistokerroksissa.
