Vuokrataan tuotantotilat - Helsinki
Laippatie 1, 00880 Helsinki #10850445
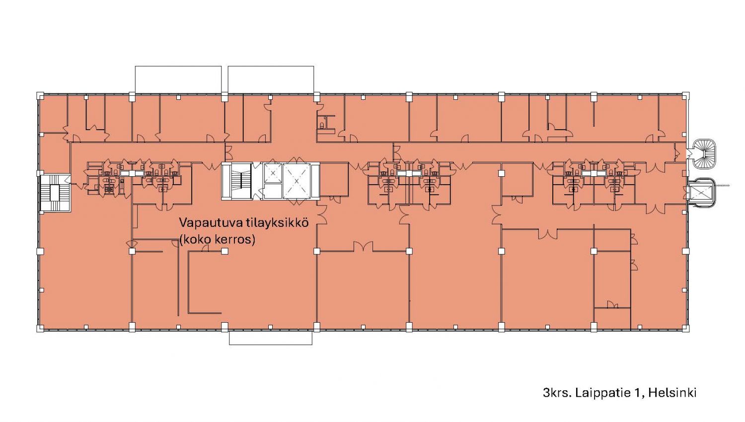
Kevyeen tuotannolliseen toimintaan / toimistoksi hyvin soveltuva toimitila. Normaalia toimistotilaa selvästi suurempi huonekorkeus mahdollista moninaisen toiminnan näissä tiloissa. Kerrokseen on tavarahissiyhteys talon pihalta, jossa käytössä lastauslaituri.
Sujuva sijainti suositulla Roihupellon työpaikka-alueella, Itäväylän varrella. Tarjolla pysäköintipaikkoja talon pihalla. Kohteeseen on monipuoliset liikenneyhteydet myös julkisilla liikennevälineillä.
Teollisuus- ja varastokiinteistö Helsingin Roihupellossa. Valmistunut 1986. 76 kpl autopaikkaa pihassa henkilökunnalle. Asiakkaille pysäköinti kadunvarrella. Hyvä sijainti Itäväylän varrella. Bussit kulkevat lähellä. Siilitien metroasema n. 1 km päässä. Lähellä Herttoniemi, Viikki ja Itäkeskus kaikkine palveluineen. Kiinteistössä kiinalainen ravintola. Yhteiskäyttöistä aulatilaa 82,5 m², joka jyviteään suhteessa jaetun tilan neliöihin.
