Myydään toimistotilat, liiketilat, tuotantotilat, varastotilat, autotalli/-hallitilat - Aura
Hakalantie 90 C, 21380 Aura #10850270
Myytävänä toimitila ja asunto, yhteensä 435 m². Mh. 199.000 €.
Osoite
Hakalantie 90 C, 21380 Aura
Tilatyyppi
Toimistotilaa
61 m2
Liiketilaa
61 m2
Tuotantotilaa
374 m2
Varastotilaa
374 m2
Autotalli/-hallitilaa
374 m2
Yhteensä
435 m2
Tilajako
Jaettavissa
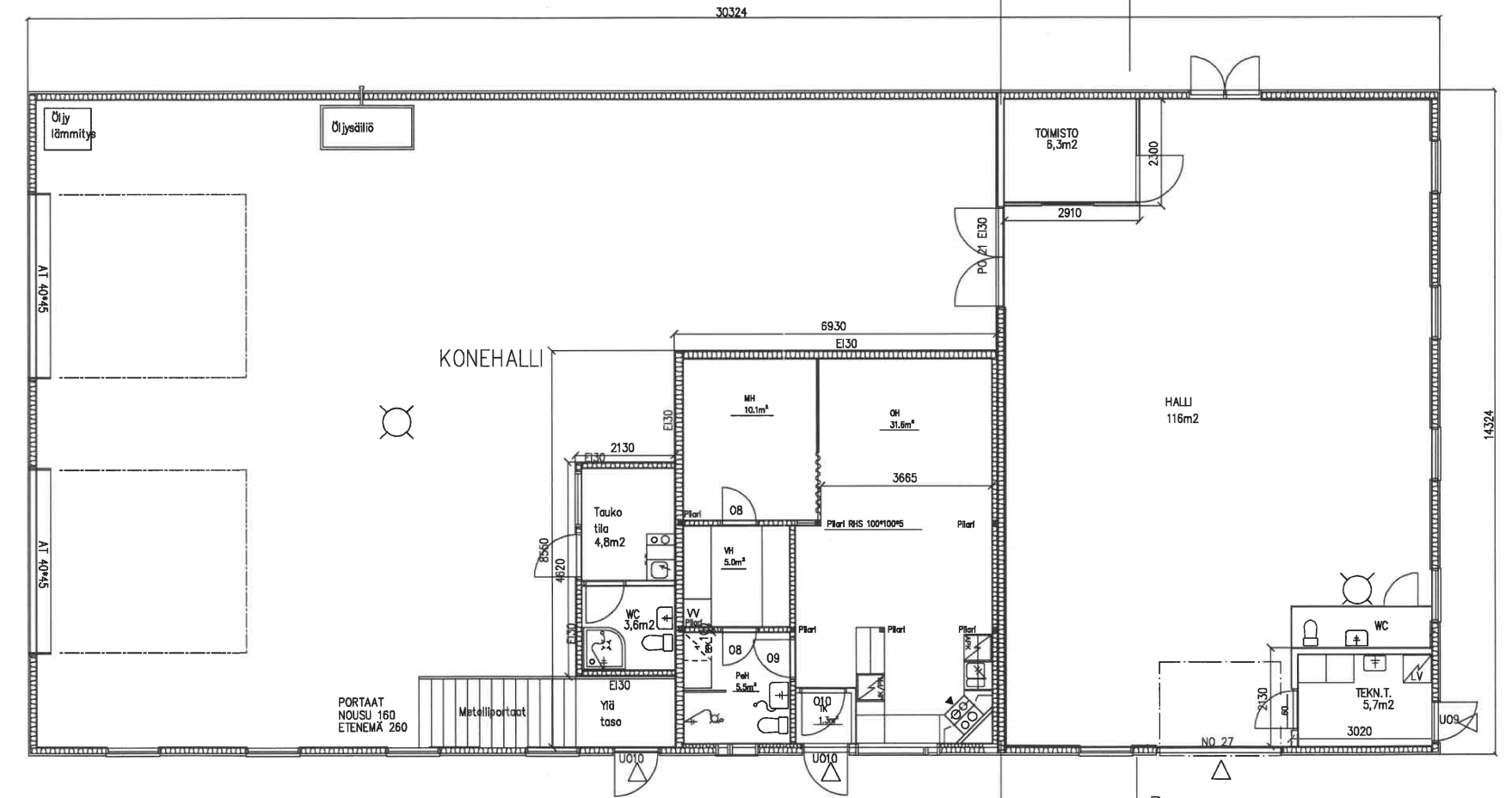
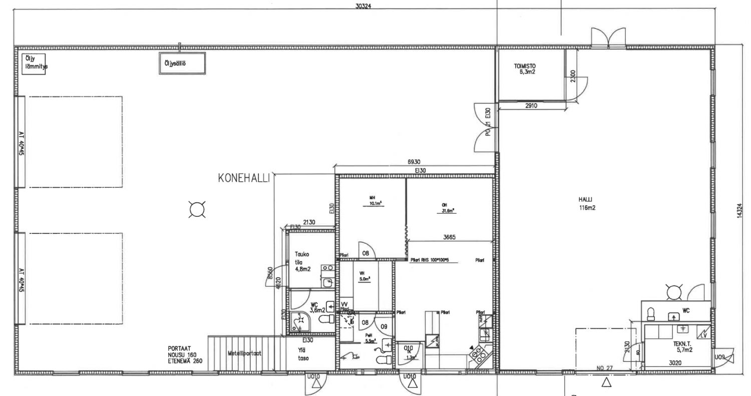
Pohjapiirros
Tila soveltuu
Studio/ateljé, autokorjaamo, tulityötila
Myyntihinta
199.000 €
Muuta
Toimitilarakennuksen kokonaispinta-ala on 435 m², josta asunto-osa on 61 m² ja hallitilan pinta-ala on 374 m².
Alunperin vuonna 2007 valmistuneeseen hallirakennukseen on vuonna 2020 valmistunut viihtyisä, tasokas asunto, joka on rakennettu osaksi hallirakennusta.
Hallitiloihin on 3 nosto-ovea ja erilliset käyntiovet. Korkeampaan hallinosaan on 2 korkeaa sähkökäyttöistä nosto-ovea ja toisen nosto-oven kautta pääsee ajamaan sisälle halliin vaikka täysperävaunuyhdistelmällä.
Korkeamman hallinosan korkeus on n. 5 m. Hallissa on öljykäyttöinen puhallinlämmitin.
Asunto-osa on rakennettu "hallin sisälle". Asunto-osan katto muodostaa hallitilan puolella laajan parvitilan, joka on nyt varastokäytössä.
Matalampaan hallinosaan on käynti nosto-oven ja erillisen käyntioven kautta.
Hallirakennuksen vieressä on katosrakennus.
Kiinteistön maa-alueen pinta-ala on 6.220 m².
Tässä oivallinen tilaisuus hankkia toimitila ja asunto, jotka sijaitsevat samalla kiinteistöllä hyvien kulkuyhteyksien päässä. Lyhyt matka valtatie 9:lle ja Auran keskustan palveluihin.
Hallitila vapautuu sopimuksen mukaan, nopeastikin. Asunto-osa on vuokrattu ja myydään vuokrattuna.
Mh. 199.000 €.
Mikäli ostajalla on tarvetta isommalle maa-alueelle on naapurissa oleva rakentamaton 7.530 m²:n kiinteistö myös mahdollista ostaa edellä mainitun kiinteistökaupan yhteydessä.
Tähän kokonaisuuteen kannattaa ehdottomasti tutustua!
www.kaupunki.com
Alunperin vuonna 2007 valmistuneeseen hallirakennukseen on vuonna 2020 valmistunut viihtyisä, tasokas asunto, joka on rakennettu osaksi hallirakennusta.
Hallitiloihin on 3 nosto-ovea ja erilliset käyntiovet. Korkeampaan hallinosaan on 2 korkeaa sähkökäyttöistä nosto-ovea ja toisen nosto-oven kautta pääsee ajamaan sisälle halliin vaikka täysperävaunuyhdistelmällä.
Korkeamman hallinosan korkeus on n. 5 m. Hallissa on öljykäyttöinen puhallinlämmitin.
Asunto-osa on rakennettu "hallin sisälle". Asunto-osan katto muodostaa hallitilan puolella laajan parvitilan, joka on nyt varastokäytössä.
Matalampaan hallinosaan on käynti nosto-oven ja erillisen käyntioven kautta.
Hallirakennuksen vieressä on katosrakennus.
Kiinteistön maa-alueen pinta-ala on 6.220 m².
Tässä oivallinen tilaisuus hankkia toimitila ja asunto, jotka sijaitsevat samalla kiinteistöllä hyvien kulkuyhteyksien päässä. Lyhyt matka valtatie 9:lle ja Auran keskustan palveluihin.
Hallitila vapautuu sopimuksen mukaan, nopeastikin. Asunto-osa on vuokrattu ja myydään vuokrattuna.
Mh. 199.000 €.
Mikäli ostajalla on tarvetta isommalle maa-alueelle on naapurissa oleva rakentamaton 7.530 m²:n kiinteistö myös mahdollista ostaa edellä mainitun kiinteistökaupan yhteydessä.
Tähän kokonaisuuteen kannattaa ehdottomasti tutustua!
www.kaupunki.com
Vapautuu
Heti
Katutasossa
Jaettavissa
Ota yhteyttä
Kaupunkikiinteistöt LKV
Tiedustelut ja esittelyt puh. Näytä puhelinnumero 0440 245 600 / Ismo Koskinen
http://www.kaupunki.comPyydä lisätietoa
